data_sheet.details.realestate.section.main.otthonstart_flag.label
For sale family house,
H498842
Pap
26,900,000 Ft
69,000 €
- 120m²
- 4 Rooms
























Tégla családi ház Papon
Pap településen kínálok eladásra egy 1990-es években Téglából épült családi házat. Az ingatlan betonozott alapon fekszik, pala borítású tetőendszerrel. Belső elrendezésében 4 szoba, nappali, konyha-étkező, fürdőszoba, mosókonyha, mindez 120 nm-en. Az otthon melegéről központi rendszeren keresztül vegyes cirkó és gázcirkó kazánok gondoskodnak. Nyílászárói hőszigetelt műanyagok, padlóburkolata keményfa parketta és járólap. Összességében egy nagyon jó elrendezésű ingatlan, melyhez egy nagy zárt terasz is tartozik. Szobái világosak és kényelmes nagyságúak, a nagy nappalival és a konyhával pedig tökéletesen lakható, akár nagyobb családnak is. Udvara is rendezett, melyen további tárolók, pince, garázs is helyet kapott. Előkerttel és hátsó kerttel is rendelkezik. Központ közeli elhelyezkedése, még kedvezőbbé teszi, így közelében közintézmények, iskola, óvoda, orvosi rendelő, patika, posta, boltok is megtalálhatók. Ha szeretne egy jó fekvésű, jó elrendezésű, világos otthont, keressen telefonon és nézze meg !
Registration Number
H498842
Property Details
Sales
for sale
Legal Status
used
Character
house
Construction Method
brick
Net Size
120 m²
Gross Size
140 m²
Plot Size
1,050 m²
Size of Terrace / Balcony
22 m²
Heating
mixed circulator
Ceiling Height
280 cm
Number of Levels Within the Property
1
Orientation
South
Condition
Good
Condition of Facade
Good
Basement
Independent
Neighborhood
good transport, central
Year of Construction
1990
Number of Bathrooms
1
Garage
Included in the price
Garage Spaces
1
Water
Available
Gas
Available
Electricity
Available
Sewer
Available
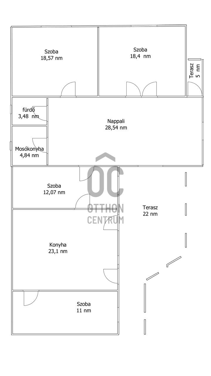
Rooms
room
18.57 m²
room
18.4 m²
living room
28.54 m²
room
12.7 m²
room
11.1 m²
open-plan kitchen and dining room
23.1 m²
bathroom-toilet
3.48 m²
laundry room
4.84 m²