450,000,000 Ft
1,158,000 €
- 365m²
- 8 Rooms




































Discover your dream home! An 8-room family house with an indoor pool, nestled in the embrace of the forest in the XII district.
EXCLUSIVE FAMILY HOME SURROUNDED BY FOREST – A RARE GEM IN CSILLEBÉRC, DISTRICT XII
For sale in one of the most sought-after areas of Budapest's 12th District (Csillebérc): a unique 365 m², 4-level family home on a 1,514 m² plot, offering absolute privacy and direct forest access. Ideal for large families, multi-generational living, or as a premium investment.
Property highlights:
Directly bordered by forest – no neighbors, complete privacy, tranquility, and lush greenery
Exceptionally well-maintained garden with rare trees and vibrant flowers
The only property in the area with this plot size and forest surroundings currently on the market
Layout:
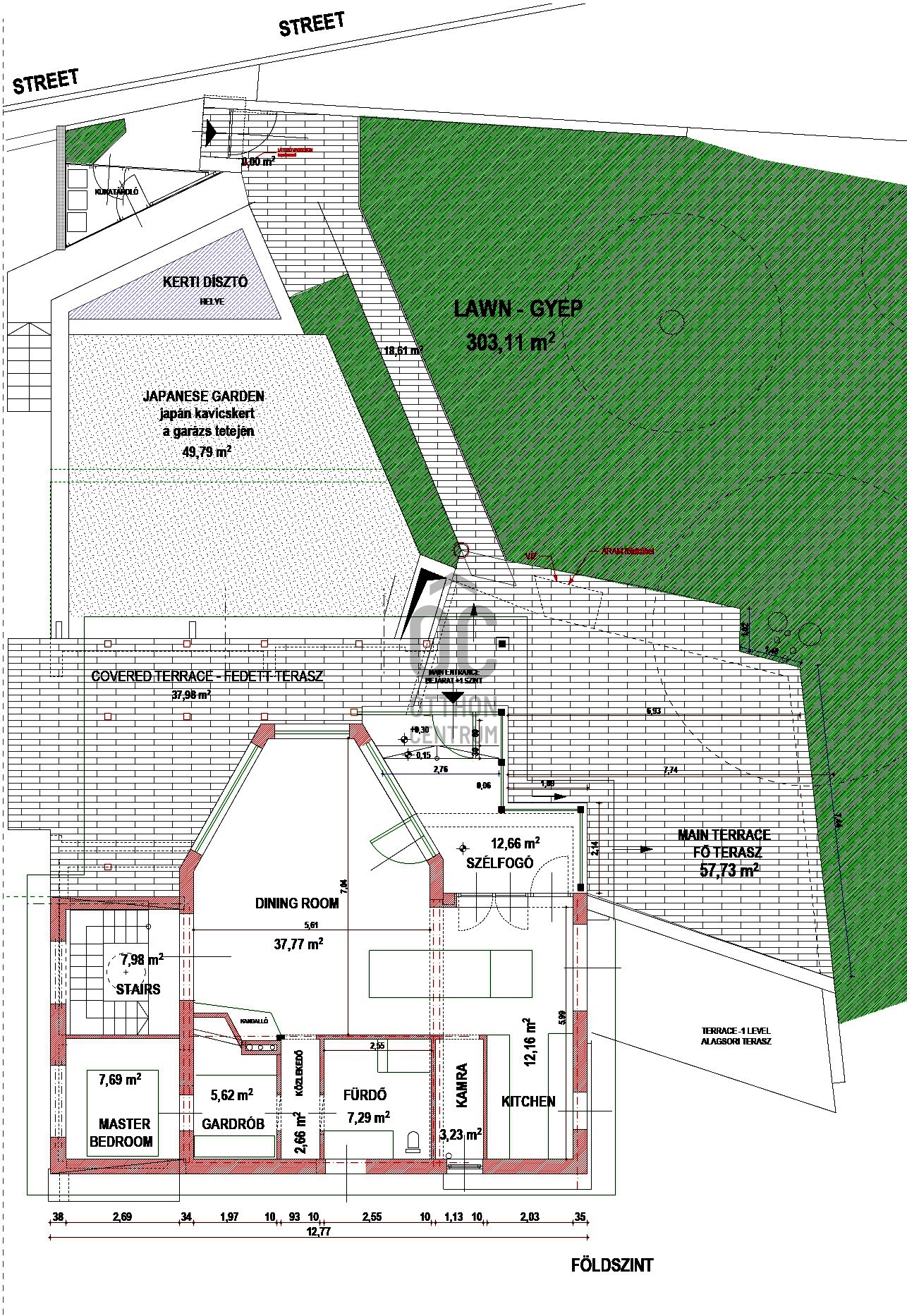
Ground floor: spacious open-plan kitchen and living room, pantry, and a master bedroom suite
Upper floor: 4 bedrooms and a large bathroom
Lower level: wellness area with indoor pool, sauna, and jacuzzi – can easily function as a separate living unit
Basement: 3 heated storage rooms – perfect for office use, workshops, or hobby spaces
Key features:
Plot size: 1,514 m²
House size: 365 m²
8 rooms, 3 bathrooms
Wellness section with indoor pool, sauna, jacuzzi
57 m² terrace – perfect for family breakfasts or evening relaxation
Gas central heating with underfloor heating
South-facing orientation – bright, sun-filled spaces
A rare opportunity in District XII: the only property of its kind – with this size plot and forest surroundings!
This home is more than just a property – it's a lifestyle. If you value space, nature, and true privacy, don’t miss this exceptional opportunity.
Your dream home is waiting – book a viewing today!
For sale in one of the most sought-after areas of Budapest's 12th District (Csillebérc): a unique 365 m², 4-level family home on a 1,514 m² plot, offering absolute privacy and direct forest access. Ideal for large families, multi-generational living, or as a premium investment.
Property highlights:
Directly bordered by forest – no neighbors, complete privacy, tranquility, and lush greenery
Exceptionally well-maintained garden with rare trees and vibrant flowers
The only property in the area with this plot size and forest surroundings currently on the market
Layout:
Ground floor: spacious open-plan kitchen and living room, pantry, and a master bedroom suite
Upper floor: 4 bedrooms and a large bathroom
Lower level: wellness area with indoor pool, sauna, and jacuzzi – can easily function as a separate living unit
Basement: 3 heated storage rooms – perfect for office use, workshops, or hobby spaces
Key features:
Plot size: 1,514 m²
House size: 365 m²
8 rooms, 3 bathrooms
Wellness section with indoor pool, sauna, jacuzzi
57 m² terrace – perfect for family breakfasts or evening relaxation
Gas central heating with underfloor heating
South-facing orientation – bright, sun-filled spaces
A rare opportunity in District XII: the only property of its kind – with this size plot and forest surroundings!
This home is more than just a property – it's a lifestyle. If you value space, nature, and true privacy, don’t miss this exceptional opportunity.
Your dream home is waiting – book a viewing today!
Registration Number
H498429
Property Details
Sales
for sale
Legal Status
used
Character
house
Construction Method
brick
Net Size
365 m²
Gross Size
380 m²
Plot Size
1,514 m²
Size of Terrace / Balcony
57.7 m²
Heating
Gas circulator
Ceiling Height
380 cm
Number of Levels Within the Property
4
Orientation
South
Condition
Excellent
Condition of Facade
Excellent
Basement
Independent
Neighborhood
green
Year of Construction
1989
Number of Bathrooms
3
Water
Available
Gas
Available
Electricity
Available
Sewer
On the street
Multi-Generational
yes
Storage
Independent
Rooms
open-plan living and dining room
37.77 m²
kitchen
12.16 m²
pantry
3.23 m²
bathroom-toilet
7.29 m²
bedroom
7.69 m²
wardrobe
5.62 m²
entryway
12.66 m²
corridor
2.66 m²
staircase
7.98 m²
living room
12.37 m²
half room
5.97 m²
half room
7.77 m²
bedroom
8.78 m²
bathroom-toilet
8.79 m²
pool area
56.62 m²
living room
28.85 m²
bedroom
10.16 m²
study
14.24 m²
other room
14.29 m²

Horváth Szabina
Credit Expert