449,000,000 Ft
1,152,000 €
- 328m²
- 8 Rooms
Family house in Testvérhegy, with a stunning panorama!
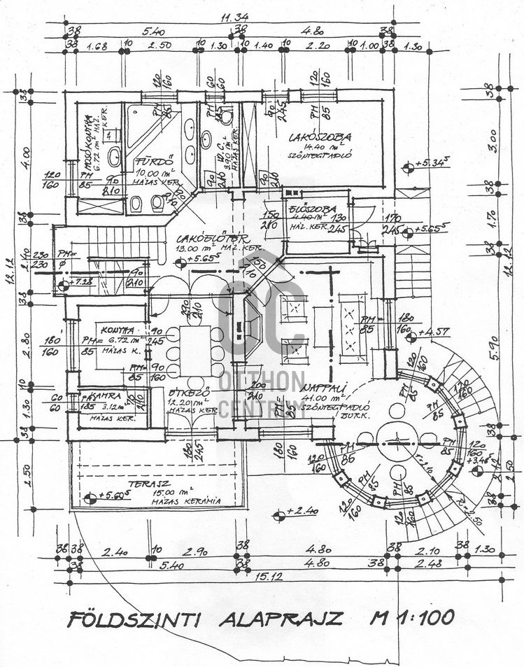
For sale in one of the most beautiful and quiet parts of the 3rd district, Testvérhegy, is a 328 m², three-story, 8-room family house with a beautiful panoramic terrace and balconies. The property is located on a 1080 m² plot.
- The terrace offers an unparalleled view of the entire panorama of Budapest
- The house is extremely bright and sunny thanks to its large glass surfaces, which gives an immediate homely feeling
- The interior is 3-storey, with 3 separate kitchens and bathrooms (this is significant in terms of overheads, since we can use three times the amount of overhead-protected gas)
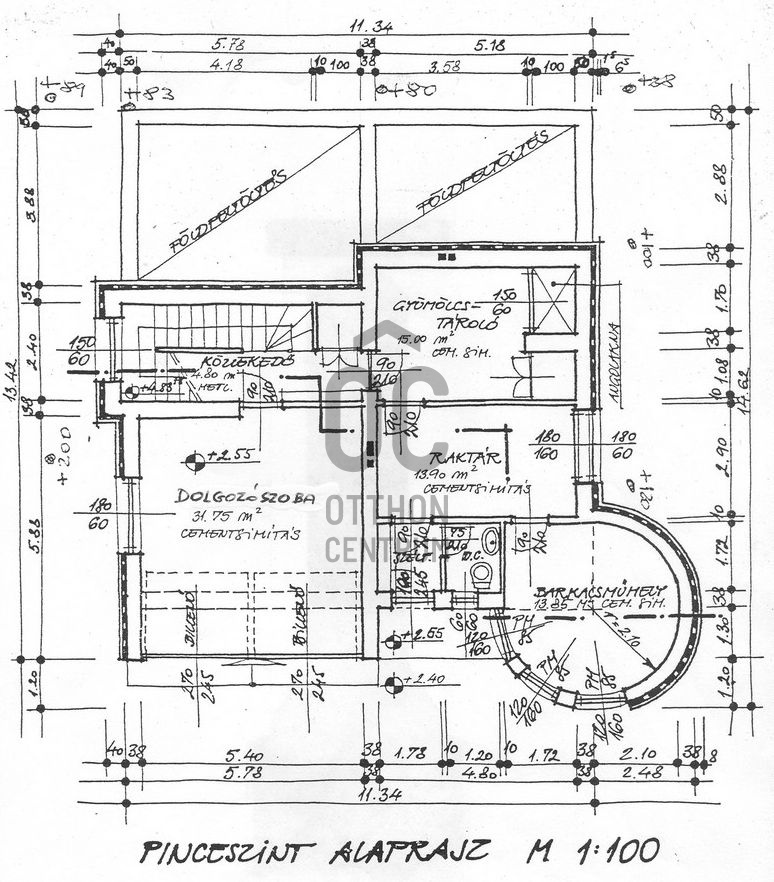
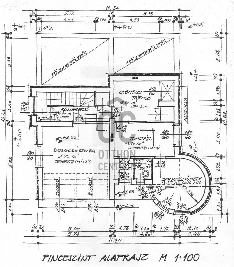
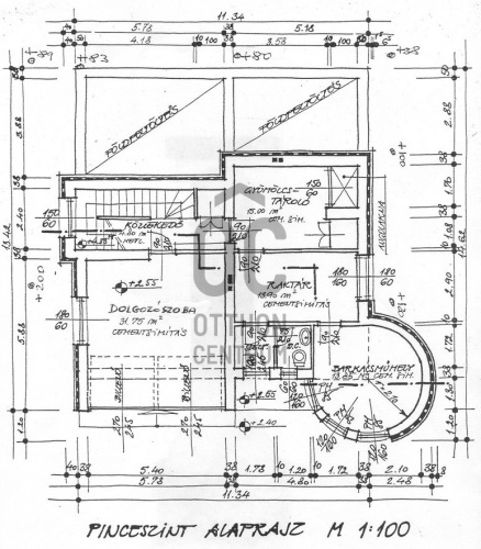
- The lower floor has a boiler room, study, warehouse, storage and a DIY workshop, in addition to a smaller kitchen and bathroom
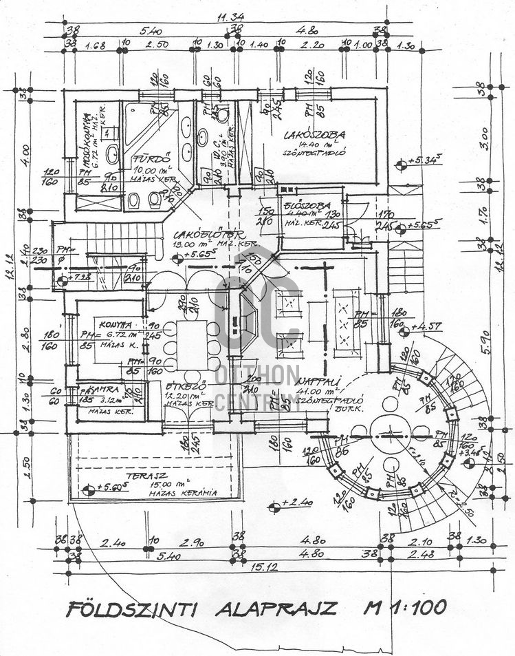
- The middle floor has a spacious living room and kitchen, master bedroom, bathroom, laundry room, and a 15 m² terrace, from which the entire panorama of Budapest opens up to us
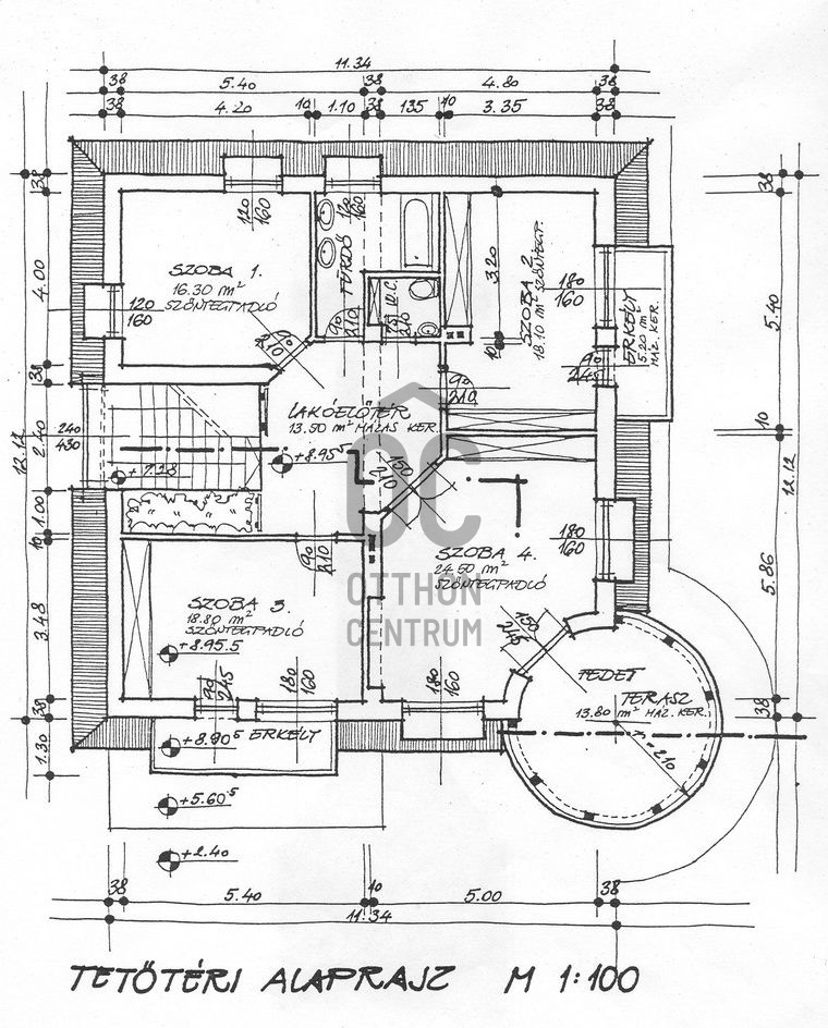
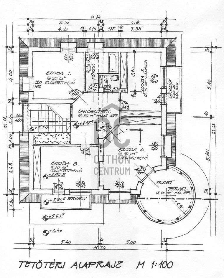
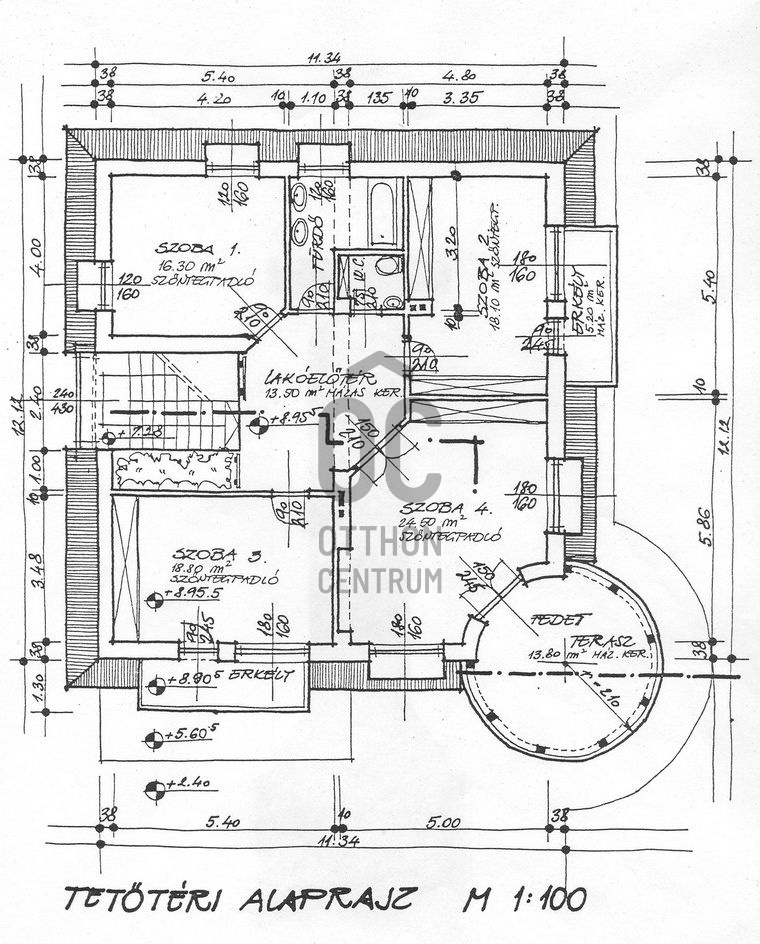
- Upstairs there are 4 more rooms with bathrooms and mini kitchens. 2 rooms open onto balconies, and a covered terrace has also been created
- A wood-burning fireplace in the living room enhances the atmosphere and a pleasant feeling of warmth
- In addition to the gas boiler, an electric boiler has also been installed so that you can choose between heating options. Underfloor heating in the rooms
- The 1080 m² garden is well-maintained, and the swimming pool in the backyard provides refreshment in the summer months
- Parking is provided by a 2-car, street-front garage building, and we also have the opportunity to park in the yard
- The 137 bus stop is only 300 meters away, from where we can easily reach the Buda side of the Árpád Bridge in 20 minutes
The spacious spaces, multi-generational options and well-separated levels make it an ideal choice for large families or even entrepreneurs who would like to work comfortably from their homes.
We also offer free credit advice! Our bank-independent credit center compares the best bank offers so that you can start with the most favorable credit structure.
If you like this wonderful family house, do not hesitate to call us with confidence to view it in person!
- The terrace offers an unparalleled view of the entire panorama of Budapest
- The house is extremely bright and sunny thanks to its large glass surfaces, which gives an immediate homely feeling
- The interior is 3-storey, with 3 separate kitchens and bathrooms (this is significant in terms of overheads, since we can use three times the amount of overhead-protected gas)
- The lower floor has a boiler room, study, warehouse, storage and a DIY workshop, in addition to a smaller kitchen and bathroom
- The middle floor has a spacious living room and kitchen, master bedroom, bathroom, laundry room, and a 15 m² terrace, from which the entire panorama of Budapest opens up to us
- Upstairs there are 4 more rooms with bathrooms and mini kitchens. 2 rooms open onto balconies, and a covered terrace has also been created
- A wood-burning fireplace in the living room enhances the atmosphere and a pleasant feeling of warmth
- In addition to the gas boiler, an electric boiler has also been installed so that you can choose between heating options. Underfloor heating in the rooms
- The 1080 m² garden is well-maintained, and the swimming pool in the backyard provides refreshment in the summer months
- Parking is provided by a 2-car, street-front garage building, and we also have the opportunity to park in the yard
- The 137 bus stop is only 300 meters away, from where we can easily reach the Buda side of the Árpád Bridge in 20 minutes
The spacious spaces, multi-generational options and well-separated levels make it an ideal choice for large families or even entrepreneurs who would like to work comfortably from their homes.
We also offer free credit advice! Our bank-independent credit center compares the best bank offers so that you can start with the most favorable credit structure.
If you like this wonderful family house, do not hesitate to call us with confidence to view it in person!
Registration Number
H493232
Property Details
Sales
for sale
Legal Status
used
Character
house
Construction Method
brick
Net Size
328 m²
Gross Size
362 m²
Plot Size
1,080 m²
Size of Terrace / Balcony
50 m²
Heating
gas boiler
Ceiling Height
270 cm
Number of Levels Within the Property
2
Orientation
East
View
city view, river or lake view, Green view
Condition
Good
Condition of Facade
Good
Condition of Staircase
Good
Basement
Independent
Neighborhood
quiet, good transport, green
Year of Construction
1990
Number of Bathrooms
3
Position
garden-facing
Common Costs
15000
Garage
Included in the price
Garage Spaces
2
Water
Available
Gas
Available
Electricity
Available
Sewer
Available
Multi-Generational
yes
Storage
Independent
Rooms
living room
41 m²
room
18.8 m²
room
14.4 m²
room
24.5 m²
room
18.1 m²
room
16.3 m²
room
31.75 m²
terrace
40 m²
balcony
10 m²
garage
20 m²
pool area
20 m²
Durucskó Gabriella
Credit Expert