269,000,000 Ft
705,000 €
- 373m²
- 7 Rooms
Eladó új építésű Luxusingatlan Sukorón!
Kivételes lehetőség a Velencei-tó közelében, befektetők, cégek vagy nagycsaládosok számára!
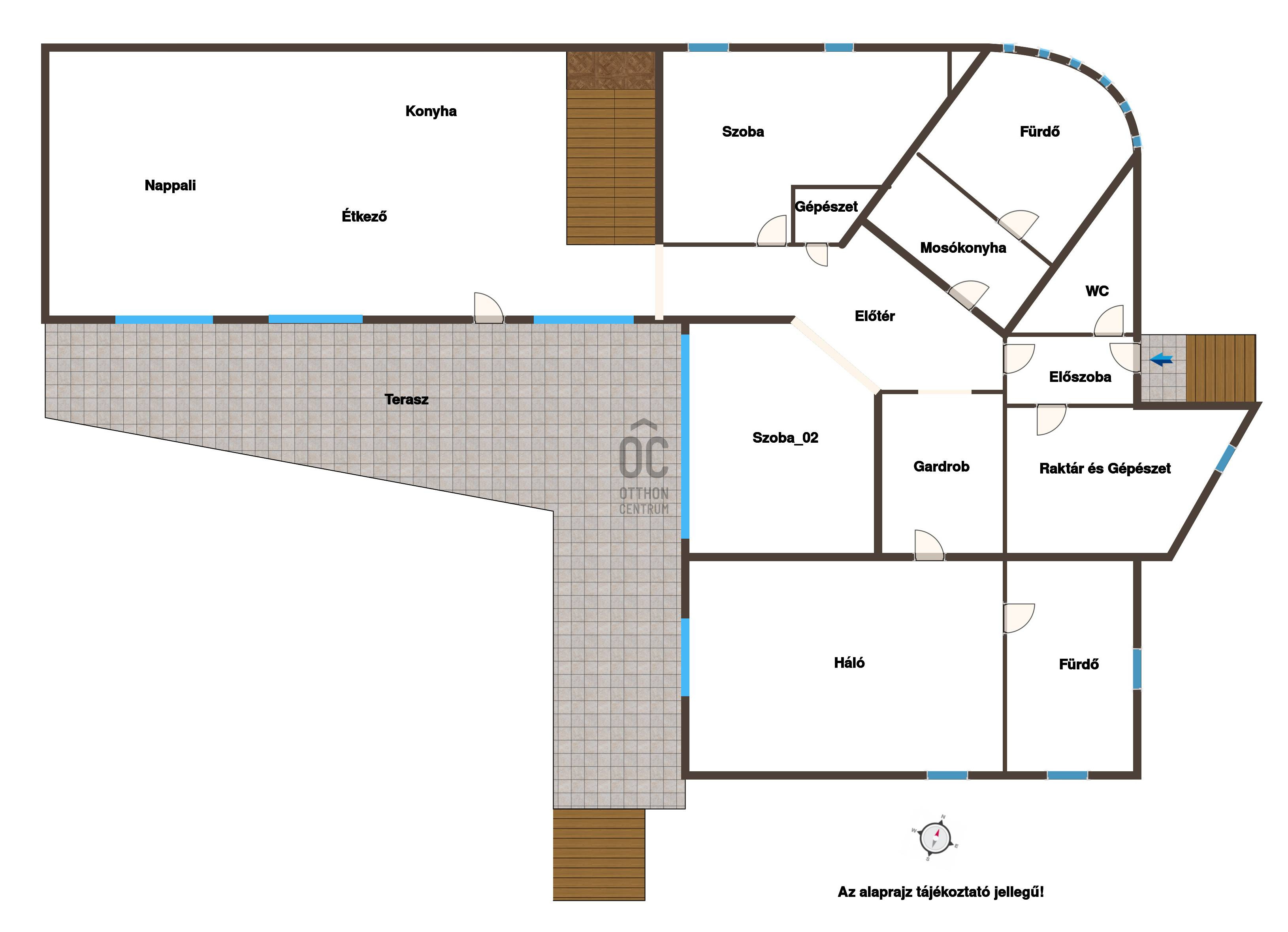
Eladásra kínálunk Sukoró csendes, mégis remekül, jól megközelíthető részén egy 373 négyzetméteres, új építésű, szerkezetkész ingatlant.
Ingatlan Jellemzői:
Hatalmas tér: A ház összesen 7 szobával rendelkezik. Az alsó szinten egy közel 100 m²-es, 6 méteres belmagasságú tér várja a leendő tulajdonost, hatalmas üvegfelületekkel, lenyűgöző térérzettel igazi reprezentatív központ.
Az emeleten egy második, szintén tágas, világos közösségi tér található, mely akár nyitott irodaként, workshop szobaként vagy VIP lounge-ként is funkcionálhat.
Energiatakarékos megoldások: Az ingatlan modern hőszivattyús fűtésrendszerrel és mennyezet hűtő-fűtő rendszerrel van felszerelve, a napelemes rendszer előkészítése pedig már megtörtént.
Testre szabhatóság: A ház szerkezetkész állapotban van, így a leendő tulajdonos saját ízlése szerint fejezheti be a belső tereket és alakíthatja ki álmai otthonát vagy vállalkozásának központját.
Telek és Környezet: A ház egy hatalmas, 2765 négyzetméteres telken helyezkedik el, mely rengeteg lehetőséget kínál a kikapcsolódásra, kertészkedésre vagy akár további fejlesztésekre.
A Velencei-tó közelsége és a festői környezet garantálja a nyugalmat, miközben a közlekedés is rendkívül egyszerű. Az M7-es autópálya mindössze 5 perc alatt elérhető, így Budapest és Székesfehérvár is könnyen megközelíthető.
Az ingatlan kiváló választás olyan cégek számára, akik egyedülálló megjelenésű, jól felszerelt, prémium helyszínt keresnek, ahol méltó módon képviselhetik vállalkozásukat.
Ne maradjon le erről a páratlan lehetőségről! Ez az ingatlan nem csupán egy ház, hanem egy hosszú távú befektetés is egyben.
Kivételes lehetőség a Velencei-tó közelében, befektetők, cégek vagy nagycsaládosok számára!
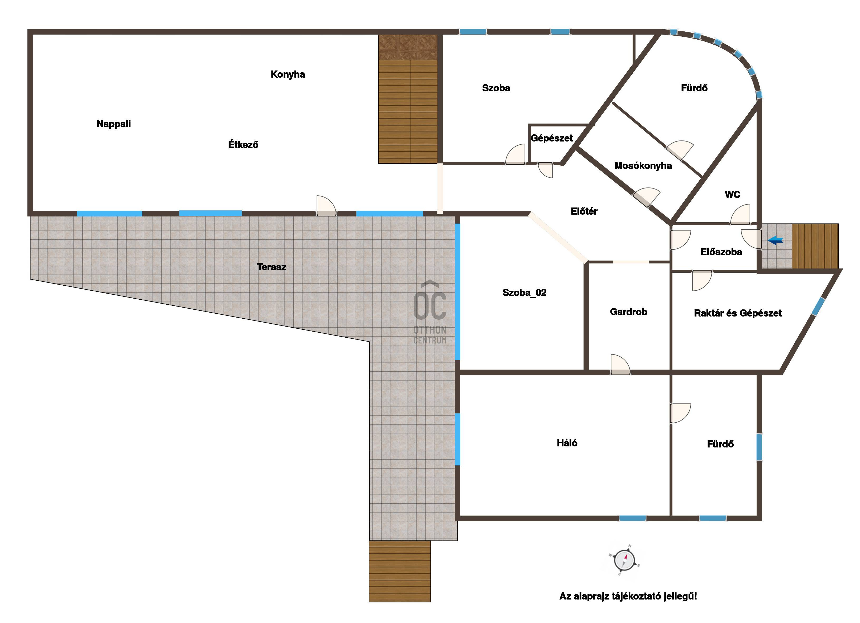
Eladásra kínálunk Sukoró csendes, mégis remekül, jól megközelíthető részén egy 373 négyzetméteres, új építésű, szerkezetkész ingatlant.
Ingatlan Jellemzői:
Hatalmas tér: A ház összesen 7 szobával rendelkezik. Az alsó szinten egy közel 100 m²-es, 6 méteres belmagasságú tér várja a leendő tulajdonost, hatalmas üvegfelületekkel, lenyűgöző térérzettel igazi reprezentatív központ.
Az emeleten egy második, szintén tágas, világos közösségi tér található, mely akár nyitott irodaként, workshop szobaként vagy VIP lounge-ként is funkcionálhat.
Energiatakarékos megoldások: Az ingatlan modern hőszivattyús fűtésrendszerrel és mennyezet hűtő-fűtő rendszerrel van felszerelve, a napelemes rendszer előkészítése pedig már megtörtént.
Testre szabhatóság: A ház szerkezetkész állapotban van, így a leendő tulajdonos saját ízlése szerint fejezheti be a belső tereket és alakíthatja ki álmai otthonát vagy vállalkozásának központját.
Telek és Környezet: A ház egy hatalmas, 2765 négyzetméteres telken helyezkedik el, mely rengeteg lehetőséget kínál a kikapcsolódásra, kertészkedésre vagy akár további fejlesztésekre.
A Velencei-tó közelsége és a festői környezet garantálja a nyugalmat, miközben a közlekedés is rendkívül egyszerű. Az M7-es autópálya mindössze 5 perc alatt elérhető, így Budapest és Székesfehérvár is könnyen megközelíthető.
Az ingatlan kiváló választás olyan cégek számára, akik egyedülálló megjelenésű, jól felszerelt, prémium helyszínt keresnek, ahol méltó módon képviselhetik vállalkozásukat.
Ne maradjon le erről a páratlan lehetőségről! Ez az ingatlan nem csupán egy ház, hanem egy hosszú távú befektetés is egyben.
Registration Number
DHZ070231
Property Details
Sales
for sale
Legal Status
new
Character
house
Construction Method
brick
Net Size
373 m²
Gross Size
373 m²
Plot Size
2,765 m²
Heating
other
Number of Levels Within the Property
2
Orientation
South-West
Condition
Good
Condition of Facade
Good
Year of Construction
2022
Number of Bathrooms
3
Position
courtyard-facing
Water
Available
Gas
On the street
Electricity
Available
Sewer
Available
Rooms
open-plan kitchen and living room
90 m²
entryway
6 m²
room
35 m²
wardrobe
10.3 m²
utility room
8.3 m²
bathroom-toilet
12.4 m²
toilet
2.8 m²
room
19.2 m²
living room
62 m²
bathroom-toilet
8.4 m²
room
10.6 m²
room
10.4 m²
corridor
6.2 m²
staircase
7 m²
room
18 m²
Várnai Zoltán Jenő
Credit Expert