175,000,000 Ft
449,000 €
- 189.3m²
- 6 Rooms
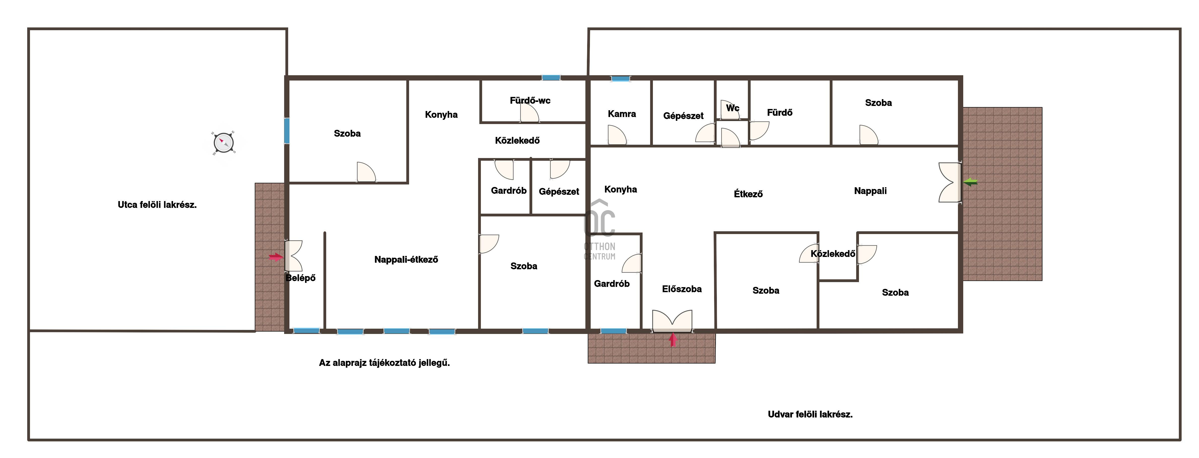
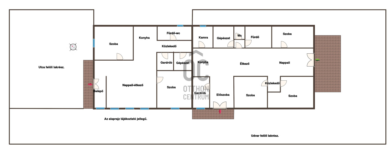
Dunavarsányon eladó egy 837 nm-es körbekerített telken lévő két lakrésszel rendelkező újépítésű 189,39 nm alapterületű, hőszivattyús fűtésrendszerű A+ energetikai besorolással rendelkező családi ház! Az épületben a riasztórendszer előkészítése megtörtént. A telekre elektromos nagykapun keresztül juthatunk be.
ÖSSZEKÖLTÖZNI VÁGYÓ CSALÁDOK BARÁTOK BEFEKTETŐK FIGYELMÉBE AJÁNLOM
Az épület utcafronti lakrésze 77,1 nm-es melyhez 90 nm-es elkerített telekrész tartozik.
Ennek belső elrendezése: belépő, konyha-étkező -nappali, két külön nyíló hálószoba, közlekedő, gépészeti helyiség, gardrób, fürdő-wc.
A belsőudvari lakrész 112,29 nm-es amihez 543 nm-es külön elkerített telekrész tartozik.
Belső elrendezése előszoba, gardrób, amerikai-konyhás-nappali, kamra, gépészeti helyiség, wc-kézmosó, fürdő, három külön nyíló szoba, terasz.
Az épület beton sávalapra épült, 30cm-es tégla falazattal +15 cm hungarocell szigeteléssel.
Fa födémes, 30 cm-es födémszigeteléssel
A két lakrész padlástere hanggátló gipszkartonnal elválasztott
A fűtést korszerű levegő-levegő hőszivattyú, mennyezeti hűtés-fűtés rendszer biztosítja.
A melegvíz szükségletet hőszivattyús bojler elégíti ki.
A nyílászárók műanyagok 3 rétegű 5 légkamrás belül fehér kívül antracit szürke színűek.
Választható burkolatok és belső elemek:
Hidegburkolatok:5.500 Ft/nm
Melegburkolatok: 4.500.- Ft/ nm
Szaniterek: 100.000.- Ft / lakrész
Beltéri ajtók az utcafronti lakásnál 70.000.- Ft db árban választhatóak.
A kert öntözésére fúrt kút áll a rendelkezésünkre. A telken belül villany, vezetékes víz és átemelős rendszerű csatorna található.
A birtokbaadás az elfogadásra került Vételi szándéknyilatkozatott követően 30-90 napon belül költözhető!
Ha megtetszett Önnek az ingatlan kérem hívjon bizalommal a hét bármely napján, akár hétvégén is.
A közelben minden megtalálható ami a mindennapi élethez szükséges.
ÖSSZEKÖLTÖZNI VÁGYÓ CSALÁDOK BARÁTOK BEFEKTETŐK FIGYELMÉBE AJÁNLOM
Az épület utcafronti lakrésze 77,1 nm-es melyhez 90 nm-es elkerített telekrész tartozik.
Ennek belső elrendezése: belépő, konyha-étkező -nappali, két külön nyíló hálószoba, közlekedő, gépészeti helyiség, gardrób, fürdő-wc.
A belsőudvari lakrész 112,29 nm-es amihez 543 nm-es külön elkerített telekrész tartozik.
Belső elrendezése előszoba, gardrób, amerikai-konyhás-nappali, kamra, gépészeti helyiség, wc-kézmosó, fürdő, három külön nyíló szoba, terasz.
Az épület beton sávalapra épült, 30cm-es tégla falazattal +15 cm hungarocell szigeteléssel.
Fa födémes, 30 cm-es födémszigeteléssel
A két lakrész padlástere hanggátló gipszkartonnal elválasztott
A fűtést korszerű levegő-levegő hőszivattyú, mennyezeti hűtés-fűtés rendszer biztosítja.
A melegvíz szükségletet hőszivattyús bojler elégíti ki.
A nyílászárók műanyagok 3 rétegű 5 légkamrás belül fehér kívül antracit szürke színűek.
Választható burkolatok és belső elemek:
Hidegburkolatok:5.500 Ft/nm
Melegburkolatok: 4.500.- Ft/ nm
Szaniterek: 100.000.- Ft / lakrész
Beltéri ajtók az utcafronti lakásnál 70.000.- Ft db árban választhatóak.
A kert öntözésére fúrt kút áll a rendelkezésünkre. A telken belül villany, vezetékes víz és átemelős rendszerű csatorna található.
A birtokbaadás az elfogadásra került Vételi szándéknyilatkozatott követően 30-90 napon belül költözhető!
Ha megtetszett Önnek az ingatlan kérem hívjon bizalommal a hét bármely napján, akár hétvégén is.
A közelben minden megtalálható ami a mindennapi élethez szükséges.
Registration Number
DHZ056297
Property Details
Sales
for sale
Legal Status
new
Character
house
Construction Method
brick
Net Size
189.3 m²
Gross Size
189.3 m²
Plot Size
837 m²
Size of Terrace / Balcony
12 m²
Heating
other
Ceiling Height
270 cm
Number of Levels Within the Property
1
Orientation
South-West
Condition
Good
Condition of Facade
Good
Year of Construction
2025
Number of Bathrooms
2
Position
courtyard-facing
Water
Available
Gas
On the street
Electricity
Available
Sewer
Available
Connected to Garden
yes
Rooms
room
10.58 m²
room
11.47 m²
open-plan kitchen and living room
30.28 m²
corridor
3.96 m²
bathroom-toilet
8.23 m²
wardrobe
3.68 m²
entryway
5.19 m²
entryway
6.31 m²
wardrobe
5.96 m²
open-plan kitchen and living room
42.24 m²
pantry
4.93 m²
toilet
2.16 m²
corridor
1.32 m²
room
12.4 m²
room
11.71 m²
corridor
1.44 m²
veranda
12 m²
Helembai Dávid
Credit Expert