data_sheet.details.realestate.section.main.otthonstart_flag.label
For sale family house,
DHZ048816
Göd
110,000,000 Ft
283,000 €
- 168m²
- 4 Rooms
Göd, központi részén eladó családi ház, utcafronti üzlethelyiséggel
Egy ingatlan, tele számtalan lehetőséggel!
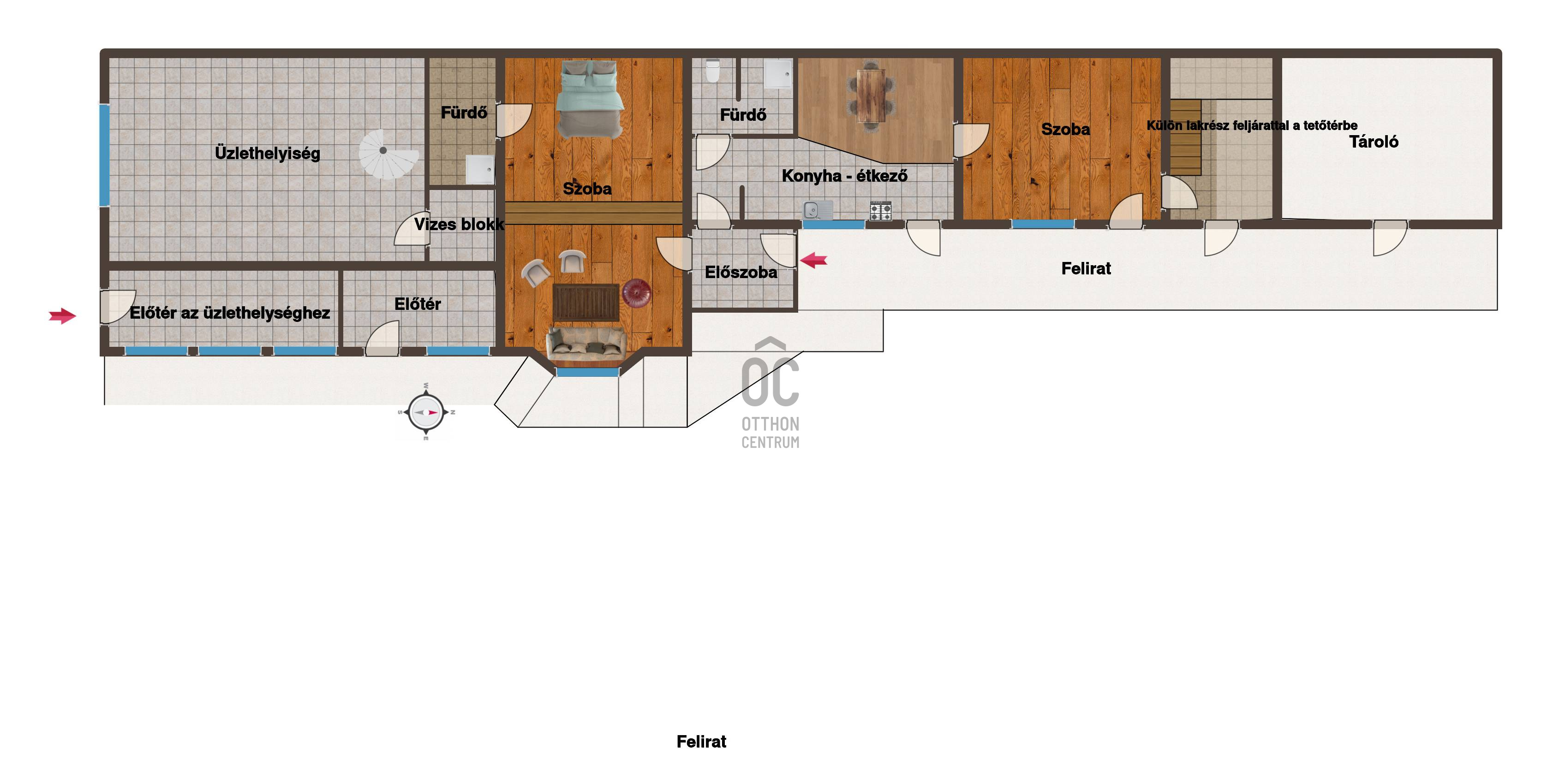
Az eredeti épület, mely most üzlethelyiségként üzemel bérbe adva, az 130-as tájékán épült. A mostani lakórész 2005-ben került hozzáépítésre, mindent dokumentálva. A házhoz külön kapun, bejáraton jutunk be, melyet egy szépen ápolt kert vesz körbe. A telek maga 722 négyzetméteres, ősfákkal, fúrt kúttal. Ezen fúrt kút egyébként a kerti locsoláson kívül egy külön kis lakrésznek biztosítja a vízellátását. A kertbe 2 autó kényelmesen be tud állni.A házba egy 30 négyzetméteres fedett teraszról lépünk be, melyre egyébként minden szobából egy terasz ajtón keresztül kényelmesen kijuthatunk a kertbe. A 2005-ös hozzáépítésből adódóan a tető is jó állapotban van, erre került felszerelésre a napelem, mely minden elektromosság ellátásáról gondoskodik a házban (pl Nobo panelek az egyes helyiségekben). Ezen felül az egyik nagyszobában egy gyönyörű cserépkályha is szolgálja a meleget, nagyon kellemes hangulatot is adva a szobának. Több helyiségben pedig gázkonvektor adja a meleget. A tetőteret 2 részletben építették be. Az egyik beépítés a teljes üzlet felett, a másik pedig a ház hátsó részén. Ez utóbbi egy külön kis lakásként is funkcionálhat. Külön bejárattal rendelkezik, alul egy kis főzőfülkével, zuhanyzóval, WC-vel, a lépcsőn felérkezvén a tetőtérbe pedig egy hatalmas egybefüggő tér, mely ideális közösségi térnek, hálófülke kialakítással. A ház végében van egy 14 négyzetméteres tároló is. Az ingatlan központi helyen, Felsőgödön található, a közelben számtalan bolt, üzlet, vasútállomás.
Amennyiben felkeltette érdeklődését az ingatlan, várom hívását, kérdéseit. Egyeztessünk időpontot megtekintésre!
Egy ingatlan, tele számtalan lehetőséggel!
Az eredeti épület, mely most üzlethelyiségként üzemel bérbe adva, az 130-as tájékán épült. A mostani lakórész 2005-ben került hozzáépítésre, mindent dokumentálva. A házhoz külön kapun, bejáraton jutunk be, melyet egy szépen ápolt kert vesz körbe. A telek maga 722 négyzetméteres, ősfákkal, fúrt kúttal. Ezen fúrt kút egyébként a kerti locsoláson kívül egy külön kis lakrésznek biztosítja a vízellátását. A kertbe 2 autó kényelmesen be tud állni.A házba egy 30 négyzetméteres fedett teraszról lépünk be, melyre egyébként minden szobából egy terasz ajtón keresztül kényelmesen kijuthatunk a kertbe. A 2005-ös hozzáépítésből adódóan a tető is jó állapotban van, erre került felszerelésre a napelem, mely minden elektromosság ellátásáról gondoskodik a házban (pl Nobo panelek az egyes helyiségekben). Ezen felül az egyik nagyszobában egy gyönyörű cserépkályha is szolgálja a meleget, nagyon kellemes hangulatot is adva a szobának. Több helyiségben pedig gázkonvektor adja a meleget. A tetőteret 2 részletben építették be. Az egyik beépítés a teljes üzlet felett, a másik pedig a ház hátsó részén. Ez utóbbi egy külön kis lakásként is funkcionálhat. Külön bejárattal rendelkezik, alul egy kis főzőfülkével, zuhanyzóval, WC-vel, a lépcsőn felérkezvén a tetőtérbe pedig egy hatalmas egybefüggő tér, mely ideális közösségi térnek, hálófülke kialakítással. A ház végében van egy 14 négyzetméteres tároló is. Az ingatlan központi helyen, Felsőgödön található, a közelben számtalan bolt, üzlet, vasútállomás.
Amennyiben felkeltette érdeklődését az ingatlan, várom hívását, kérdéseit. Egyeztessünk időpontot megtekintésre!
Registration Number
DHZ048816
Property Details
Sales
for sale
Legal Status
used
Character
house
Construction Method
brick
Net Size
168 m²
Gross Size
168 m²
Plot Size
722 m²
Number of Levels Within the Property
2
Orientation
South-East
Condition
Average
Condition of Facade
Good
Year of Construction
1930
Number of Bathrooms
2
Position
courtyard-facing
Water
Available
Gas
Available
Electricity
Available
Sewer
Available
Rooms
room
25 m²
open-plan kitchen and dining room
16.67 m²
room
17.3 m²
bathroom-toilet
4 m²
bathroom-toilet
3.94 m²
room
21 m²
room
30 m²
Joó Krisztina
Credit Expert