185,000,000 Ft
472,000 €
- 284.1m²
- 3 Rooms



















Vásároljon OKOS otthont!
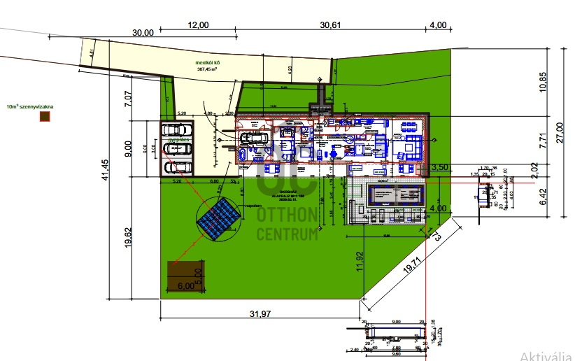
Eladó egy 2025-ben épült, intelligens, okos otthon Debrecen varázslatos környezetében, a Diószegi út irányából a Fancsikai tavak felé, az Erdős pusztai Arborétum közelében. Az ingatlan 199,07 m²-es hasznos alapterülettel büszkélkedhet, mely földszintes kivitelben került megalkotásra, plusz a 3,08 méteres építménymagasság teszi még impozánsabbá. A telekhez tartozik még egy 2800 nm alapterületű telek, mely ingyenes, 50 évre szóló bérleti joggal használható. Továbbá a telek mellett található 10.000 nm alapterületű erdő megvásárlása esetén, még teljesebb körű élményt nyújt az új tulajdonosnak.
Ez az ingatlan tökéletes választás azoknak, akik az élvonalbeli kényelmi lehetőségek mellett fontosnak tartják az ökotudatos életmódot és a természettel való harmonikus együttélést. A modern berendezéseket az eladási ár tartalmazza, így az új tulajdonosok azonnal élvezhetik ezen exkluzív otthon adta lehetőségeket.
Az épület 85%-os készültségi állapotú, néhány helyiségben még hiányoznak a burkolatok és lámpatestek, azonban ezeknek a beszerzés már megtörtént, csupán a munkák befejezés szükséges. Kisebb tereprendezés és a gépészeti rendszer beüzemelésére is szükség van.
A lakókomfortot tovább növeli a kültéri jacuzzi és medence, valamint a beltéri 3 az 1-ben finn szauna és a kétszemélyes pezsgőfürdő. Egy különlegesen kialakított szobához tartozik fürdőkádas, zuhanykabinos fürdőszoba is. Az ingatlan falazata tégla, plusz 10 cm-es hungarocell szigetelést kapott, a tetőt cserép héjazat borítja és fából készült szigetelt tetőszerkezettel rendelkezik.
Az épület modern, okos otthon technológiával büszkélkedik, elő van készítve a legkorszerűbb funkcióknak megfelelően. A fűtést és hűtést a padló-, fal- és mennyezetbe integrált rendszer, valamint a talajhőszivattyú biztosítja, míg az energiaellátást egy 5 kW-os napenergia rendszer teszi hatékonnyá. Teljes közműellátással rendelkezik, a szennyvíz kezelése akár talajszivárogtatással, vagy a gerincvezetékre történő csatlakozással megoldható.
Az ingatlanhoz vezető 1.500 m²-es szolgalmi út garantálja a privát megközelíthetőséget, szintén megvásárolható, illetve az ingatlan további terület-vásárlási vagy bérleti lehetőségekkel is bővíthető - akár egy teljes hektár területtel is!
A természet és nyugalom kedvelőinek ideális választás ez a hely, ahol a város zajától távol, de mégis nem túl messze élvezhetik otthonuk nyugalmát.
Ha felkeltette érdeklődését az ajánlatom, forduljon hozzám bizalommal, akár hétvégén is szívesen megmutatom.
Eladó egy 2025-ben épült, intelligens, okos otthon Debrecen varázslatos környezetében, a Diószegi út irányából a Fancsikai tavak felé, az Erdős pusztai Arborétum közelében. Az ingatlan 199,07 m²-es hasznos alapterülettel büszkélkedhet, mely földszintes kivitelben került megalkotásra, plusz a 3,08 méteres építménymagasság teszi még impozánsabbá. A telekhez tartozik még egy 2800 nm alapterületű telek, mely ingyenes, 50 évre szóló bérleti joggal használható. Továbbá a telek mellett található 10.000 nm alapterületű erdő megvásárlása esetén, még teljesebb körű élményt nyújt az új tulajdonosnak.
Ez az ingatlan tökéletes választás azoknak, akik az élvonalbeli kényelmi lehetőségek mellett fontosnak tartják az ökotudatos életmódot és a természettel való harmonikus együttélést. A modern berendezéseket az eladási ár tartalmazza, így az új tulajdonosok azonnal élvezhetik ezen exkluzív otthon adta lehetőségeket.
Az épület 85%-os készültségi állapotú, néhány helyiségben még hiányoznak a burkolatok és lámpatestek, azonban ezeknek a beszerzés már megtörtént, csupán a munkák befejezés szükséges. Kisebb tereprendezés és a gépészeti rendszer beüzemelésére is szükség van.
A lakókomfortot tovább növeli a kültéri jacuzzi és medence, valamint a beltéri 3 az 1-ben finn szauna és a kétszemélyes pezsgőfürdő. Egy különlegesen kialakított szobához tartozik fürdőkádas, zuhanykabinos fürdőszoba is. Az ingatlan falazata tégla, plusz 10 cm-es hungarocell szigetelést kapott, a tetőt cserép héjazat borítja és fából készült szigetelt tetőszerkezettel rendelkezik.
Az épület modern, okos otthon technológiával büszkélkedik, elő van készítve a legkorszerűbb funkcióknak megfelelően. A fűtést és hűtést a padló-, fal- és mennyezetbe integrált rendszer, valamint a talajhőszivattyú biztosítja, míg az energiaellátást egy 5 kW-os napenergia rendszer teszi hatékonnyá. Teljes közműellátással rendelkezik, a szennyvíz kezelése akár talajszivárogtatással, vagy a gerincvezetékre történő csatlakozással megoldható.
Az ingatlanhoz vezető 1.500 m²-es szolgalmi út garantálja a privát megközelíthetőséget, szintén megvásárolható, illetve az ingatlan további terület-vásárlási vagy bérleti lehetőségekkel is bővíthető - akár egy teljes hektár területtel is!
A természet és nyugalom kedvelőinek ideális választás ez a hely, ahol a város zajától távol, de mégis nem túl messze élvezhetik otthonuk nyugalmát.
Ha felkeltette érdeklődését az ajánlatom, forduljon hozzám bizalommal, akár hétvégén is szívesen megmutatom.
Registration Number
DHZ046364
Property Details
Sales
for sale
Legal Status
new
Character
house
Construction Method
brick
Net Size
284.1 m²
Gross Size
284.1 m²
Plot Size
360 m²
Size of Terrace / Balcony
112.3 m²
Heating
renewable
Ceiling Height
270 cm
Number of Levels Within the Property
1
Orientation
South-West
Condition
Good
Condition of Facade
Good
Year of Construction
2025
Number of Bathrooms
3
Position
courtyard-facing
Water
Available
Gas
Available
Electricity
Available
Sewer
Available
Rooms
dining room
14.09 m²
living room
22.01 m²
kitchen
14.4 m²
toilet
1.5 m²
entryway
10.49 m²
room
14.55 m²
bathroom-toilet
4.26 m²
wardrobe
3.2 m²
corridor
7.13 m²
bathroom-toilet
9.36 m²
room
11.92 m²
terrace
78.45 m²
veranda
30.8 m²
veranda
3.08 m²

Czellér András
Credit Expert