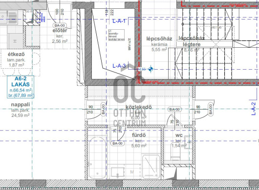
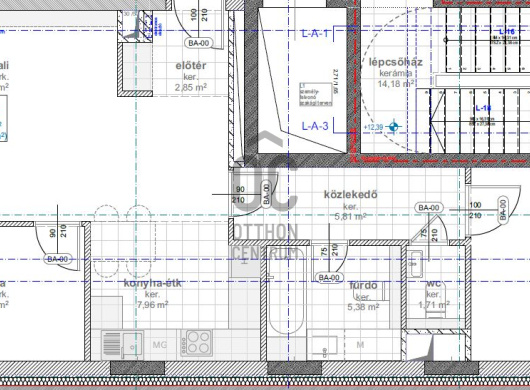
SILVER Residence projekt ingatlanjai

40 property
12 / 40 properties