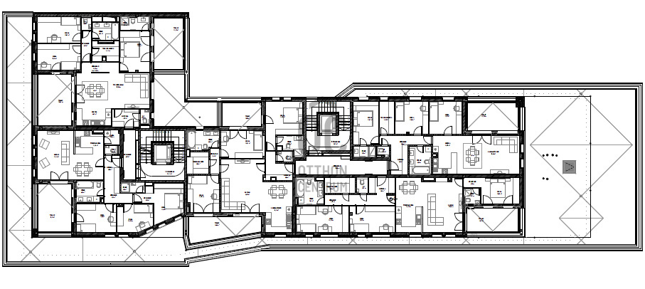
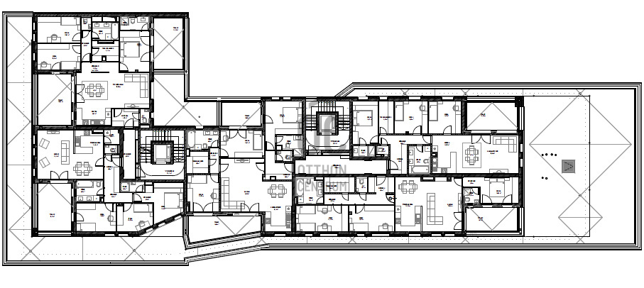
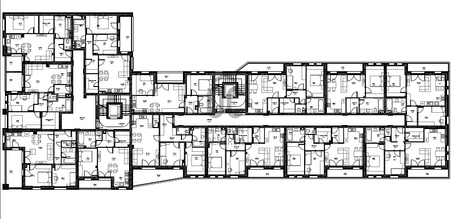
Érd Home
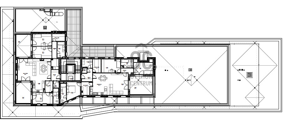
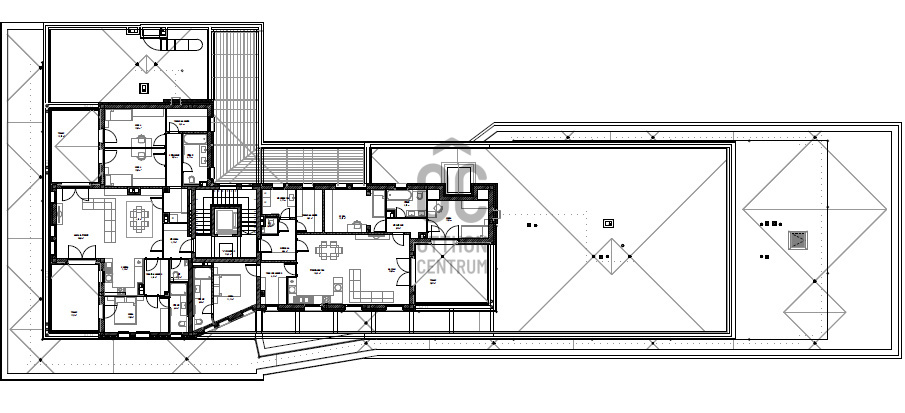
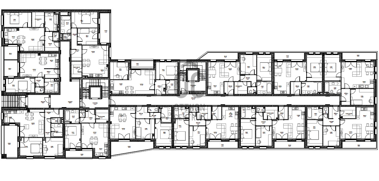
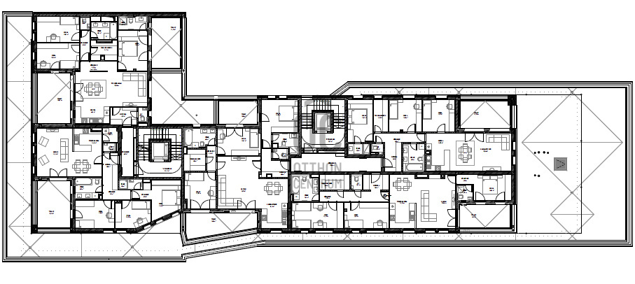
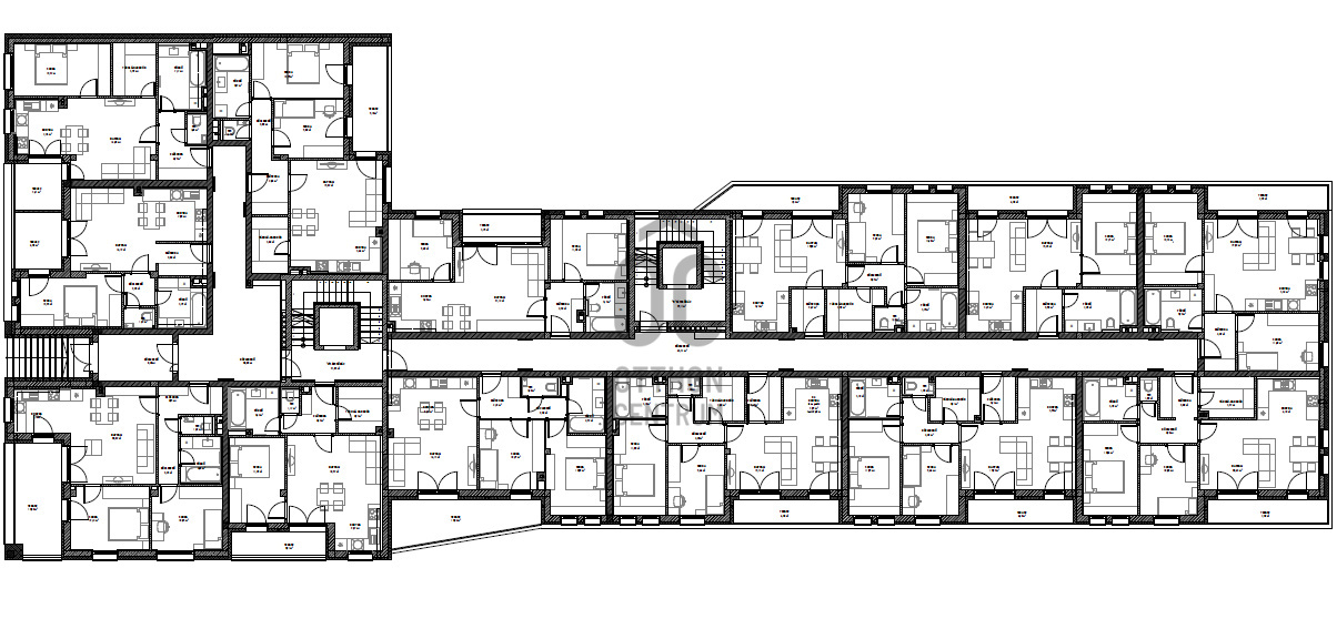
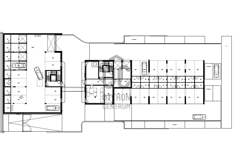
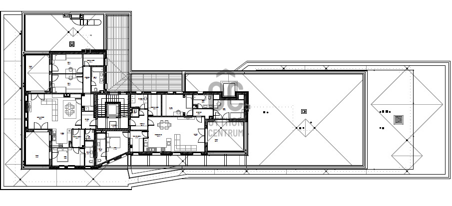
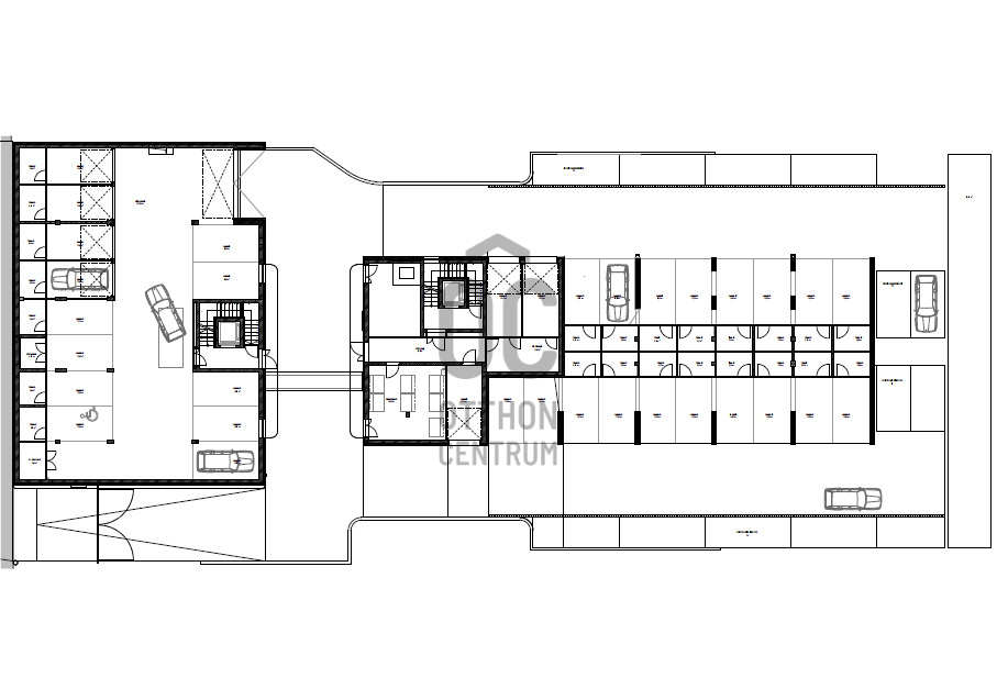
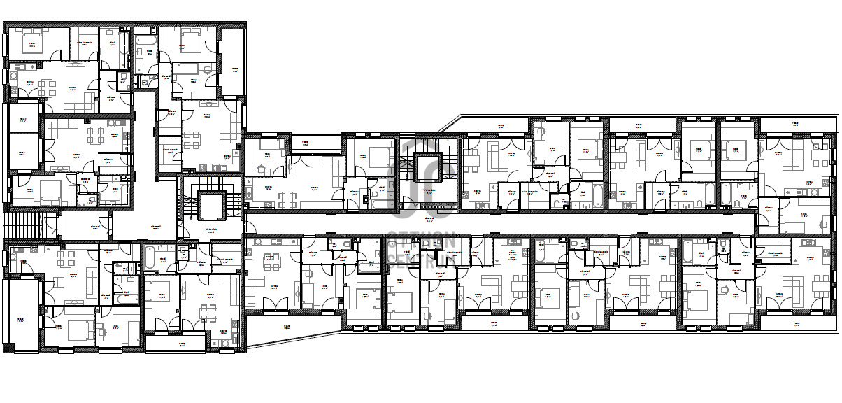
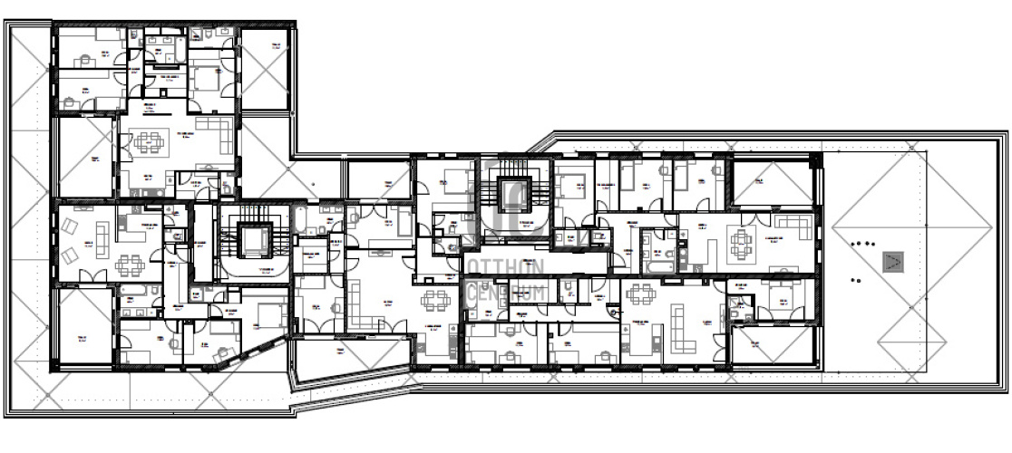
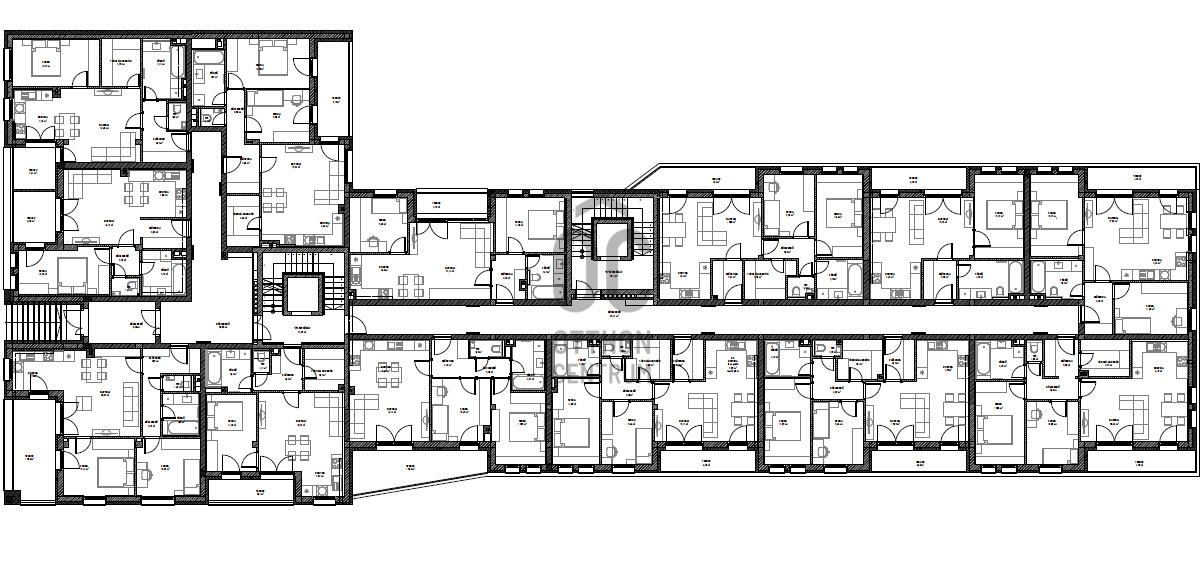
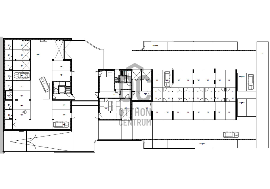
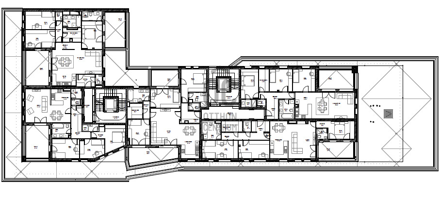
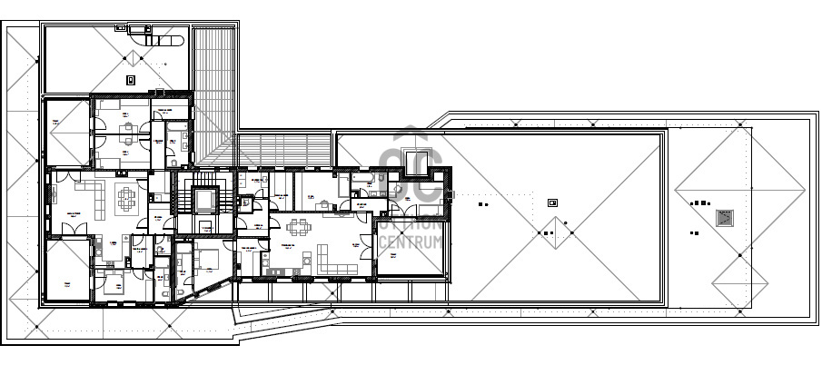
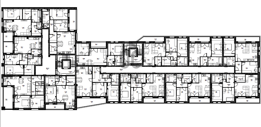
Az Érd város frekventált részén található F35 lakóparkban kínálunk modern lakásokat és penthouse lakásokat, mindössze pár száz méterre a városközponttól, iskoláktól, óvodáktól, üzletektől, valamint busz- és vonatpályaudvartól. Az új építésű lakópark lakásai 2-4 szobásak, kielégítve a mai építészeti elvárásokat és kihívásokat. A lakások széles méretválasztékban elérhetők, területük 48-120 m2 között változhat. Minden lakáshoz nagyméretű terasz vagy erkély tartozik, melyek részben vagy teljesen fedettek, továbbá tároló is rendelkezésre áll. A teremgarázs szinten található további tároló helyiségek, fedett gépkocsi parkolók és teremgarázsok is, valamint kültéri parkolóhelyek is választhatók. Az épület és parkolók hozzáférését sorompós-kártyás beléptető rendszer biztosítja.
A lakások fűtését egy hat nagyteljesítményű Daikin központi hőszivattyús rendszer, mennyezetfűtés-hűtés rendszer és szellőztető berendezés biztosítja az épület alsó szintjén található gépészeti helyiségekben. A beépített hűtés rendszer a nyári hónapokban kényelmes és komfortossá teszi a lakásokban tartózkodást, elkerülve az egyesével telepített klímaberendezések költségeit.
Az ingatlanok megfelelnek a modern építészeti előírásoknak, és "MEGÚJULÓ ENERGIA FORRÁSÚ" besorolásba tartoznak, amely a "KÖZEL NULLA" ENERGIAIGÉNYRE VONATKOZÓ KÖVETELMÉNYEKNEK és a jelenleg érvényben lévő állami lakásvásárlási támogatás hőtechnikai besorolásának is megfelel. Az ingatlanok a legmodernebb építészeti anyagokat használják, amelyek fokozott hőszigetelést biztosítanak. Ennek eredményeként az ingatlanok rendkívül alacsony havi rezsiköltséggel üzemeltethetők.
Az ingatlanokhoz választható hideg-meleg burkolatok, szaniterek és beltéri ajtók, amelyek a kulcsrakész ár részét képezik.
Az lakóépület a neves építésziroda, Varga Krisztina és Varjasy Anikó által tervezett, különleges megjelenésű és stílusú, valamint egyedülálló építészeti megoldásokkal rendelkező épület. Az ár-értékarány rendkívül kedvező, így befektetésként is kiváló lehetőséget kínál.
A Felső utca hamarosan csatlakozik Érd városközpontjához, ami tovább növeli az ingatlanok értékét, hosszú távú értékállóságát és élhetőségét. A lakások új építésű környezetben találhatók, és néhány lakásból gyönyörű kilátás nyílik a Tétényi fennsíkra.
A lakópark kiváló infrastruktúrával rendelkezik, könnyen elérhető Érd számos irányból, úton és autópályán keresztül, beleértve az M1, M0, M6 és M7 autópályákat is.
A lakások fűtését egy hat nagyteljesítményű Daikin központi hőszivattyús rendszer, mennyezetfűtés-hűtés rendszer és szellőztető berendezés biztosítja az épület alsó szintjén található gépészeti helyiségekben. A beépített hűtés rendszer a nyári hónapokban kényelmes és komfortossá teszi a lakásokban tartózkodást, elkerülve az egyesével telepített klímaberendezések költségeit.
Az ingatlanok megfelelnek a modern építészeti előírásoknak, és "MEGÚJULÓ ENERGIA FORRÁSÚ" besorolásba tartoznak, amely a "KÖZEL NULLA" ENERGIAIGÉNYRE VONATKOZÓ KÖVETELMÉNYEKNEK és a jelenleg érvényben lévő állami lakásvásárlási támogatás hőtechnikai besorolásának is megfelel. Az ingatlanok a legmodernebb építészeti anyagokat használják, amelyek fokozott hőszigetelést biztosítanak. Ennek eredményeként az ingatlanok rendkívül alacsony havi rezsiköltséggel üzemeltethetők.
Az ingatlanokhoz választható hideg-meleg burkolatok, szaniterek és beltéri ajtók, amelyek a kulcsrakész ár részét képezik.
Az lakóépület a neves építésziroda, Varga Krisztina és Varjasy Anikó által tervezett, különleges megjelenésű és stílusú, valamint egyedülálló építészeti megoldásokkal rendelkező épület. Az ár-értékarány rendkívül kedvező, így befektetésként is kiváló lehetőséget kínál.
A Felső utca hamarosan csatlakozik Érd városközpontjához, ami tovább növeli az ingatlanok értékét, hosszú távú értékállóságát és élhetőségét. A lakások új építésű környezetben találhatók, és néhány lakásból gyönyörű kilátás nyílik a Tétényi fennsíkra.
A lakópark kiváló infrastruktúrával rendelkezik, könnyen elérhető Érd számos irányból, úton és autópályán keresztül, beleértve az M1, M0, M6 és M7 autópályákat is.












