Eladó kereskedelmi ingatlan, UZ018539
Budapest XIII. kerület, Lőportárdűlő

530 518 800 Ft

1 370 000 €

  • 934m²
  • földszint

Iroda funkció + raktár

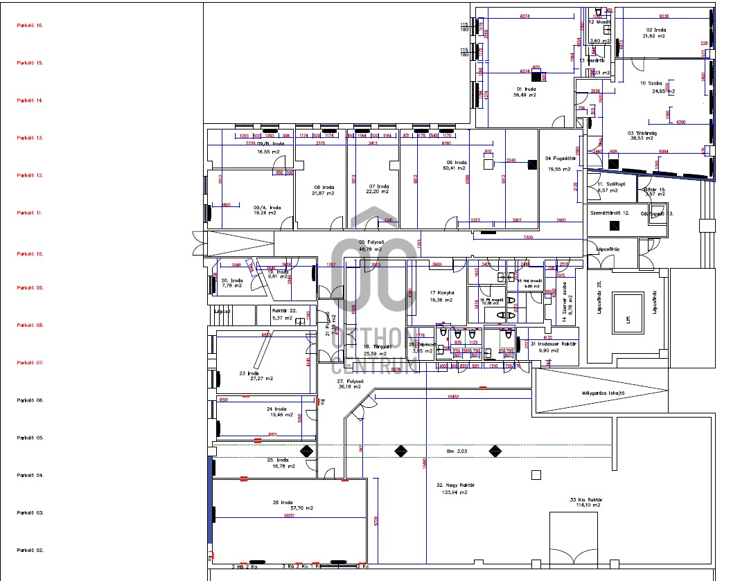
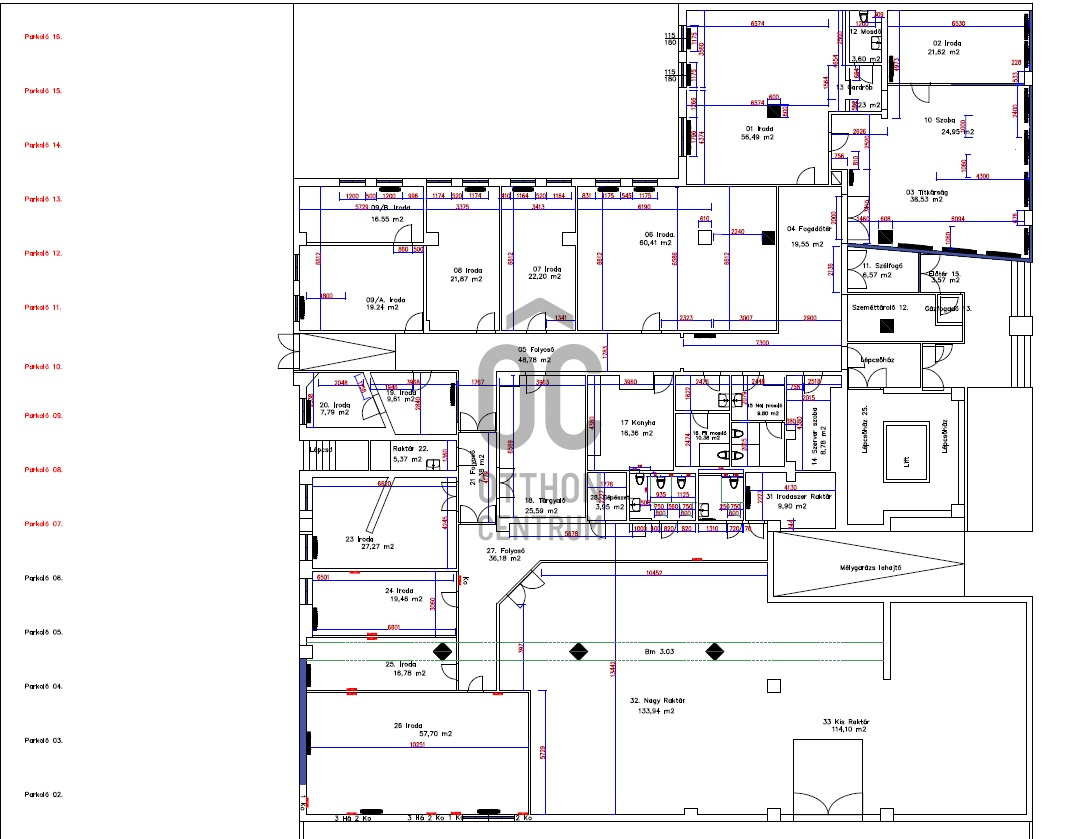
XIII. kerületben kínálunk megvételre egy 2005-ben épült társasház teljes földszinti területét. A 2022-ben, teljeskörűen felújított ingatlan két külön albetéten található, jelenleg iroda + raktárként funkciónál. Az 706 nm-es irodaterületen több irodahelyiség, tárgyalók, kiszolgálóhelyiségek, mosdók kerültek kialakításra. A raktárterület 228 nm-es. Belmagasság 330 cm. Az ingatlanhoz összesen 11 db autóbeállási lehetőség tartozik, ebből 10 db felszíni beálló, mely a társasház zárt udvarán található és közvetlenül az irodából közelíthető meg. 1 db autóbeálló a társasház alatt lévő mélygarázsban helyezkedik el. Az iroda-raktár arány szabadon variálható a sok válaszfalnak köszönhetően.
Megfelelő lehet kis és nagykereskedelmi tevékenységre, irodafunkcióra, oktatásra, cégközpontnak, egészségügyi központ, stb.
A meghirdetett ir. ár nettó, további ÁFA terheli!

Regisztrációs szám

UZ018539

Az ingatlan adatai

Értékesités
eladó
Jogi státusz
használt
Jelleg
üzleti célú
Típus
épületrész
Építési mód
tégla
Méret
934 m²
Föld feletti nettó méret
934 m²
Belmagasság
330 cm
Állapot
Kiváló
Homlokzat állapota
Kiváló
Lépcsőház állapota
Kiváló
Közös költség
288000
Víz
Van
Gáz
Van
Villany
Van
Csatorna
Van
Lift
van

 

Lehetséges funkciók
kiskereskedelem, iroda, iroda és bemutatóterem, vagy üzlet, iroda és raktár, bemutatóterem, bemutatóterem és szervíz, vagy raktár, egészségügyi központ, oktatási központ
Láthatóság
Mellékutcában utcafronton lévő
Megközelíthetőseg
Mellékutcára nyíló bejárat
Hasznosítás
tulajdosnos használja
Ruczek Krisztina
Ruczek Krisztina

Hitelszakértő

Irodánk kínálatából - V. kerület - Hild tér

for sale apartment

Index image
12

for sale apartment

Index image
23

for rent apartment

Index image
18

for sale apartment

Index image
34

for sale apartment

Index image
data_sheet.details.realestate.section.main.otthonstart_flag.label
15

for sale apartment

Index image
32

for sale apartment

Index image
22

for sale commercial property

Index image
5