349 900 000 Ft
900 000 €
- 1 137m²








KEDVEZMÉNYES ÁRON TELEPHELY? - AZONNAL!
Eladó Pest megyében, a Bagi Ipari Parkban, közvetlenül az M3-as autópálya mellett, össztömeg korlátozás nélkül megközelíthető zónában önálló újépítésű telephely!
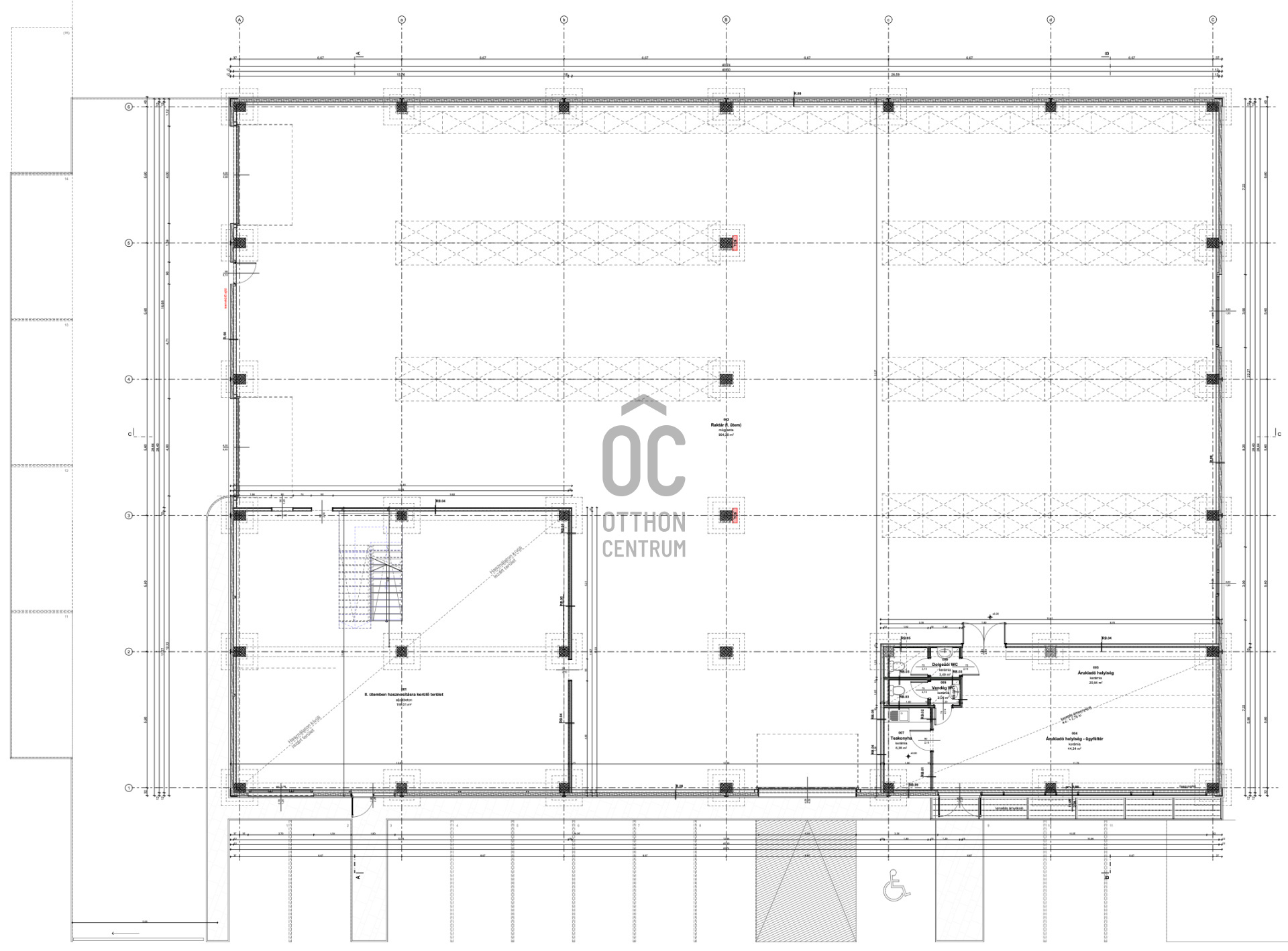
A 3.460 nm-es telekre, 1.137 nm-es alapterületű új betonvázas szendvicspanel csarnokot építettek, mely opcionáálisan bővíthető.
A csarnokban 78nm-en bemutató terem/iroda illetve szociális blokk, teakonyha került kialakításra, további 2x150 nm iroda terület kialakítása félbe maradt.
Műszaki paraméterek:
- Pormentes ipari beton aljzat;
- 3db szintbeli 4*4.5m-es szekcionált kapu;
- 9 m-es belmagasság;
- 12cm-es oldal, 14cm-es tető panel vastagság;
- 3*63A elektromos áram kapacitás, mely 3x200A-re bővíthető;
- Kiépített kamera és riasztó rendszer;
- Kiépített tüzivíz tároló;
- Automata mozgás és jelenlét-érzékelős Helvar világításvezérlő rendszer ipari LED-es csarnokvilágítással;
- 15 db térkövezett parkoló.
A terület GKSZ övezetbe tartozik.
Irányára: 349,9 M Ft + ÁFA.
Bármi felmerülő kérdéssel, vagy a bejárással kapcsolatban várjuk megkeresését!
A 3.460 nm-es telekre, 1.137 nm-es alapterületű új betonvázas szendvicspanel csarnokot építettek, mely opcionáálisan bővíthető.
A csarnokban 78nm-en bemutató terem/iroda illetve szociális blokk, teakonyha került kialakításra, további 2x150 nm iroda terület kialakítása félbe maradt.
Műszaki paraméterek:
- Pormentes ipari beton aljzat;
- 3db szintbeli 4*4.5m-es szekcionált kapu;
- 9 m-es belmagasság;
- 12cm-es oldal, 14cm-es tető panel vastagság;
- 3*63A elektromos áram kapacitás, mely 3x200A-re bővíthető;
- Kiépített kamera és riasztó rendszer;
- Kiépített tüzivíz tároló;
- Automata mozgás és jelenlét-érzékelős Helvar világításvezérlő rendszer ipari LED-es csarnokvilágítással;
- 15 db térkövezett parkoló.
A terület GKSZ övezetbe tartozik.
Irányára: 349,9 M Ft + ÁFA.
Bármi felmerülő kérdéssel, vagy a bejárással kapcsolatban várjuk megkeresését!
Regisztrációs szám
UZ018500
Az ingatlan adatai
Értékesités
eladó
Jogi státusz
új
Jelleg
üzleti célú
Típus
teljes épület
Építési mód
panel
Méret
1 137 m²
Telek méret
3 460 m²
Föld feletti nettó méret
1 137 m²
Belmagasság
900 cm
Állapot
Kiváló
Homlokzat állapota
Kiváló
Építés éve
2024
Víz
Van
Gáz
Utcán
Villany
Van
Csatorna
Van
Lehetséges funkciók
values.realestate.lehetsegesFunkcio.1024, egészségügyi központ, oktatási központ, mezőgazdasági telephely, egyéb
Láthatóság
Forgalmas főútról jól látható
Megközelíthetőseg
12 tonna feletti kamionnal behajtási engedély nélkül megközelíthető
Hasznosítás
üres

Kőrösi Róbert
Hitelszakértő