850 000 000 Ft
2 170 000 €
- 1 500m²




































Exceptional investment opportunity! 100% RENTED OUT, REAL ESTATE!
I offer this 100% rented out, utilized worker's residence for sale in the Óhegy area of the 10th district for investment!
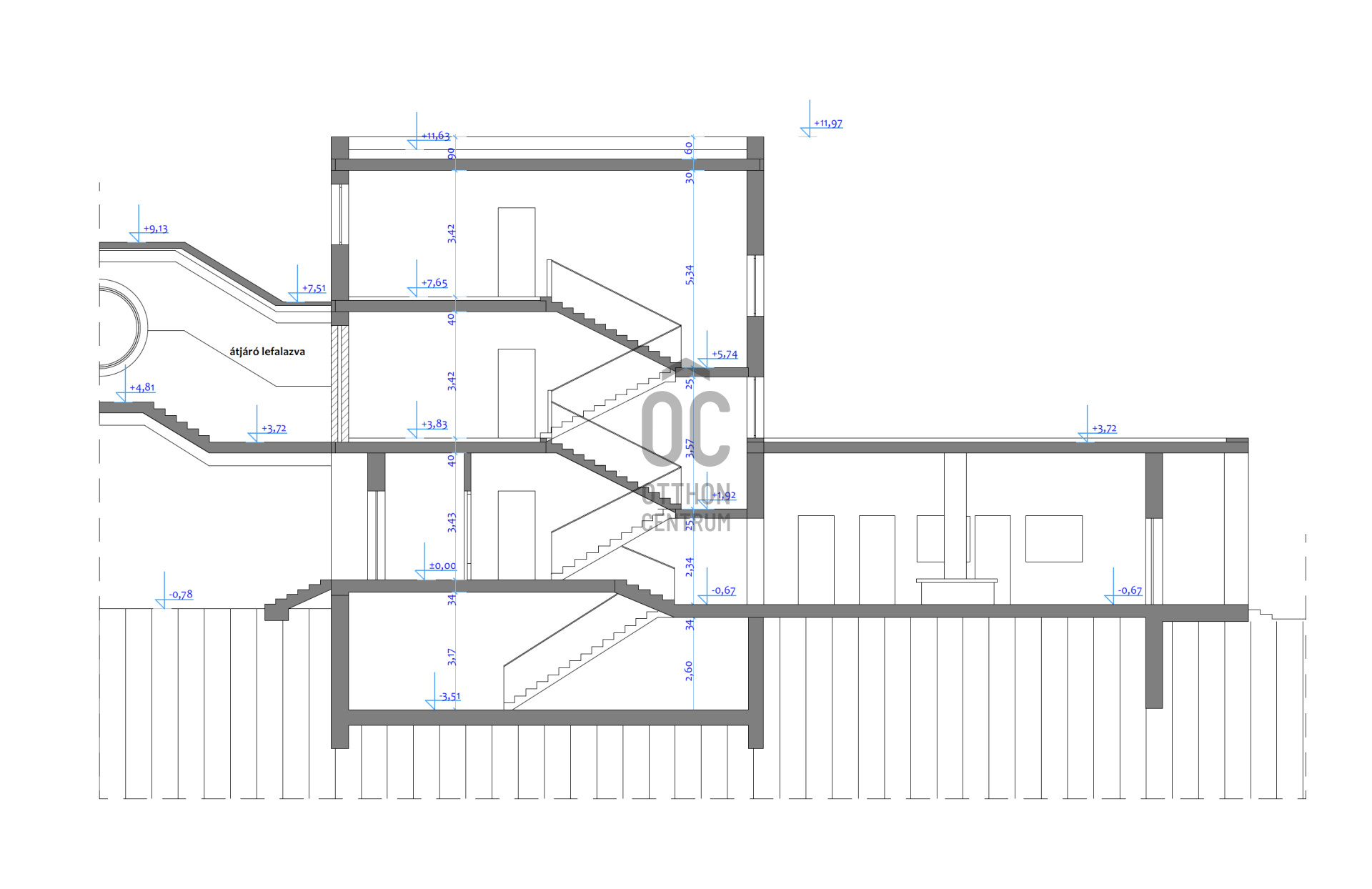
The property has a total useful floor area of 1500 sqm, which includes 59 rooms with private bathrooms, storage rooms, kitchen, reception desk and buffet, covered smoking - lounge, laundry and other auxiliary rooms. Current capacity is around 130-150 people in mixed rooms of 1-2-4 beds, typically using bunk beds.
Windows are modern plastic, sound and heat insulated, replaced a few years ago.
Central heating, currently a mixed fuel boiler heated by wood, with panel radiators.
The hot water is supplied continuously by two (1000/500 litre) DHW tanks.
The property is rented and operated by a company, generating an income of 8Mft per month.
The return period is approx. 11 YEARS, YIELD: 8,85%
The property is owned by the COMPANY, can be purchased with the company!
The purchase price includes all the furniture, equipment and other movables necessary for the operation.
The property has a total useful floor area of 1500 sqm, which includes 59 rooms with private bathrooms, storage rooms, kitchen, reception desk and buffet, covered smoking - lounge, laundry and other auxiliary rooms. Current capacity is around 130-150 people in mixed rooms of 1-2-4 beds, typically using bunk beds.
Windows are modern plastic, sound and heat insulated, replaced a few years ago.
Central heating, currently a mixed fuel boiler heated by wood, with panel radiators.
The hot water is supplied continuously by two (1000/500 litre) DHW tanks.
The property is rented and operated by a company, generating an income of 8Mft per month.
The return period is approx. 11 YEARS, YIELD: 8,85%
The property is owned by the COMPANY, can be purchased with the company!
The purchase price includes all the furniture, equipment and other movables necessary for the operation.
Regisztrációs szám
UZ017622
Az ingatlan adatai
Értékesités
eladó
Jogi státusz
használt
Jelleg
üzleti célú
Típus
teljes épület
Építési mód
tégla
Méret
1 500 m²
Telek méret
600 m²
Föld feletti nettó méret
1 500 m²
Fűtés
vegyestüzelésű kazán
Belmagasság
320 cm
Lakáson belüli szintszám
2
Állapot
Átlagos
Homlokzat állapota
Jó
Víz
Van
Villany
Van
Csatorna
Van
Lehetséges funkciók
kiskereskedelem, vendéglátóipari egység, ipari csarnok vagy raktár, szálloda, panzió, hostel
Megközelíthetőseg
12 tonna feletti kamionnal behajtási engedély nélkül megközelíthető
Hasznosítás
bérbe adott
Havi bérleti díj
8000000

Pados - Burján Renáta Zita
Hitelszakértő