230 000 000 Ft
592 000 €
- 1 348m²




























































CALMNESS AND THE DANUBE!
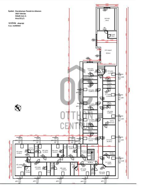
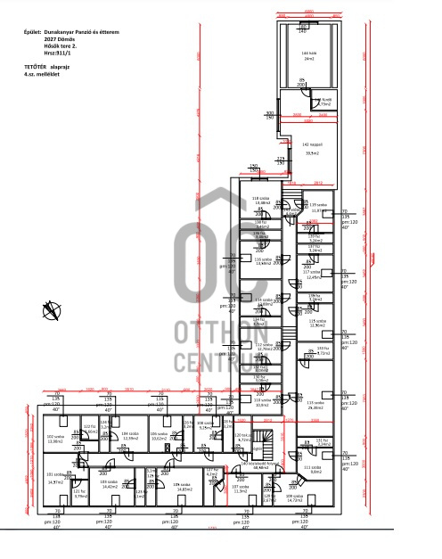
A guesthouse and bar in need of renovation on Heroes' Square in the quiet and beautiful town of Dömös in the picturesque Danube Bend has become available for sale. The property is almost 1400 square meters, including an internal garden and a bar, and also includes 5 historic wine cellars, each 40 square meters, which offer further entertainment opportunities for the guests of the guesthouse. The property is in an excellent location, as most tourist routes start from here, such as the Rám-szakadék. Regarding the surrounding area: - Visegrád is 7 km away. It is a medieval fortress, with the Salamon Tower and Palace, and the most important attraction is the knight's tournament. - Esztergom is 17 km away, with a basilica, ecclesiastical and secular museums, and an old town. - Szentendre is 17 km away, with a village museum, churches, an old town, etc. - Zebegény is 12 km away. - Nagymaros city is 7 km away.
This is a truly unique opportunity, as the Danube Bend offers thousands of tourists the opportunity to rest, and this guesthouse would greatly enhance the town and the region!
For more information, please call to arrange a viewing appointment in advance.
This is a truly unique opportunity, as the Danube Bend offers thousands of tourists the opportunity to rest, and this guesthouse would greatly enhance the town and the region!
For more information, please call to arrange a viewing appointment in advance.
Regisztrációs szám
UZ017214
Az ingatlan adatai
Értékesités
eladó
Jogi státusz
használt
Jelleg
üzleti célú
Típus
teljes épület
Építési mód
tégla
Méret
1 348 m²
Telek méret
1 348 m²
Föld feletti nettó méret
1 m²
Belmagasság
300 cm
Lakáson belüli szintszám
1
Állapot
Felújítandó
Homlokzat állapota
Átlagon aluli
Építés éve
1980
Fedett beállók száma
3
Víz
Van
Gáz
Van
Villany
Van
Csatorna
Van
Lehetséges funkciók
panzió, hostel
Hasznosítás
üres