499 000 000 Ft
1 316 000 €
- 650m²
An independent building operating as a private medical practice is for sale
A property for sale in a frequented location in the 11th district, with excellent accessibility, free parking, direct street entrance, and barrier-free access.
The house, which has been used as a popular private practice since 2001, is also excellently suitable for a private clinic, dental center, office building, or company representative function.
It has all the official licenses required for official operation.
The property was modernized in 2000 and is currently in good technical and aesthetic condition.
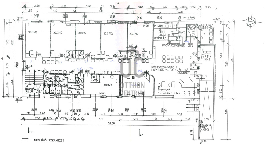
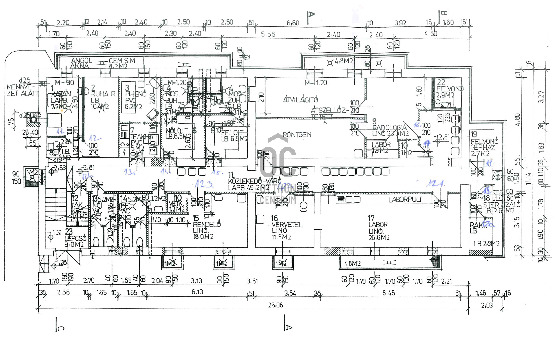
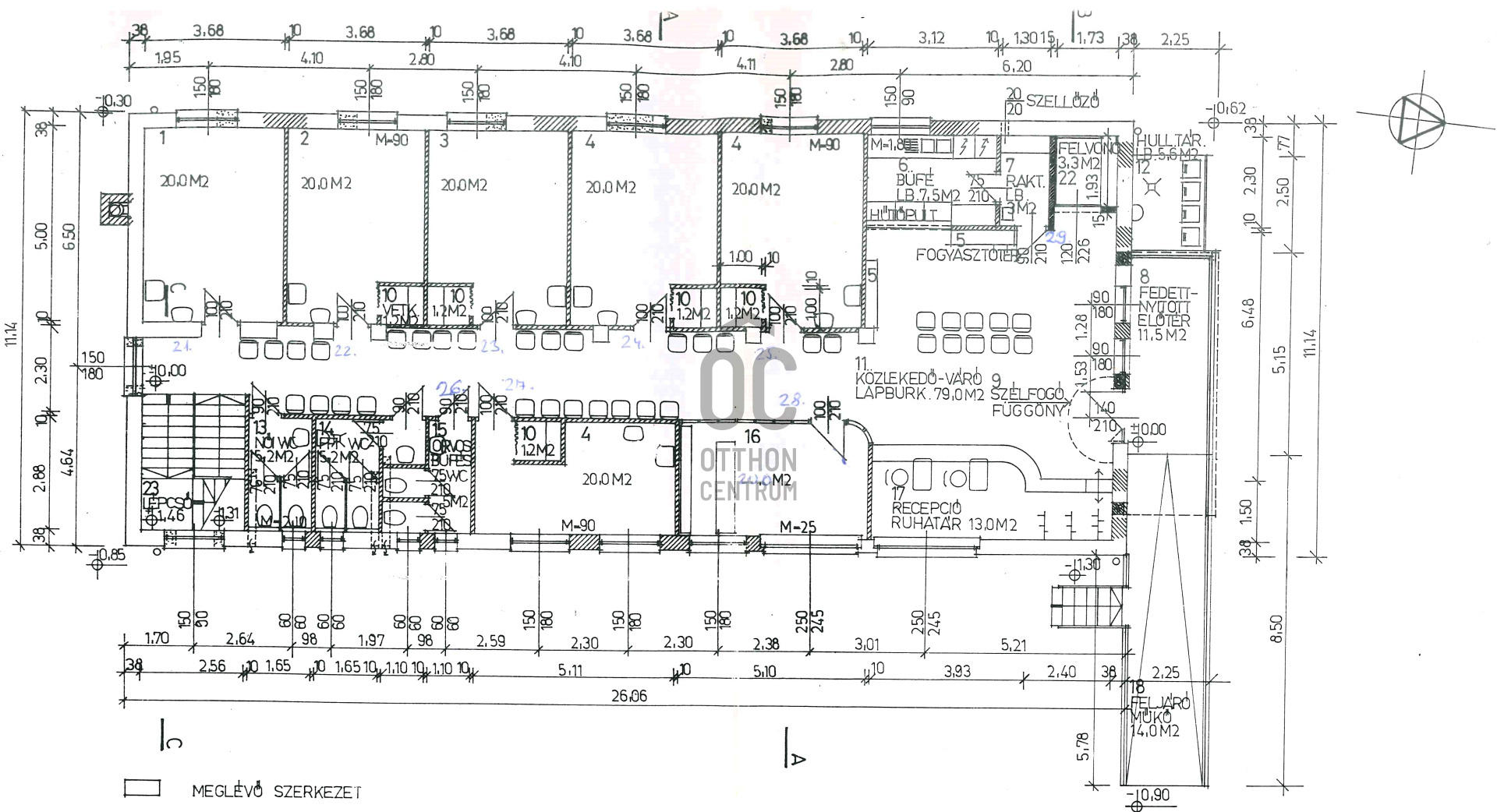
3 levels (basement, ground floor, attic), all levels are built-in, fully usable.
Its layout is practical, the examination rooms have a separate water block.
Public transport:
It can be reached with buses 114, 213, 214 and trams 17, 41, 47, 48, 56.
The house, which has been used as a popular private practice since 2001, is also excellently suitable for a private clinic, dental center, office building, or company representative function.
It has all the official licenses required for official operation.
The property was modernized in 2000 and is currently in good technical and aesthetic condition.
3 levels (basement, ground floor, attic), all levels are built-in, fully usable.
Its layout is practical, the examination rooms have a separate water block.
Public transport:
It can be reached with buses 114, 213, 214 and trams 17, 41, 47, 48, 56.
Regisztrációs szám
UZ016990
Az ingatlan adatai
Értékesités
eladó
Jogi státusz
használt
Jelleg
üzleti célú
Típus
teljes épület
Építési mód
tégla
Méret
650 m²
Telek méret
568 m²
Föld feletti nettó méret
520 m²
Fűtés
gáz kazán
Belmagasság
300 cm
Lakáson belüli szintszám
3
Állapot
Jó
Homlokzat állapota
Jó
Építés éve
1954
Víz
Van
Gáz
Van
Villany
Van
Csatorna
Van
Lehetséges funkciók
vendéglátóipari egység, ipari csarnok vagy raktár, panzió, hostel, egészségügyi központ, oktatási központ, mezőgazdasági telephely
Láthatóság
Nagy gyalogosforgalmú utcában jól látható
Megközelíthetőseg
Nagy gyalogosforgalmú utcára nyíló bejárat
Hasznosítás
tulajdosnos használja
Gerber Dorottya
Hitelszakértő