1 200 000 000 Ft
3 181 000 €
- 2 621m²
Eladó gyárépület
Factory Building for Sale
A 4,000 m² industrial plot and a 2,621 m², 5-story brick building with 30 parking spaces are for sale in District X. The building currently has several tenants.
Main Building Features:
•In good condition and currently in use.
Layout:
•Basement: 200 m²
•Ground floor: 1,100 m²
•1st floor: 1,100 m²
•2nd floor: 100 m²
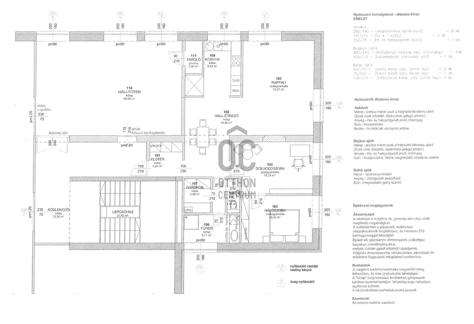
The property was built in 1969 and consists of a basement + ground floor + 1st floor + partially a 2nd floor, designed as a workshop, hall, warehouse, and office. The basement level has two floors.
On the ground floor, there are offices and rooms designed for storage. On the upper floor, there is a photo studio, offices, and a residential unit with a living room and two bedrooms.
The foundation is a concrete strip foundation. The vertical load-bearing structure is made of brick walls.
The building has a traditional layout corresponding to its construction period, with an average exterior condition. The interior spaces have been undergoing continuous renovation for years. The external doors and windows, floorings, and the entire electrical system have been replaced. Every rentable unit has its own sub-meter. Heating is provided by inverter air conditioners and, in larger spaces, by electric heating foil after disconnecting from the gas system. Hot water in the office and residential areas is supplied by two gas boilers with radiator heat emitters. Almost the entire roof structure has been insulated using a spray method.
The property is located in the Gyárdülő district of Budapest’s 10th district. In the immediate vicinity, there are company premises with detached buildings, the railway on the street front, and family houses further away.
The property can be accessed via a regulated, developed road with a solid surface. Infrastructure is adequate, with basic and specialized service institutions nearby.
The property can be accessed by truck without restrictions.
A 4,000 m² industrial plot and a 2,621 m², 5-story brick building with 30 parking spaces are for sale in District X. The building currently has several tenants.
Main Building Features:
•In good condition and currently in use.
Layout:
•Basement: 200 m²
•Ground floor: 1,100 m²
•1st floor: 1,100 m²
•2nd floor: 100 m²
The property was built in 1969 and consists of a basement + ground floor + 1st floor + partially a 2nd floor, designed as a workshop, hall, warehouse, and office. The basement level has two floors.
On the ground floor, there are offices and rooms designed for storage. On the upper floor, there is a photo studio, offices, and a residential unit with a living room and two bedrooms.
The foundation is a concrete strip foundation. The vertical load-bearing structure is made of brick walls.
The building has a traditional layout corresponding to its construction period, with an average exterior condition. The interior spaces have been undergoing continuous renovation for years. The external doors and windows, floorings, and the entire electrical system have been replaced. Every rentable unit has its own sub-meter. Heating is provided by inverter air conditioners and, in larger spaces, by electric heating foil after disconnecting from the gas system. Hot water in the office and residential areas is supplied by two gas boilers with radiator heat emitters. Almost the entire roof structure has been insulated using a spray method.
The property is located in the Gyárdülő district of Budapest’s 10th district. In the immediate vicinity, there are company premises with detached buildings, the railway on the street front, and family houses further away.
The property can be accessed via a regulated, developed road with a solid surface. Infrastructure is adequate, with basic and specialized service institutions nearby.
The property can be accessed by truck without restrictions.
Regisztrációs szám
UZ016889
Az ingatlan adatai
Értékesités
eladó
Jogi státusz
használt
Jelleg
üzleti célú
Típus
teljes épület
Építési mód
tégla
Méret
2 621 m²
Telek méret
4 000 m²
Föld feletti nettó méret
2 621 m²
Belmagasság
320 cm
Lakáson belüli szintszám
5
Állapot
Jó
Homlokzat állapota
Jó
Építés éve
1969
Víz
Van
Gáz
Van
Villany
Van
Csatorna
Van
Lift
van
Lehetséges funkciók
kiskereskedelem, vendéglátóipari egység, values.realestate.lehetsegesFunkcio.1024, szálloda, panzió, hostel, sportközpont, egészségügyi központ, oktatási központ, bérház, egyéb
Megközelíthetőseg
12 tonna feletti kamionnal behajtási engedély nélkül megközelíthető
Hasznosítás
bérbe adott
Havi bérleti díj
2500000