575 000 000 Ft
1 481 000 €
- 525m²
 
            
                                                             
            
                                                             
            
                                                             
            
                                                             
            
                                                             
            
                                                             
            
                                                             
            
                                                            In the city center of Debrecen, a business opportunity awaits – invest in the future!
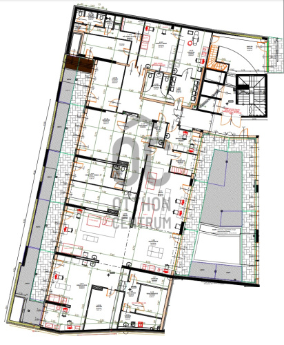
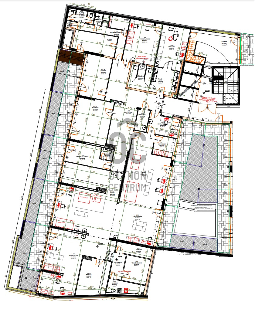
We offer an outstanding opportunity for businesses interested in the real estate market in the center of Debrecen, in the form of a premium quality, excellent condition property.  The commercial space is being sold with existing, fixed-term tenants, ensuring immediate returns on investment.  This property, which currently functions as a healthcare center, is an ideal choice for various business purposes due to its unique design and modern layout, whether it be for a medical office, beauty center, or even office activities. The 525 square meters of floor area and the 222.7 square meter terrace provide opportunities for creative and functional space design. The 8 garage spaces associated with the property facilitate transportation for employees and clients, further enhanced by the excellent amenities and proximity to transportation hubs in the area.  Thanks to its central location, the property is easily accessible by both car and public transport, making it an ideal choice for those wishing to operate their business in the heart of the city. The center of Debrecen is not only advantageous in terms of transportation options, but the safe and quiet atmosphere of the area also contributes to a pleasant environment for conducting activities. The trendy neighborhood offers numerous business opportunities, ensuring you won't miss out on the city's development and a wide range of potential clients. The modern, barrier-free design allows the property to be accessible to everyone, which is particularly important for healthcare centers. In addition to its current function, the property holds numerous other possibilities, allowing you to creatively shape its future operations. The area's amenities are excellent, with nearby shops, restaurants, and services all contributing to the convenience of daily life and the success of your business.   If you have any questions regarding the property or the area, please feel free to contact us. We are here to ensure your satisfaction and provide the right information to help you find the ideal solution for achieving your business goals. For those interested in the property, this opportunity can represent not just a new location, but also a new beginning for a successful business.
                    Regisztrációs szám
UZ012440
                Az ingatlan adatai
Értékesités
                                        eladó
                                                                                                                                                Jogi státusz
                                        új
                                                                                                                                                Jelleg
                                        üzleti célú
                                                                                                                                                                                                                    Típus
                                        épületrész
                                                                                                                                                Építési mód
                                        tégla
                                                                                                                                                                                                                                                                                                                                                                                                                                                                                                    Méret
                                        525 m²
                                                                                                                                                                                                                                                                                        Terasz / erkély mérete
                                        222,7 m²
                                                                                                                                                Föld feletti nettó méret
                                        525 m²
                                                                                                                                                                                                                                                                                                                                                                                                                                Belmagasság
                                        270 cm
                                                                                                                                                Lakáson belüli szintszám
                                        2
                                                                                                                                                                                                                    Panoráma
                                        Egyéb
                                                                                                                                                                                                                    Állapot
                                        Kiváló
                                                                                                                                                Homlokzat állapota
                                        Kiváló
                                                                                                                                                Lépcsőház állapota
                                        Kiváló
                                                                                                                                                                                                                                                                                        Építés éve
                                        2021
                                                                                                                                                                                                                                                                                                                                                                                                                                                                                                                                                                        Garázs férőhely
                                        8
                                                                                                                                                                                                                                                                                        Víz
                                        Van
                                                                                                                                                                                                                    Villany
                                        Van
                                                                                                                                                Csatorna
                                        Van
                                                                                                                                                Lift
                                        van
                                                                                                                                                                                                                                                                                                                                                                                                                                                                                                                        Lehetséges funkciók
                                            iroda és bemutatóterem, vagy üzlet, oktatási központ
                                                                                                                                                                                                                                                                                                                                                                                                    Láthatóság
                                            Mellékutcában utcafronton lévő
                                                                                                                                                                Megközelíthetőseg
                                            Társasház udvaráról vagy lépcsőházból nyíló ingatlan
                                                                                                                                                                Hasznosítás
                                            bérbe adott
                                                                                                                                                                                                                                            Havi bérleti díj
                                            6456
                                                                                                             
            
                            Bitó István
Hitelszakértő
 
                    
                 
                         
                         
                         
                         
                         
                         
                         
                         
                    
                 
                 
                 
                 
                 
                 
                 
                 
                 
                 
                 
                