Eladó üzleti célú ingatlan, UZ010389
Sopron, Belváros-külső

151 632 000 Ft

400 000 €

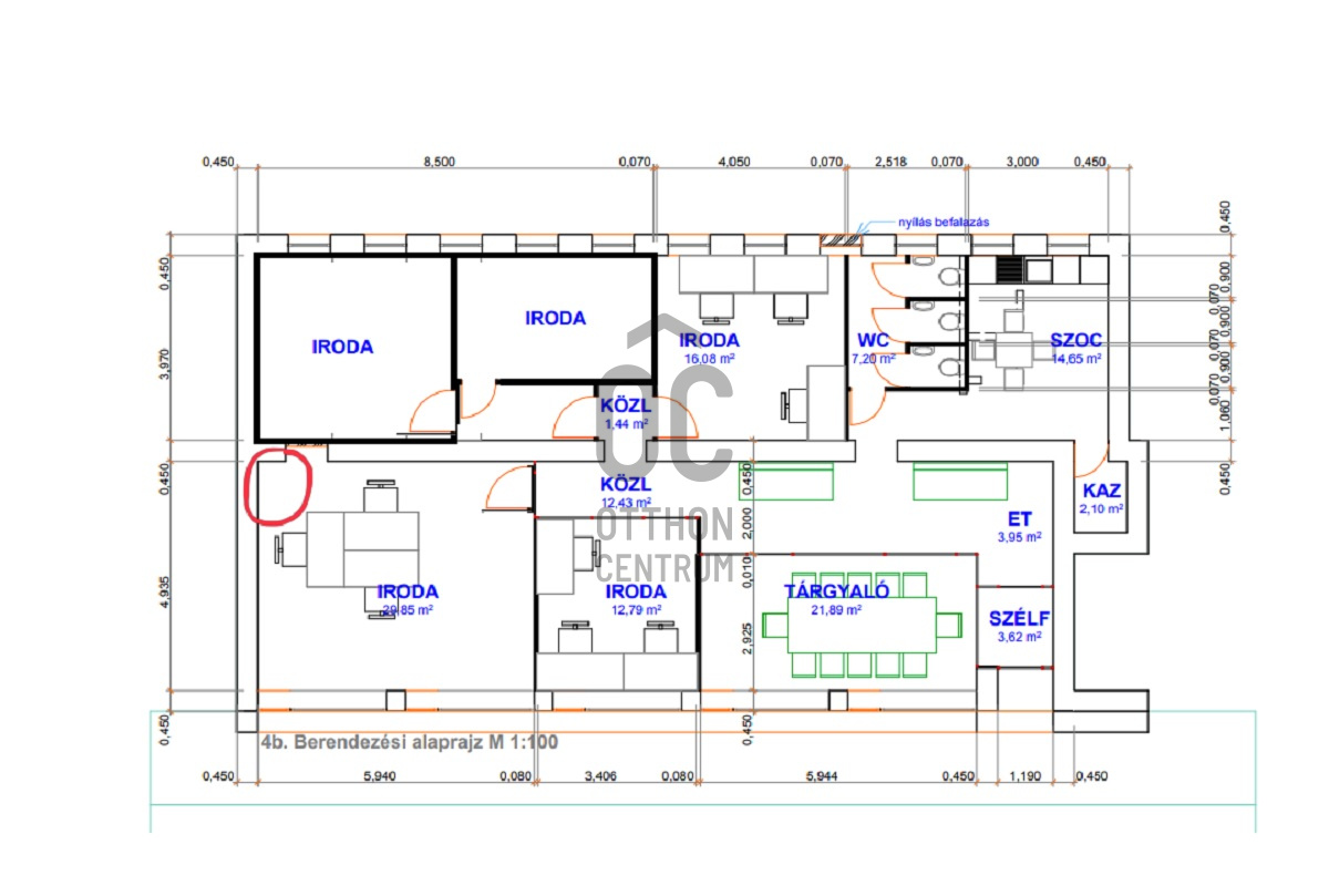
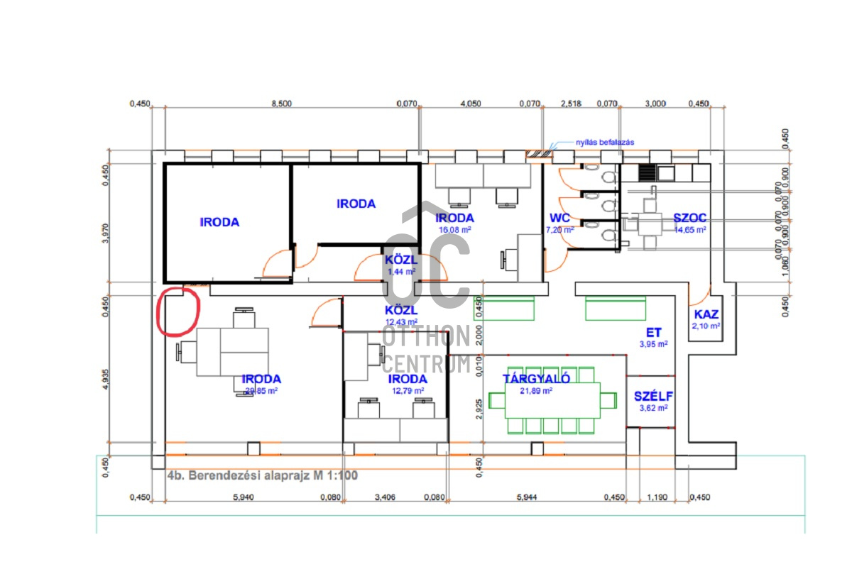
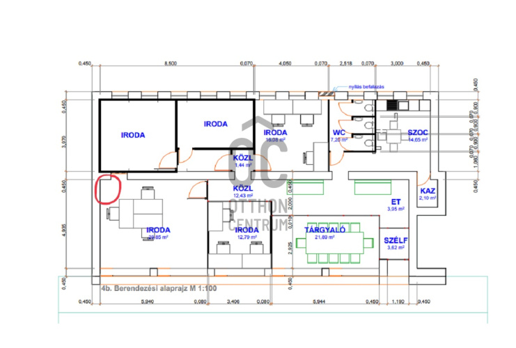
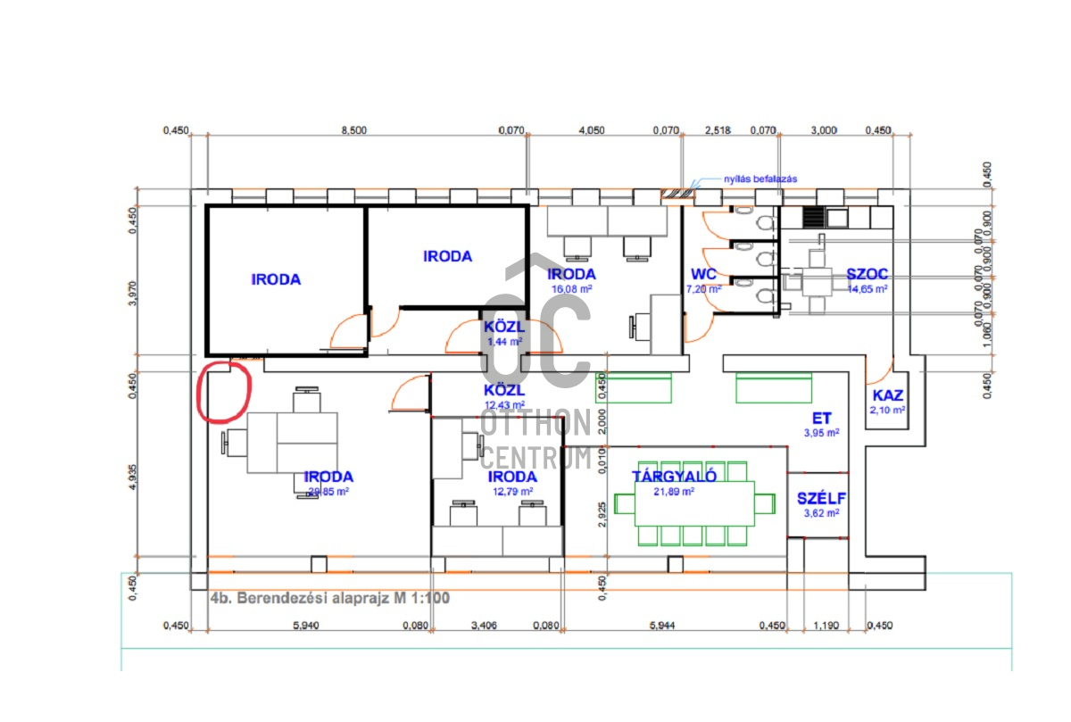
  • 166m²
  • földszint

Jó üzleti lehetőség!

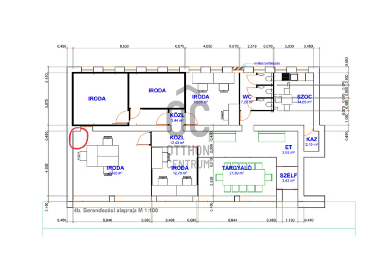
Sopronban, belvároshoz közeli, kiváló helyen lévő, 2013-ban felújított exkluzív irodaház eladó!
- 5 db külön bejáratú iroda
- minden helyiség riasztórendszere külön-külön aktiválható
- a helyiségek hőmérséklete egyedileg szabályozható
- helyiségek áramfogyasztása egyedileg mérhető
- 1db tárgyaló, konyha és vizesblokkok
- 3 rétegű alumínium nyílászárók, új szigetelés
- távfelügyeleti biztonsági rendszerrel ellátott
- központi kamerarendszer
- Daikin levegő-levegő hőszivattyús fűtés-hűtés rendszer
- fizető parkoló az épület előtt
- az irodához tartozik egy pince az alagsorban
Hitelre van szüksége?
Az Otthon Centrum az ország egyik legnagyobb és legmegbízhatóbb hitelközvetítőjeként, teljes körű és díjmentes hitelügyintézéssel, biztosításkötéssel áll rendelkezésére!
Kérje személyre szabott ajánlatunkat Kollégáinktól!

Regisztrációs szám

UZ010389

Az ingatlan adatai

Értékesités
eladó
Jogi státusz
használt
Jelleg
üzleti célú
Típus
épületrész
Építési mód
tégla
Méret
166 m²
Föld feletti nettó méret
166 m²
Fűtés
egyéb
Belmagasság
375 cm
Lakáson belüli szintszám
1
Állapot
Kiváló
Homlokzat állapota
Kiváló
Lépcsőház állapota
Kiváló
Építés éve
1975
Közös költség
12000
Víz
Van
Gáz
Van
Villany
Van
Csatorna
Van

 

Lehetséges funkciók
iroda és bemutatóterem, vagy üzlet
Láthatóság
Nagy gyalogosforgalmú utcában jól látható
Megközelíthetőseg
Nagy gyalogosforgalmú utcára nyíló bejárat
Hasznosítás
bérbe adott
Havi bérleti díj
550000
Preidl Barnabás
Preidl Barnabás

Hitelszakértő

Irodánk kínálatából - Sopron – Ógabona tér

for sale apartment

Index image
data_sheet.details.realestate.section.main.otthonstart_flag.label
18

for sale semi-detached house

Index image
data_sheet.details.realestate.section.main.otthonstart_flag.label
22

for sale apartment

Index image
data_sheet.details.realestate.section.main.otthonstart_flag.label
19

for sale apartment

Index image
24

for sale apartment

Index image
data_sheet.details.realestate.section.main.otthonstart_flag.label
17

for sale apartment

Index image
data_sheet.details.realestate.section.main.otthonstart_flag.label
10

for sale family house

Index image
data_sheet.details.realestate.section.main.otthonstart_flag.label
17

for sale family house

Index image
data_sheet.details.realestate.section.main.otthonstart_flag.label
29