Elérhető Otthon Start hitellel
Eladó újépítésű családi ház, U0049075
Kecskemét, Hetényegyháza

135 000 000 Ft

355 000 €

  • 144,1m²
  • 4 szoba
Kiemelt megbízás

MODERN, ENERGY-EFFICIENT NEWLY BUILT FAMILY HOUSE IN THE QUIET ENVIRONMENT OF HETÉNYEGYHÁZA

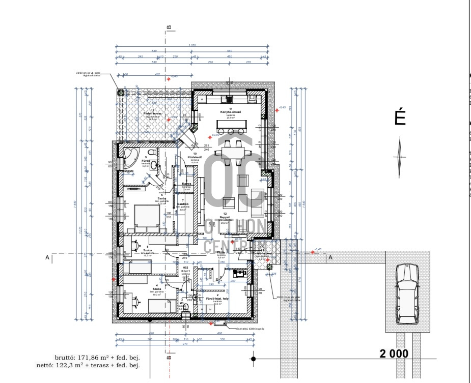
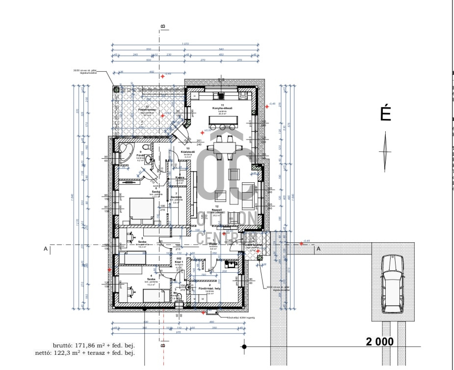
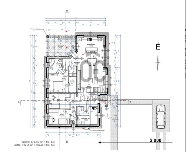
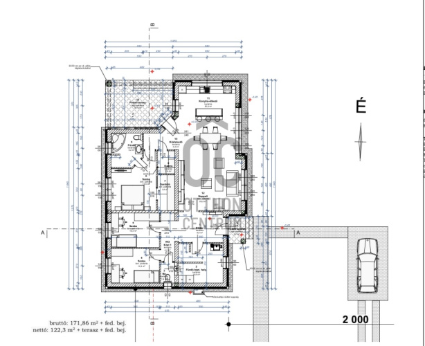
I offer for sale this exceptional opportunity in one of the calmest, forest-adjacent areas of Hetényegyháza, Kecskemét: a modern newly built family house that can be constructed on a 7454 m², nature-friendly plot with a net area of 144.1 m². The planned property, with a layout of a living room + 3 bedrooms + a study, is an ideal choice for families and remote workers who prefer the proximity of the city while enjoying a quiet environment with clean air. Key features: - 7454 m² plot in a wooded environment - Net living area of 144.1 m² - Living room + 3 bedrooms + wardrobe - 19 m² terrace - One-car covered parking space - Two bathrooms - Construction can start in 2025, with optional interior finishes Technical specifications: - 30 cm thick frame ceramic brick walls - 15 cm thick EPS thermal insulation - Triple-glazed windows with thermal insulation - Heat pump heating and hot water supply - Modern, energy-efficient mechanical solutions - Quality cold and warm floor coverings - Contemporary floor plan design, practical space organization - Water supply from a drilled well, equipped with a water purifier Environment: The uniqueness of the property lies in the large-sized plot, which provides exceptional privacy and tranquility. The wooded environment is ideal for those who want to escape the urban noise while remaining within accessible distance of Kecskemét's key points. Start of construction: Construction can begin in 2025, allowing the future owner the opportunity to choose certain interior designs, finishes, and colors. For more information, please feel free to contact me! Kecskemét, Hetényegyháza, new build, living room + 4 rooms, large plot, heat pump.

Regisztrációs szám

U0049075

Az ingatlan adatai

Értékesités
eladó
Jogi státusz
új
Jelleg
ház
Építési mód
tégla
Méret
144,1 m²
Bruttó méret
171,8 m²
Telek méret
7 454 m²
Terasz / erkély mérete
19,1 m²
Fűtés
hőszivattyú
Belmagasság
270 cm
Tájolás
Dél-nyugat
Állapot
Kiváló
Homlokzat állapota
Kiváló
Környék
csendes, jó közlekedés, zöld
Építés éve
2026
Fürdőszobák száma
2
Fedett beállók száma
1
Víz
Van
Villany
Van

Helyiségek

előszoba
8.9 m²
fürdőszoba
10.6 m²
wc
1.8 m²
szoba
10.3 m²
szoba
10.3 m²
szoba
13.5 m²
gardrób
3.8 m²
kamra
2.4 m²
fürdőszoba
6.2 m²
közlekedő
4.4 m²
konyha-étkező
25.9 m²
nappali
20.2 m²
terasz
19.1 m²
terasz
2.7 m²

Irodánk kínálatából - Kecskemét - Kisfaludy utca

eladó újépítésű családi ház

Index image
Elérhető Otthon Start hitellel
4

eladó újépítésű családi ház

Index image
Elérhető Otthon Start hitellel
3

for sale commercial property

Index image
27

for sale family house

Index image
data_sheet.details.realestate.section.main.otthonstart_flag.label
14