Eladó újépítésű családi ház, U0048981
Telki

180 000 000 Ft

468 000 €

  • 142m²
  • 4 szoba

Telki. Újépítésű.

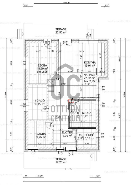
Eladó Telkiben új építésű, K. ÉK.-i fekvésű, családi ház, csendes mellékutcában. Alap, falak, födém és tető szigetelt. A Minimál stílusú épület nappali-étkező- konyha, előtér (bejárat), kettő fürdőszoba (káddal és zuhanyzóval), három hálószoba, kettő félszoba (padlástérben), közlekedő valamint előszoba. A nappaliból valamint a konyhából a kényelmes, kertkapcsolatos teraszra lehet kilépni. A kertben kettő – három autónak nyitott gépkocsibeálló került kialakításra, betonozott, térkövezett. Kívülről a már végleges arculatával kerül átadásra az ingatlan, új kerítéssel, automatizált kapuval. A kert terep-rendezetten, füvesítve, (benne már koros fák, találhatóak), továbbá kerti csap és kerti világítás is kialakításra került. Továbbá a kertben kicsi faházikó van, egyéb tárolási lehetőséget biztosít, benne víz és csatorna kiállásokkal. A mai korszerű igényeknek megfelelően kiváló műszaki és energetikai paraméterek. Cserépfedés. Falazat 30-as Porotherm tégla 20 cm szigeteléssel, a tetőn 25 cm. – 30 cm. szigetelés. 10 Kw-os energiatakarékos levegő- vizes Hőszivattyú fűtés, padlófűtéssel és fan-coil rendszerű hűtéssel. Fatüzelésű kandalló kialakítva. Napelemrendszer vezetékezése előkészítve (igény szerint kiépítés). Három rétegű szigetelő műanyag (bukó - nyíló) nyílászárók. Biztonsági bejárati ajtó. Kaputelefon. TV és Internethez szükséges vezetékezés.

Regisztrációs szám

U0048981

Az ingatlan adatai

Értékesités
eladó
Jogi státusz
új
Jelleg
ház
Építési mód
tégla
Méret
142 m²
Bruttó méret
206 m²
Telek méret
707 m²
Terasz / erkély mérete
40 m²
Fűtés
hőszivattyú
Belmagasság
270 cm
Lakáson belüli szintszám
2
Tájolás
Észak-kelet
Állapot
Kiváló
Homlokzat állapota
Kiváló
Környék
csendes, jó közlekedés, zöld
Építés éve
2025
Fürdőszobák száma
2
Társaház kert
igen
Víz
Van
Villany
Van
Csatorna
Van
Tároló
Önálló

Helyiségek

nappali-konyha
47 m²
szoba
18.5 m²
szoba
13 m²
szoba
12 m²
fürdőszoba-wc
13 m²
fürdőszoba-wc
9 m²
közlekedő
13 m²
szoba
13 m²
szoba
10.5 m²
Bitó István
Bitó István

Hitelszakértő

Irodánk kínálatából - Budaörs - Templom tér

for sale new construction family house

Index image
11

eladó családi ház

Index image
27

for sale row house

Index image
data_sheet.details.realestate.section.main.otthonstart_flag.label
33

for sale new construction semi-detached house

Index image
data_sheet.details.realestate.section.main.otthonstart_flag.label
23

for sale family house

Index image
59

for sale family house

Index image
data_sheet.details.realestate.section.main.otthonstart_flag.label
16

eladó sorház

Index image
32