Elérhető Otthon Start hitellel
Eladó újépítésű családi ház,
U0048789
Hajdúsámson
70 000 000 Ft
185 000 €
- 70,7m²
- 3 szoba
Álmodja meg most, költözzön jövőre - új építésű ingatlanok kiváló minőségben, verhetetlen áron!
Új építésű családi- és ikerházak épülnek Hajdúsámsonban, legyen az Öné az egyik!
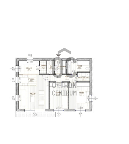
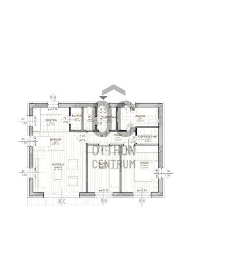
A meghirdetett önálló családi ház paraméterei:
Lakótér:
- nettó 71 nm, hasznos alapterület
- hatalmas amerikai-konyhás nappali
- 2 külön nyíló hálószoba
- fürdőszoba + külön WC
- terasz (igény esetén fedett)
- igény szerint alakítható a helyiségkiosztás
Műszaki jellemzők:
- masszív beton alap
- hagyományos, ácsolt tetőszerkezet, betoncserép fedéssel
- 30-as N+F tégla falazat
- 10 cm Austrotherm AT-N100 aljzatszigetelés
- 15 cm Austrotherm AT-H80 hőszigetelés a homlokzati falakon
- 25 cm Therwoolin hőszigetelés a födémen
- hőhídmentes 6 légkamrás profilrendszerű, horganyzott idomacél merevítéssel és 3 rétegű üvegezéssel ellátott műanyag nyílászárók
- padlófűtés hőszivattyúval az egész lakásban
- választható belső nyílászárók, burkolatok, szaniterek, csaptelepek, stb.
- a belső elrendezés, helyiségkiosztás szabadon variálható
Telek és környezet:
- teljes telek mérete: 807 m²
- új építésű ingatlanok lesznek a környezetében
- a főút 550 méterre található, így a munkába járás rugalmas, a forgalom zajától viszont teljes mértékben mentesül
- S-BOX 7 percre (LIDL, Rossmann, Tedi, KIK, EcoFamily, konditerem, stb)
- kisbolt pár percre, ha kimarad valami a nagy bevásárlásból
Amennyiben felkeltette az érdeklődését ez a lehetőség hívjon és megbeszélünk mindent.
Az elérhető telek méretek 680 nm - 1285 nm között, így ha nem szeretne nagy udvart, avagy pont hogy térre van szüksége, mindenki megtalálja a maga számára megfelelőt.
A felépítmény a 30%-os beépítési szabály szerint lehet bármekkora egészen nettó cc. 300 nm-ig, egyedi igények, műszaki tartalom szerint.
A meghirdetett önálló családi ház paraméterei:
Lakótér:
- nettó 71 nm, hasznos alapterület
- hatalmas amerikai-konyhás nappali
- 2 külön nyíló hálószoba
- fürdőszoba + külön WC
- terasz (igény esetén fedett)
- igény szerint alakítható a helyiségkiosztás
Műszaki jellemzők:
- masszív beton alap
- hagyományos, ácsolt tetőszerkezet, betoncserép fedéssel
- 30-as N+F tégla falazat
- 10 cm Austrotherm AT-N100 aljzatszigetelés
- 15 cm Austrotherm AT-H80 hőszigetelés a homlokzati falakon
- 25 cm Therwoolin hőszigetelés a födémen
- hőhídmentes 6 légkamrás profilrendszerű, horganyzott idomacél merevítéssel és 3 rétegű üvegezéssel ellátott műanyag nyílászárók
- padlófűtés hőszivattyúval az egész lakásban
- választható belső nyílászárók, burkolatok, szaniterek, csaptelepek, stb.
- a belső elrendezés, helyiségkiosztás szabadon variálható
Telek és környezet:
- teljes telek mérete: 807 m²
- új építésű ingatlanok lesznek a környezetében
- a főút 550 méterre található, így a munkába járás rugalmas, a forgalom zajától viszont teljes mértékben mentesül
- S-BOX 7 percre (LIDL, Rossmann, Tedi, KIK, EcoFamily, konditerem, stb)
- kisbolt pár percre, ha kimarad valami a nagy bevásárlásból
Amennyiben felkeltette az érdeklődését ez a lehetőség hívjon és megbeszélünk mindent.
Az elérhető telek méretek 680 nm - 1285 nm között, így ha nem szeretne nagy udvart, avagy pont hogy térre van szüksége, mindenki megtalálja a maga számára megfelelőt.
A felépítmény a 30%-os beépítési szabály szerint lehet bármekkora egészen nettó cc. 300 nm-ig, egyedi igények, műszaki tartalom szerint.
Regisztrációs szám
U0048789
Az ingatlan adatai
Értékesités
eladó
Jogi státusz
új
Jelleg
ház
Építési mód
tégla
Méret
70,7 m²
Bruttó méret
70,7 m²
Telek méret
807 m²
Fűtés
hőszivattyú
Belmagasság
275 cm
Tájolás
Dél
Állapot
Kiváló
Homlokzat állapota
Kiváló
Építés éve
2026
Fürdőszobák száma
1
Víz
Van
Gáz
Utcán
Villany
Van
Csatorna
Van
Helyiségek
nappali-konyha
28.83 m²
szoba
12.09 m²
szoba
10.53 m²
fürdőszoba
5.89 m²
wc-kézmosó
1.89 m²
előszoba
3.14 m²
közlekedő
4.2 m²
kamra
1.79 m²
háztartási helyiség
2.43 m²
Czellér András
Hitelszakértő