Elérhető Otthon Start hitellel
Eladó újépítésű ikerház,
U0048693
Balatonszabadi
94 900 000 Ft
245 000 €
- 98,3m²
- 4 szoba





Balaton közeli újépítésű otthon – Modern ikerház saját kerttel és zöld panorámával Balatonszabadiban.
Ha egy olyan ingatlanra vágyik, amely ötvözi a modern építészetet, a korszerű technológiát és a természet közelségét, akkor most megtalálta.
Balatonszabadi csendes, nyugodt részén kínáljuk megvételre ezt a 2025-ben épülő, földszintes ikerházat, amely ideális választás családoknak, pároknak vagy akár befektetési céllal vásárlóknak is.
Kialakítás és belső terek
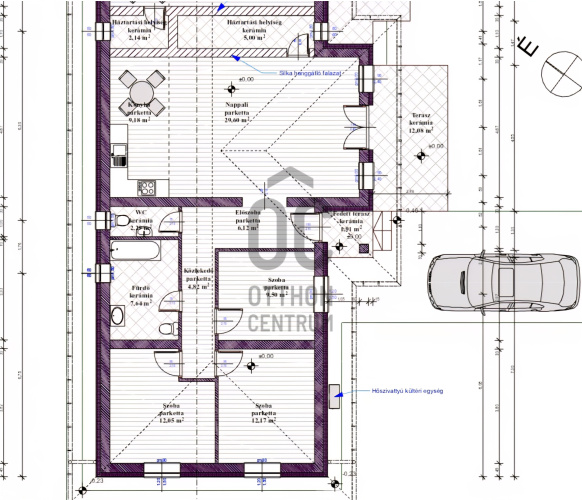
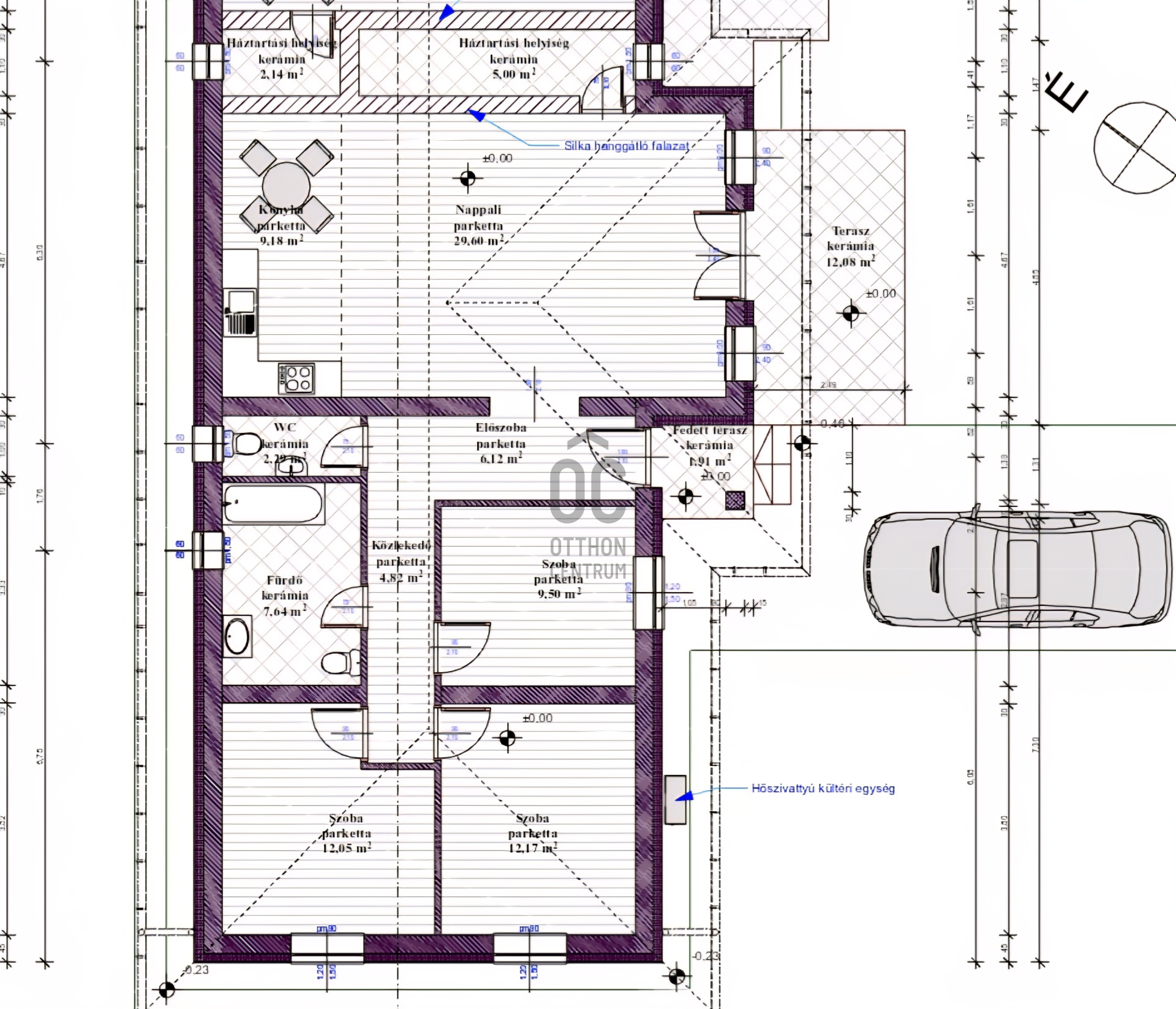
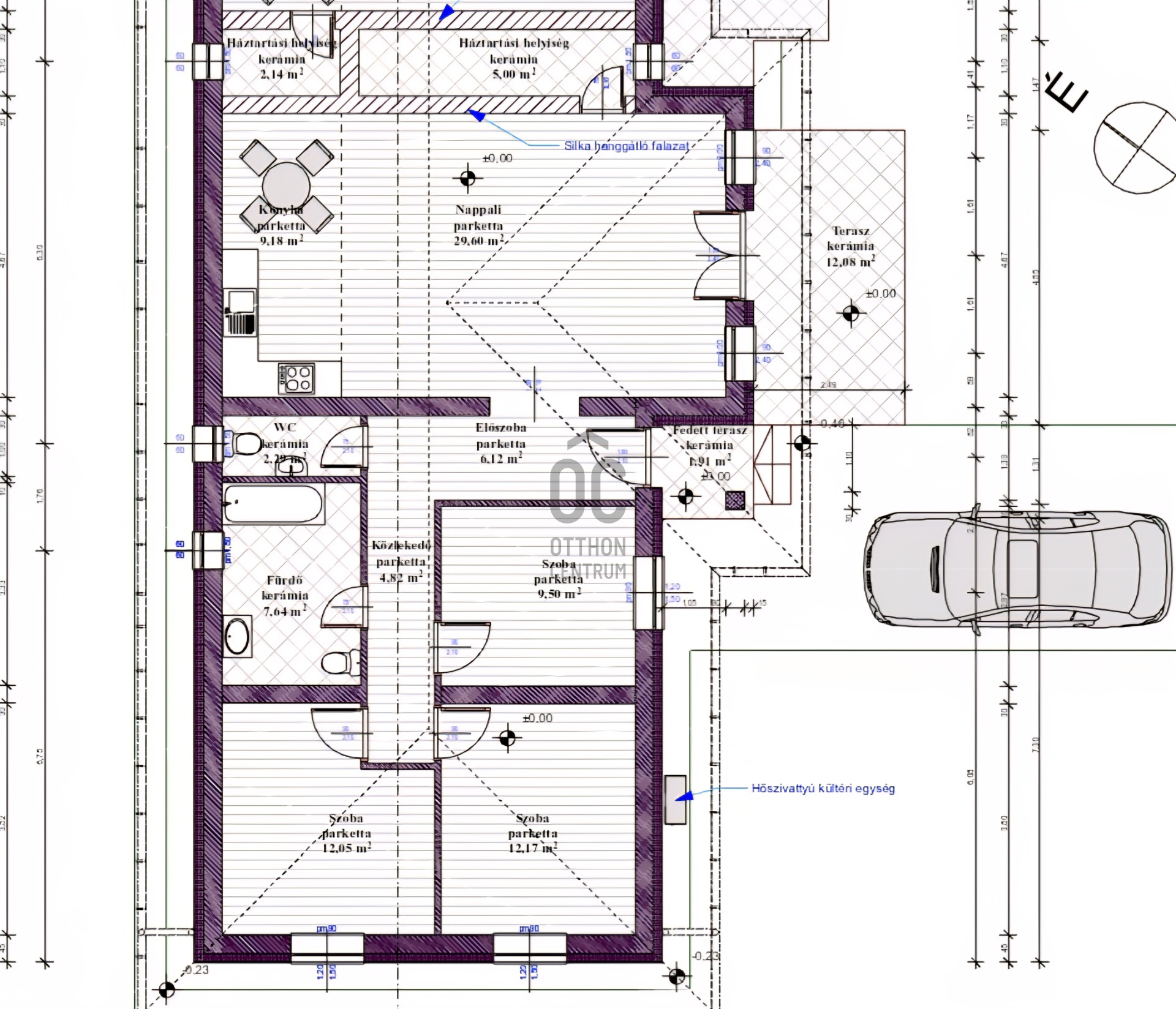
A nettó 98,38 m²-es lakótér minden szeglete a kényelmet szolgálja. Az ingatlanban:
Világos, nagy nappali-konyha-étkező kapott helyet, amely közvetlen kijárattal kapcsolódik a 14 m²-es fedett teraszhoz – tökéletes tér családi és baráti összejövetelekhez.
Három külön nyíló hálószoba biztosítja a privát szférát minden családtag számára.
Egy tágas fürdőszoba WC-vel, különálló vendég-WC kézmosóval, valamint egy praktikus háztartási helyiség teszi igazán élhetővé a mindennapokat.
Az átgondolt alaprajznak köszönhetően minden helyiség kényelmesen használható, jól berendezhető, és természetes fényben úszik.
Külső adottságok és környezet
Az ingatlanhoz tartozik egy 353 m²-es saját kert, amely ideális játszótér a gyerekeknek, helyet adhat egy hangulatos kerti sütögetőnek, medencének, vagy akár saját kis konyhakertnek is. A déli tájolás garantálja a napfényt, a teraszról pedig a zöldre néző panoráma nyújt nyugodt, pihentető látványt.
Műszaki tartalom és előnyök
Bruttó alapterület: 112,37 m²
4 külön nyíló szoba
Építés éve: 2025
Energiatakarékos hőszivattyús fűtés (levegő-víz rendszer) – alacsony rezsiköltség, fenntartható működés
Ytong falazat – kiváló hőszigetelő és időtálló szerkezet
Délnyugati tájolás – világos, napfényes otthon egész nap
Földszintes kialakítás – kényelmes, akadálymentes közlekedés
Miért különleges ez az ingatlan?
Mert a Balaton közelsége (pár perc autóval) ötvöződik a csendes, természetközeli környezettel.
Mert a modern építési technológia és a korszerű fűtési rendszer hosszú távon is értékállóvá és gazdaságossá teszi.
Mert egy szintre tervezve, nagy terasszal és saját kerttel igazi családi otthonná válhat.
Befektetők figyelem...
A Balaton közelsége és a település nyugodt hangulata miatt ez az ingatlan kiválóan alkalmas nyaralóként vagy kiadásra is.
A környék turisztikai vonzereje és az új építés biztosítja a folyamatos keresletet – így nemcsak otthonként, hanem jövedelmező befektetésként is tökéletes választás.
Finanszírozási lehetőség
Most különösen jó időszak a vásárlásra: az ingatlan 3%-os hitellel is megvásárolható, ami rendkívül kedvező konstrukció, és hosszú távon óriási előnyt jelent a finanszírozásban.
Ez az ingatlan több mint egy ház – egy olyan élettér, ahol a kényelmes mindennapok és a természet harmóniája találkozik.
Ne hagyja ki ezt a lehetőséget...
Foglalja le új otthonát időben, és legyen Ön az , aki birtokba veheti ezt a modern, energiatakarékos, balatoni közeli ikerházat.
Ha egy olyan ingatlanra vágyik, amely ötvözi a modern építészetet, a korszerű technológiát és a természet közelségét, akkor most megtalálta.
Balatonszabadi csendes, nyugodt részén kínáljuk megvételre ezt a 2025-ben épülő, földszintes ikerházat, amely ideális választás családoknak, pároknak vagy akár befektetési céllal vásárlóknak is.
Kialakítás és belső terek
A nettó 98,38 m²-es lakótér minden szeglete a kényelmet szolgálja. Az ingatlanban:
Világos, nagy nappali-konyha-étkező kapott helyet, amely közvetlen kijárattal kapcsolódik a 14 m²-es fedett teraszhoz – tökéletes tér családi és baráti összejövetelekhez.
Három külön nyíló hálószoba biztosítja a privát szférát minden családtag számára.
Egy tágas fürdőszoba WC-vel, különálló vendég-WC kézmosóval, valamint egy praktikus háztartási helyiség teszi igazán élhetővé a mindennapokat.
Az átgondolt alaprajznak köszönhetően minden helyiség kényelmesen használható, jól berendezhető, és természetes fényben úszik.
Külső adottságok és környezet
Az ingatlanhoz tartozik egy 353 m²-es saját kert, amely ideális játszótér a gyerekeknek, helyet adhat egy hangulatos kerti sütögetőnek, medencének, vagy akár saját kis konyhakertnek is. A déli tájolás garantálja a napfényt, a teraszról pedig a zöldre néző panoráma nyújt nyugodt, pihentető látványt.
Műszaki tartalom és előnyök
Bruttó alapterület: 112,37 m²
4 külön nyíló szoba
Építés éve: 2025
Energiatakarékos hőszivattyús fűtés (levegő-víz rendszer) – alacsony rezsiköltség, fenntartható működés
Ytong falazat – kiváló hőszigetelő és időtálló szerkezet
Délnyugati tájolás – világos, napfényes otthon egész nap
Földszintes kialakítás – kényelmes, akadálymentes közlekedés
Miért különleges ez az ingatlan?
Mert a Balaton közelsége (pár perc autóval) ötvöződik a csendes, természetközeli környezettel.
Mert a modern építési technológia és a korszerű fűtési rendszer hosszú távon is értékállóvá és gazdaságossá teszi.
Mert egy szintre tervezve, nagy terasszal és saját kerttel igazi családi otthonná válhat.
Befektetők figyelem...
A Balaton közelsége és a település nyugodt hangulata miatt ez az ingatlan kiválóan alkalmas nyaralóként vagy kiadásra is.
A környék turisztikai vonzereje és az új építés biztosítja a folyamatos keresletet – így nemcsak otthonként, hanem jövedelmező befektetésként is tökéletes választás.
Finanszírozási lehetőség
Most különösen jó időszak a vásárlásra: az ingatlan 3%-os hitellel is megvásárolható, ami rendkívül kedvező konstrukció, és hosszú távon óriási előnyt jelent a finanszírozásban.
Ez az ingatlan több mint egy ház – egy olyan élettér, ahol a kényelmes mindennapok és a természet harmóniája találkozik.
Ne hagyja ki ezt a lehetőséget...
Foglalja le új otthonát időben, és legyen Ön az , aki birtokba veheti ezt a modern, energiatakarékos, balatoni közeli ikerházat.
Regisztrációs szám
U0048693
Az ingatlan adatai
Értékesités
eladó
Jogi státusz
új
Jelleg
ház
Építési mód
ytong
Méret
98,3 m²
Bruttó méret
112,3 m²
Telek méret
706 m²
Terasz / erkély mérete
14 m²
Kert méret
353 m²
Fűtés
values.realestate.futes.27
Belmagasság
275 cm
Tájolás
Dél
Panoráma
Zöldre néző panoráma
Állapot
Kiváló
Homlokzat állapota
Kiváló
Környék
csendes, jó közlekedés, zöld, központi
Építés éve
2025
Fürdőszobák száma
1
Társaház kert
igen
Víz
Van
Gáz
Utcán
Villany
Van
Csatorna
Van
Tároló
Önálló
Helyiségek
nappali-konyha
38.79 m²
fürdőszoba-wc
7.64 m²
wc-kézmosó
2.29 m²
háztartási helyiség
5 m²
közlekedő
4.82 m²
hálószoba
9.5 m²
hálószoba
12.17 m²
hálószoba
12.05 m²
terasz
14 m²

Dienes László
Hitelszakértő