Elérhető Otthon Start hitellel
Eladó újépítésű lakás,
U0048691
Szigethalom
81 990 000 Ft
210 000 €
- 109,9m²
- 4 szoba
- földszint








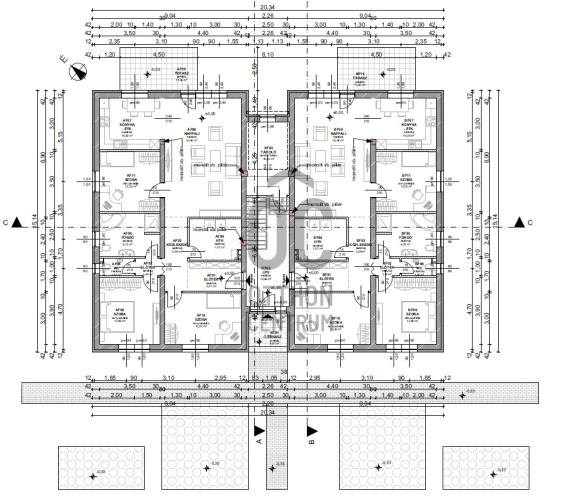
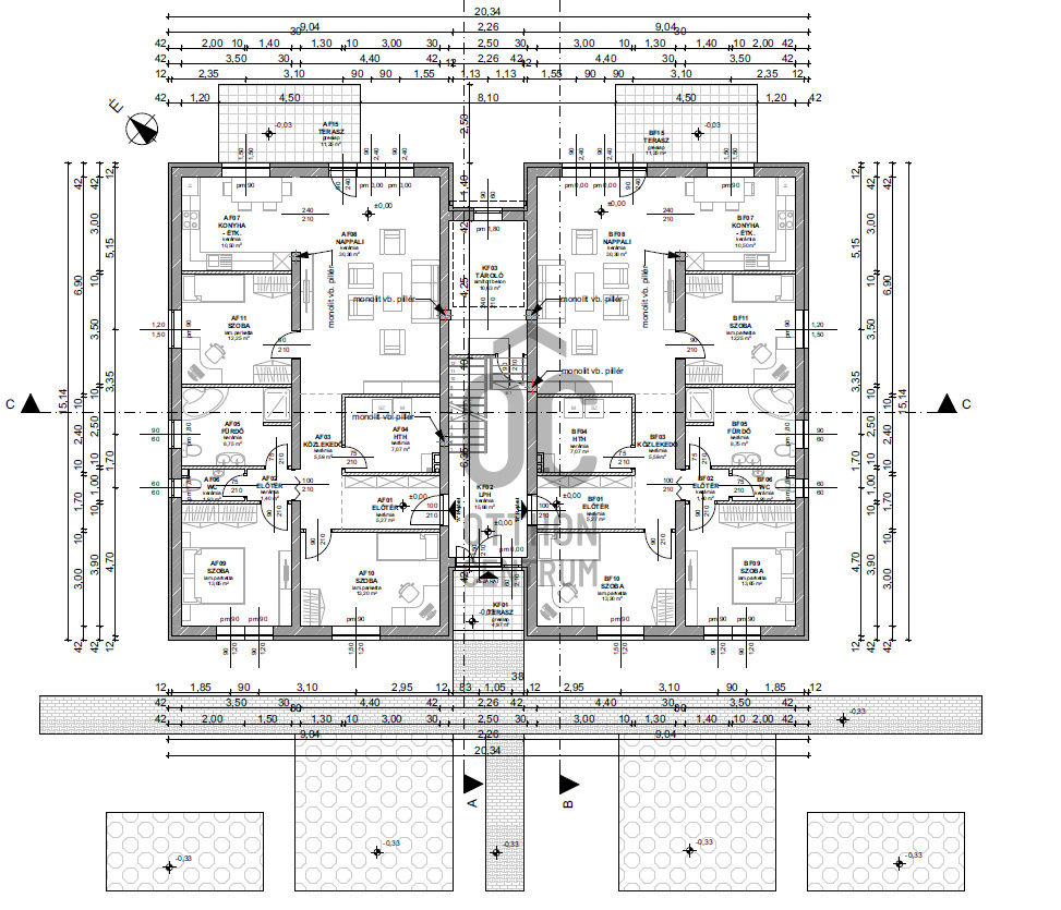
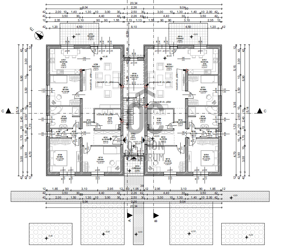
Új építésű, 110 m²-es földszinti lakás 210 m² saját kerttel és parkolóhellyel Szigethalmon
Eladásra kínálunk egy most épülő, 109,97 m²-es földszinti lakást, amelyhez 11 m²-es terasz, 300 m² saját kert és saját parkolóhely is tartozik. Az ingatlan modern kivitelezésben készül, várható átadása 2026. május.
A tágas belső terek, a kertkapcsolat és a terasz révén az ingatlan ideális választás lehet családoknak, akik szeretnének új építésű, energiatakarékos otthonba költözni, ahol a privát kert nyújtja a kikapcsolódás lehetőségét.
Főbb jellemzők:
-Nettó alapterület: 109,97 m² + 11 m² terasz
-210 m² saját kert kizárólagos használattal
-Saját parkolóhely az ingatlanhoz
-12 cm grafitos homlokzati szigetelés
-6 kamrás, 3 rétegű, melegperemes nyílászárók
-Elektromos redőnyök minden ablakon
-Padlófűtés hőszivattyúval, Fan-coil vagy légkondicionáló (4 db/lakás)
-Burkolat 10.000 Ft/m²-ig választható
-12 cm lépésálló szigetelés a padlóban
-Monolit födém, színezett ereszcsatornák
Elhelyezkedés:
Az ingatlan Szigethalom kedvelt, központi részén található, mégis nyugodt helyen. A közelben HÉV, buszmegálló, boltok, iskola, óvoda is elérhető, így minden adott a kényelmes mindennapokhoz.
Ez a modern otthon nemcsak a korszerű kivitelezés és energiatakarékos megoldások miatt vonzó, hanem a nagy saját kert és a parkolóhely miatt is, amelyek ritkaságnak számítanak új építésű ingatlanoknál.
Ha szeretné elsőként lefoglalni ezt a földszinti lakást, keressen bizalommal további információért és egyeztetésért!
Eladásra kínálunk egy most épülő, 109,97 m²-es földszinti lakást, amelyhez 11 m²-es terasz, 300 m² saját kert és saját parkolóhely is tartozik. Az ingatlan modern kivitelezésben készül, várható átadása 2026. május.
A tágas belső terek, a kertkapcsolat és a terasz révén az ingatlan ideális választás lehet családoknak, akik szeretnének új építésű, energiatakarékos otthonba költözni, ahol a privát kert nyújtja a kikapcsolódás lehetőségét.
Főbb jellemzők:
-Nettó alapterület: 109,97 m² + 11 m² terasz
-210 m² saját kert kizárólagos használattal
-Saját parkolóhely az ingatlanhoz
-12 cm grafitos homlokzati szigetelés
-6 kamrás, 3 rétegű, melegperemes nyílászárók
-Elektromos redőnyök minden ablakon
-Padlófűtés hőszivattyúval, Fan-coil vagy légkondicionáló (4 db/lakás)
-Burkolat 10.000 Ft/m²-ig választható
-12 cm lépésálló szigetelés a padlóban
-Monolit födém, színezett ereszcsatornák
Elhelyezkedés:
Az ingatlan Szigethalom kedvelt, központi részén található, mégis nyugodt helyen. A közelben HÉV, buszmegálló, boltok, iskola, óvoda is elérhető, így minden adott a kényelmes mindennapokhoz.
Ez a modern otthon nemcsak a korszerű kivitelezés és energiatakarékos megoldások miatt vonzó, hanem a nagy saját kert és a parkolóhely miatt is, amelyek ritkaságnak számítanak új építésű ingatlanoknál.
Ha szeretné elsőként lefoglalni ezt a földszinti lakást, keressen bizalommal további információért és egyeztetésért!
Regisztrációs szám
U0048691
Az ingatlan adatai
Értékesités
eladó
Jogi státusz
új
Jelleg
lakás
Építési mód
tégla
Méret
109,9 m²
Bruttó méret
136,8 m²
Terasz / erkély mérete
11,2 m²
Kert méret
208 m²
Fűtés
hőszivattyú
Belmagasság
275 cm
Tájolás
Észak-kelet
Lépcsőház típusa
zárt lépcsőház
Állapot
Kiváló
Homlokzat állapota
Kiváló
Lépcsőház állapota
Kiváló
Környék
jó közlekedés, központi
Építés éve
2025
Fürdőszobák száma
1
Fekvés
udvari
Társaház kert
igen
Víz
Van
Villany
Van
Csatorna
Van
Tároló
Közös
Helyiségek
előszoba
5.27 m²
közlekedő
6.99 m²
háztartási helyiség
7.07 m²
fürdőszoba
8.75 m²
wc
1.93 m²
konyha-étkező
10.5 m²
nappali
30.36 m²
szoba
13.65 m²
szoba
13.2 m²
szoba
12.25 m²

Joó Krisztina
Hitelszakértő