Elérhető Otthon Start hitellel
Eladó újépítésű családi ház,
U0048579
Balatongyörök
119 900 000 Ft
314 000 €
- 179m²
- 5 szoba
Fedezze fel álmai otthonát Balatongyörökön: új, 5 szobás ház várja Önt!
Balatongyörök szívében, Zala vármegyében kínálok eladásra egy exkluzív, új építésű házat, amely ideális választás családosok számára.
AZ OTTHON CENTRUM KIEMELT KÍNÁLATÁBAN!
Az ingatlan főbb jellemzői:
- Az ingatlan 179 négyzetméteres alapterülettel rendelkezik, és egy 868 négyzetméteres telken helyezkedik el, így bőséges teret biztosít a mindennapi élethez és a kikapcsolódáshoz. A ház öt tágas szobával és két modern fürdőszobával várja új lakóit, akik értékelni fogják a prémium kivitelezést és a világos, barátságos tereket. A nappali a lakás középpontja, ahol a családi összejövetelek és baráti találkozók felejthetetlen pillanatai születhetnek. A modern dizájn és a nagy ablakok révén természetes fény árad a térbe, így mindig kellemes hangulatot teremtve.
- Az ingatlan fűtése elektromos hőszivattyú rendszerrel megoldott (Daikin), padlófűtés, és mennyezet fűtés, a hűtést pedig mennyezethűtéssel biztosítja a nyári kényelem érzetét. A rendszer H tarifával rendelkezik.
- A ház téglából épült, és 15cm-es grafitos szigetelést kapott.
- Nyílászárói műanyag szerkezetűek 3 rétegű üvegezéssel, és redőnnyel ellátottak.
- A ház beton födémmel rendelkezik ,mely 30cm szigetelést kapott.
- A tetőtér igény esetén beépíthető, egy külső lépcsőház kialakításával, mely körülbelül 60nm.
- A nappaliban kèmény kiállás található, így lehetőség van egy hangulatos kandalló elhelyezèsère.
- Az utcában jelenleg nincs kiépítve a víz és a csatorna, ezért a kivitelezés során kutat fúrtak, melyből egy szivattyú segítségével vizet nyernek, ehhez szükséges még egy víztisztító rendszer beépítése, és a ház vízellátása megoldott. A szennyvíz elvezetés jelenleg egy deritőbe történik.
Amint az utcában lesz víz és csatorna, akkor rá lehet kötni a rendszerre.
- A kertben egy 7m3-es esővíz gyűjtő lett elhelyezve az épület mögött.
- A három garázs férőhely pedig praktikus megoldást nyújt a család autóinak tárolására.
- A környék csendes és biztonságos, ideális helyszínt biztosít a gyermekek számára a szabadban való játékra és felfedezésre.
Balatongyörök nemcsak a természet szépségeivel, hanem a közeli Balaton nyújtotta lehetőségekkel is büszkélkedhet. A település jól megközelíthető autóval, és a tömegközlekedési lehetőségek is biztosítják a könnyű elérhetőséget a környező városok felé. A közeli bevásárlóközpontok, iskolák és óvodák pedig minden családi igényt kielégítenek.
Ez az ingatlan nem csupán egy új otthon, hanem egy életstílus szimbóluma is, amely lehetőséget ad a modern, kényelmes életvitelre, miközben a természet közelségét élvezheti.
Balatongyörök szívében, Zala vármegyében kínálok eladásra egy exkluzív, új építésű házat, amely ideális választás családosok számára.
AZ OTTHON CENTRUM KIEMELT KÍNÁLATÁBAN!
Az ingatlan főbb jellemzői:
- Az ingatlan 179 négyzetméteres alapterülettel rendelkezik, és egy 868 négyzetméteres telken helyezkedik el, így bőséges teret biztosít a mindennapi élethez és a kikapcsolódáshoz. A ház öt tágas szobával és két modern fürdőszobával várja új lakóit, akik értékelni fogják a prémium kivitelezést és a világos, barátságos tereket. A nappali a lakás középpontja, ahol a családi összejövetelek és baráti találkozók felejthetetlen pillanatai születhetnek. A modern dizájn és a nagy ablakok révén természetes fény árad a térbe, így mindig kellemes hangulatot teremtve.
- Az ingatlan fűtése elektromos hőszivattyú rendszerrel megoldott (Daikin), padlófűtés, és mennyezet fűtés, a hűtést pedig mennyezethűtéssel biztosítja a nyári kényelem érzetét. A rendszer H tarifával rendelkezik.
- A ház téglából épült, és 15cm-es grafitos szigetelést kapott.
- Nyílászárói műanyag szerkezetűek 3 rétegű üvegezéssel, és redőnnyel ellátottak.
- A ház beton födémmel rendelkezik ,mely 30cm szigetelést kapott.
- A tetőtér igény esetén beépíthető, egy külső lépcsőház kialakításával, mely körülbelül 60nm.
- A nappaliban kèmény kiállás található, így lehetőség van egy hangulatos kandalló elhelyezèsère.
- Az utcában jelenleg nincs kiépítve a víz és a csatorna, ezért a kivitelezés során kutat fúrtak, melyből egy szivattyú segítségével vizet nyernek, ehhez szükséges még egy víztisztító rendszer beépítése, és a ház vízellátása megoldott. A szennyvíz elvezetés jelenleg egy deritőbe történik.
Amint az utcában lesz víz és csatorna, akkor rá lehet kötni a rendszerre.
- A kertben egy 7m3-es esővíz gyűjtő lett elhelyezve az épület mögött.
- A három garázs férőhely pedig praktikus megoldást nyújt a család autóinak tárolására.
- A környék csendes és biztonságos, ideális helyszínt biztosít a gyermekek számára a szabadban való játékra és felfedezésre.
Balatongyörök nemcsak a természet szépségeivel, hanem a közeli Balaton nyújtotta lehetőségekkel is büszkélkedhet. A település jól megközelíthető autóval, és a tömegközlekedési lehetőségek is biztosítják a könnyű elérhetőséget a környező városok felé. A közeli bevásárlóközpontok, iskolák és óvodák pedig minden családi igényt kielégítenek.
Ez az ingatlan nem csupán egy új otthon, hanem egy életstílus szimbóluma is, amely lehetőséget ad a modern, kényelmes életvitelre, miközben a természet közelségét élvezheti.
Regisztrációs szám
U0048579
Az ingatlan adatai
Értékesités
eladó
Jogi státusz
új
Jelleg
ház
Építési mód
tégla
Méret
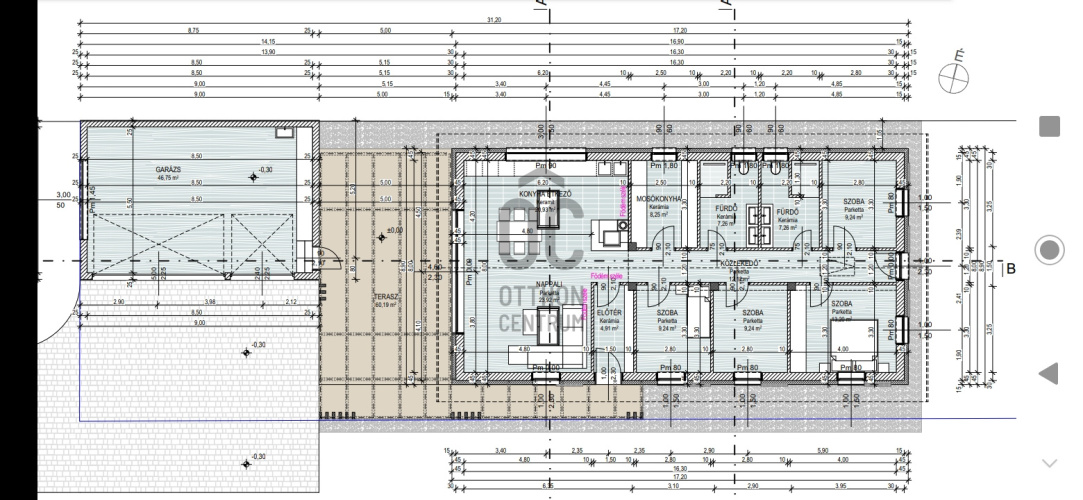
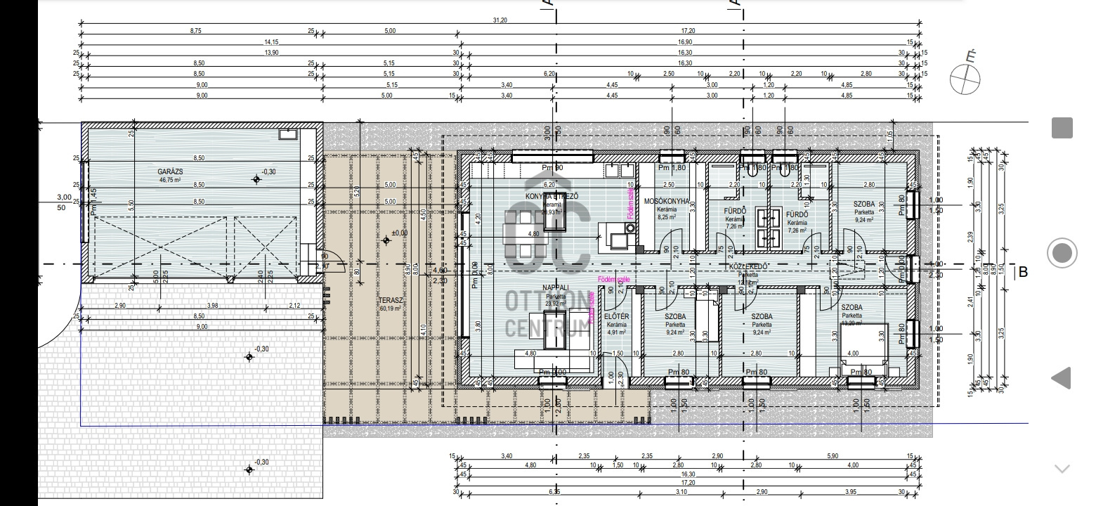
179 m²
Bruttó méret
200 m²
Telek méret
868 m²
Fűtés
elektromos cirkó
Belmagasság
270 cm
Tájolás
Dél-nyugat
Állapot
Kiváló
Homlokzat állapota
Kiváló
Építés éve
2021
Fürdőszobák száma
2
Garázs
Benne van az árban
Garázs férőhely
3
Villany
Van
Helyiségek
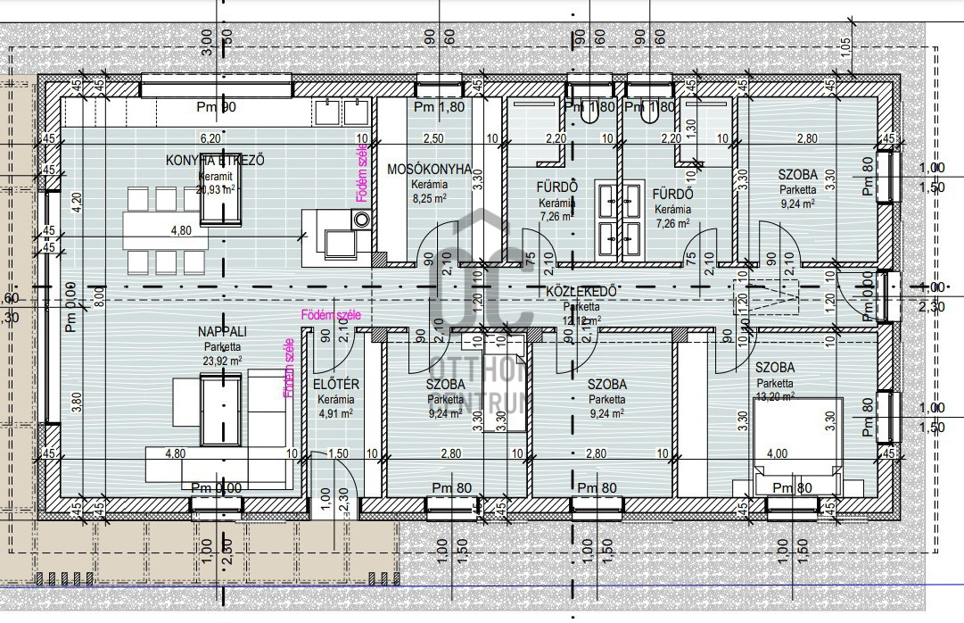
előszoba
4.91 m²
nappali-konyha
44.85 m²
háztartási helyiség
8.25 m²
fürdőszoba-wc
7.26 m²
fürdőszoba-wc
7.26 m²
hálószoba
9.24 m²
hálószoba
9.24 m²
hálószoba
9.24 m²
hálószoba
13.2 m²
közlekedő
12.12 m²
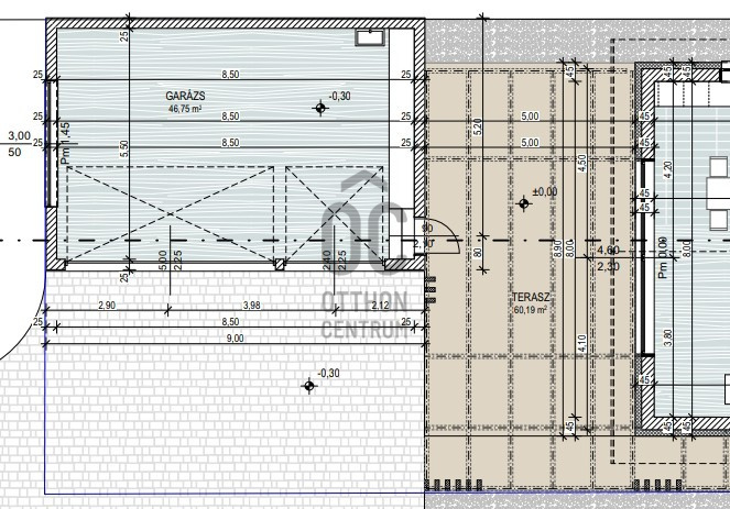
terasz
60.19 m²
garázs
46.75 m²