Elérhető Otthon Start hitellel
Eladó újépítésű családi ház,
U0048562
Budapest XVIII. kerület, Belsőmajor
144 900 000 Ft
370 000 €
- 145m²
- 4 szoba
















Földszintes, nappali + 3 hálószobás új építésű családi ház, 600 m2 telekrésszel, csendes zsákutcában.
Még minden módosítható, a Vevő saját igényére alakítható!
Egy igazán különleges lehetőség vár rád Budapest 18. kerületében!
Ha családos vagy, és egy új, modern otthonra vágysz, akkor ez az új építésű családiház garantáltan elnyeri tetszésedet.
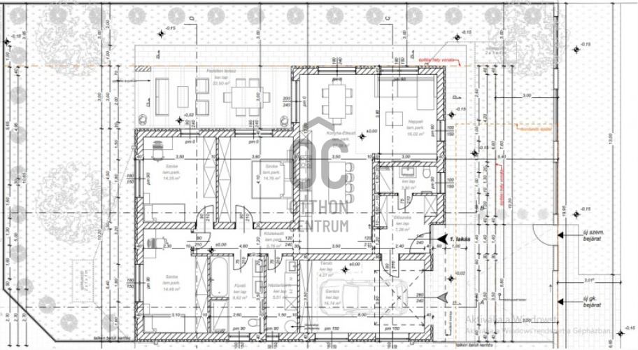
Az ingatlan egy szintes, akadálymentesített, 145 négyzetméteren terül el, nappali + 3 hálószobás, 2 fürdőszobás és 500 négyzetméteres telekkel rendelkezik, amely bővítési lehetőségeket is kínál.
A tágas nappali a családi élet szíve, ahol a közös pillanatok igazán emlékezetessé válhatnak.
A 22,5 négyzetméteres terasz pedig tökéletes helyszín a nyári esték eltöltésére, ahol a zöldkerti kilátás mellett élvezheted a friss levegőt.
A közlekedési csomópont közelsége miatt a közlekedés kitűnő, így könnyedén elérheted Budapest bármely részét.
A csendes környék ideális választás családok számára, ahol a gyerekek biztonságban játszhatnak a szabadban.
A modern építkezés prémium kivitelezéssel készült, és megújuló fűtési rendszerrel, valamint klímával van felszerelve, így a fenntartási költségek is alacsonyak.
A felkapott környék és a folyamatosan növekvő ingatlanpiac miatt ez a ház nemcsak a családod számára ideális, hanem hosszú távú befektetésként is megállja a helyét.
A világos, tágas terek és a modern kialakítás minden igényt kielégít.
!! Átadás 2025. december.
A kivitelező megbízható, évtizedes építési tapasztalattal, a környéken számos referencia házzal!!
Ne habozz, hiszen egy ilyen kivételes ingatlan gyorsan gazdára talál!
Ha kérdéseid lennének, vagy szeretnéd megtekinteni az ingatlant, bizalommal kereshetsz!
Egy igazán különleges lehetőség vár rád Budapest 18. kerületében!
Ha családos vagy, és egy új, modern otthonra vágysz, akkor ez az új építésű családiház garantáltan elnyeri tetszésedet.
Az ingatlan egy szintes, akadálymentesített, 145 négyzetméteren terül el, nappali + 3 hálószobás, 2 fürdőszobás és 500 négyzetméteres telekkel rendelkezik, amely bővítési lehetőségeket is kínál.
A tágas nappali a családi élet szíve, ahol a közös pillanatok igazán emlékezetessé válhatnak.
A 22,5 négyzetméteres terasz pedig tökéletes helyszín a nyári esték eltöltésére, ahol a zöldkerti kilátás mellett élvezheted a friss levegőt.
A közlekedési csomópont közelsége miatt a közlekedés kitűnő, így könnyedén elérheted Budapest bármely részét.
A csendes környék ideális választás családok számára, ahol a gyerekek biztonságban játszhatnak a szabadban.
A modern építkezés prémium kivitelezéssel készült, és megújuló fűtési rendszerrel, valamint klímával van felszerelve, így a fenntartási költségek is alacsonyak.
A felkapott környék és a folyamatosan növekvő ingatlanpiac miatt ez a ház nemcsak a családod számára ideális, hanem hosszú távú befektetésként is megállja a helyét.
A világos, tágas terek és a modern kialakítás minden igényt kielégít.
!! Átadás 2025. december.
A kivitelező megbízható, évtizedes építési tapasztalattal, a környéken számos referencia házzal!!
Ne habozz, hiszen egy ilyen kivételes ingatlan gyorsan gazdára talál!
Ha kérdéseid lennének, vagy szeretnéd megtekinteni az ingatlant, bizalommal kereshetsz!
Regisztrációs szám
U0048562
Az ingatlan adatai
Értékesités
eladó
Jogi státusz
új
Jelleg
ház
Építési mód
tégla
Méret
145 m²
Bruttó méret
156 m²
Telek méret
500 m²
Terasz / erkély mérete
22,5 m²
Kert méret
500 m²
Fűtés
megújuló
Belmagasság
275 cm
Tájolás
Dél-kelet
Állapot
Kiváló
Homlokzat állapota
Kiváló
Környék
csendes, jó közlekedés, zöld
Építés éve
2025
Fürdőszobák száma
2
Társaház kert
igen
Garázs
Benne van az árban
Garázs férőhely
1
Víz
Van
Villany
Van
Csatorna
Van
Tároló
Önálló
Helyiségek
előszoba
7.26 m²
nappali
16.02 m²
konyha-étkező
27.06 m²
szoba
14.76 m²
szoba
14.35 m²
szoba
14.46 m²
fürdőszoba-wc
9.62 m²
háztartási helyiség
5.51 m²
wc-kézmosó
3.9 m²
garázs
16.74 m²
tároló
4.27 m²
terasz
22.5 m²

Horváth Szabina
Hitelszakértő