Elérhető Otthon Start hitellel
Eladó újépítésű családi ház,
U0048494
Kiskunlacháza
73 200 000 Ft
188 000 €
- 97,5m²
- 5 szoba




Új Építésű, Energiatakarékos Otthon Kiskunlacháza Fejlődő Részén!
Nappali + 4 hálószobás, modern kialakítás – kizárólagos kerthasználattal, 2025 IV. negyedévi átadással!
Ha olyan otthont keres, amely a kényelem, a minőség és a fenntarthatóság hármasát kínálja, ne menjen tovább! Ez a kiváló műszaki tartalommal készülő, új építésű családi ház tökéletes választás családoknak, pároknak vagy akár tudatos befektetőknek is.
Főbb jellemzők:
Lakótér: 97,54 m²
Elosztás: Nappali + 4 tágas hálószoba
Terasz: kertkapcsolatos, ideális pihenéshez
Telekrész: 408 m² saját, kizárólagos használatban
Teljesen különálló épület – nincs ikerház, nincs közös fal!
Átadás: 2025. IV. negyedév – még van lehetőség egyedi belső kialakításra!
Modern technológia, hosszú távú megtérülés:
Porotherm 30 X-THERM tégla + 15 cm grafitos hőszigetelés
Háromrétegű, hőszigetelt nyílászárók
Austrotherm padlószigetelés + cellulóz födém szigetelés
Hőszivattyús fűtésrendszer (radiátor + padlófűtés)
Helyiségenkénti termosztátos szabályozás
Bramac tetőfedés, biztonsági fóliázással
Alacsony fenntartási költségek, energiahatékony működés!
Kiváló lokáció:
Kiskunlacháza legújabb, folyamatosan fejlődő lakóövezetében
Csendes környék, mégis mindenhez közel:
✅ Iskola
✅ Bevásárlási lehetőségek
✅ Orvosi rendelő
✅ Közlekedés pár perc távolságra
Otthon és befektetés egyben!
Ez az ingatlan CSOK Plusz és államilag támogatott hitelek igénybevételével is megvásárolható, így nemcsak kényelmes otthon, hanem biztos értékmegőrző befektetés is egy dinamikusan fejlődő térségben.
Ne várjon a kereslet csúcsáig – foglalja le időben új otthonát, és alakítsa saját ízlése szerint!
Keressen bizalommal további információért és személyes konzultációért!
Nappali + 4 hálószobás, modern kialakítás – kizárólagos kerthasználattal, 2025 IV. negyedévi átadással!
Ha olyan otthont keres, amely a kényelem, a minőség és a fenntarthatóság hármasát kínálja, ne menjen tovább! Ez a kiváló műszaki tartalommal készülő, új építésű családi ház tökéletes választás családoknak, pároknak vagy akár tudatos befektetőknek is.
Főbb jellemzők:
Lakótér: 97,54 m²
Elosztás: Nappali + 4 tágas hálószoba
Terasz: kertkapcsolatos, ideális pihenéshez
Telekrész: 408 m² saját, kizárólagos használatban
Teljesen különálló épület – nincs ikerház, nincs közös fal!
Átadás: 2025. IV. negyedév – még van lehetőség egyedi belső kialakításra!
Modern technológia, hosszú távú megtérülés:
Porotherm 30 X-THERM tégla + 15 cm grafitos hőszigetelés
Háromrétegű, hőszigetelt nyílászárók
Austrotherm padlószigetelés + cellulóz födém szigetelés
Hőszivattyús fűtésrendszer (radiátor + padlófűtés)
Helyiségenkénti termosztátos szabályozás
Bramac tetőfedés, biztonsági fóliázással
Alacsony fenntartási költségek, energiahatékony működés!
Kiváló lokáció:
Kiskunlacháza legújabb, folyamatosan fejlődő lakóövezetében
Csendes környék, mégis mindenhez közel:
✅ Iskola
✅ Bevásárlási lehetőségek
✅ Orvosi rendelő
✅ Közlekedés pár perc távolságra
Otthon és befektetés egyben!
Ez az ingatlan CSOK Plusz és államilag támogatott hitelek igénybevételével is megvásárolható, így nemcsak kényelmes otthon, hanem biztos értékmegőrző befektetés is egy dinamikusan fejlődő térségben.
Ne várjon a kereslet csúcsáig – foglalja le időben új otthonát, és alakítsa saját ízlése szerint!
Keressen bizalommal további információért és személyes konzultációért!
Regisztrációs szám
U0048494
Az ingatlan adatai
Értékesités
eladó
Jogi státusz
új
Jelleg
ház
Építési mód
tégla
Méret
97,5 m²
Bruttó méret
100 m²
Telek méret
408 m²
Fűtés
hőszivattyú
Belmagasság
260 cm
Tájolás
Dél-kelet
Állapot
Kiváló
Homlokzat állapota
Kiváló
Környék
csendes, zöld
Építés éve
2025
Fürdőszobák száma
1
Társaház kert
igen
Fedett beállók száma
1
Víz
Van
Villany
Van
Csatorna
Van
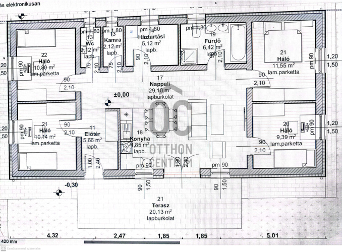
Helyiségek
előszoba
5.66 m²
szoba
10.14 m²
szoba
10.8 m²
wc
2.12 m²
kamra
2.12 m²
háztartási helyiség
5.12 m²
fürdőszoba-wc
6.42 m²
szoba
11.55 m²
szoba
9.39 m²
konyha
4.85 m²
nappali-étkező
29.1 m²
terasz
20.13 m²

Joó Krisztina
Hitelszakértő