Elérhető Otthon Start hitellel
Eladó újépítésű sorház,
U0048212
Hajdúszoboszló
105 000 000 Ft
269 000 €
- 123,1m²
- 4 szoba














Hajdúszoboszló kertvárosi részén újonnan épülő sorházi ingatlanok eladók!
Hajdúszoboszlón 2026 év végi átadással 7 db sorházi ingatlan eladó!
ELÉRHETŐ OTTHON START HITELLEL!
Jellemzői :
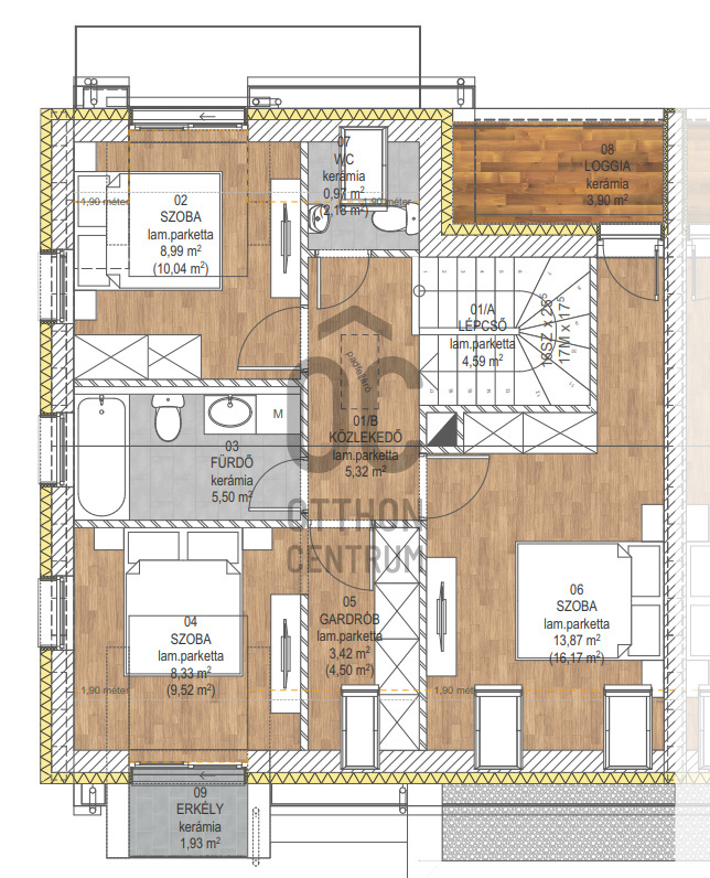
- 122.43 nm - 123.17 nm ( fszt + emelet )
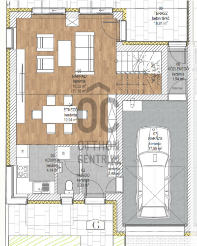
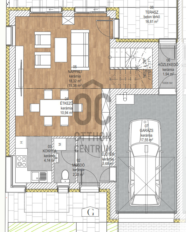
- alsó szinten : amerikai konyha étkezővel,nagy nappali ,mosdó,előtér,közlekedő ( 66.75-67.31 nm )
- 76.12 nm - 78.11 nm -es privát kert és egy nagy terasz
- garázs
- felső szinten : 3 szoba ,fürdőszoba külön wc,gardrób,loggia és erkély ( 55.68-55.86 nm )
- tégla építésű ( 30-as POROTHERM )
- 15 cm-es szigetelés
- 3 rétegű műanyag nyílászárók
- Whirpool Swip 312L klíma
- fűtése gázcirkó, radiátoros hőleadással
- távvezérlésű garázskapu
Leendő tulajdonosa az építkezés ideje alatt igény szerint alakíthatja ki a belső elrendezést, kiválaszthatja a hideg-meleg burkolatokat.
Infrastruktúrálisan kedvező elhelyezkedés.
Közelben boltok,iskola,óvoda ,buszmegálló.
A fürdő bejárata autóval 5 percnyire található.
CSOK plusz igénybe vehető.
A HIRDETÉSI ADATOK S AZ ALAPRAJZ TÁJÉKOZTATÓ JELLEGŰEK !
Amennyiben vásárláshoz hitelre is lenne szükséged van független hitel tanácsadónk aki ingyenesen tud Neked segítséget nyújtani a legjobb konstrukciók kiválasztásában és a folyamat lebonyolításában.
Irodánk kereső ügyfeleinknek teljes körű szolgáltatást nyújt, szakszerű tanácsadással, energetikai tanúsítvány elkészítésével, hitelügyintézéssel és profi ügyvédi segítséggel.
Fedezd fel a tökéletes otthont családod számára Hajdúszoboszlón, a csendes és barátságos kertvárosi környezetben!
Ez a modern, új építésű ház ideális választás lehet számodra, ha a kényelem és a minőség mellett döntesz.
A házban 3 tágas szoba és egy nagy nappali várja, hogy berendezd őket saját ízlésed szerint, a két fürdőszoba pedig garantálja, hogy soha ne kelljen várakozni a reggeli készülődés során.
A nappali tágas és világos, ideális helyszín családi összejövetelekhez vagy baráti találkozókhoz.
Ehhez a kertkapcsolatos ingatlanhoz tartozik még egy 8,41 nm-es terasz, ahol élvezheted a napsütést, és egy kis erkély is, amely tökéletes hely a reggeli kávézáshoz.
A környék ellátottsága kiváló, a közeli boltok, iskolák és óvodák mindössze pár perc sétára találhatóak.
A csendes utcák és a barátságos szomszédság ideális környezetet biztosítanak a gyermekek számára, akik biztonságosan játszhatnak a szabadban.
A helyi közlekedési lehetőségek is kedvezőek, így könnyedén elérheted a város többi részét, és a közeli nagyobb városok is gyorsan megközelíthetőek autóval vagy tömegközlekedéssel.
Ez a kertkapcsolatos lakás nem csupán egy ingatlan, hanem egy lehetőség arra, hogy egy igazán otthonos környezetet teremts családod számára.
A modern dizájn és a praktikus elrendezés mind hozzájárulnak ahhoz, hogy itt mindig jól érezd magad.
Ha kérdéseid lennének az ingatlannal vagy a vásárlási folyamattal kapcsolatban, ne habozz keresni!
Bizalommal állok rendelkezésedre, hogy segítsek megtalálni álmaid otthonát!
#hajdubiharvarmegye #hajduszoboszlo #projekt #ketszintes #befektetes #kertvarosi #családihaz #ujepitesű
ELÉRHETŐ OTTHON START HITELLEL!
Jellemzői :
- 122.43 nm - 123.17 nm ( fszt + emelet )
- alsó szinten : amerikai konyha étkezővel,nagy nappali ,mosdó,előtér,közlekedő ( 66.75-67.31 nm )
- 76.12 nm - 78.11 nm -es privát kert és egy nagy terasz
- garázs
- felső szinten : 3 szoba ,fürdőszoba külön wc,gardrób,loggia és erkély ( 55.68-55.86 nm )
- tégla építésű ( 30-as POROTHERM )
- 15 cm-es szigetelés
- 3 rétegű műanyag nyílászárók
- Whirpool Swip 312L klíma
- fűtése gázcirkó, radiátoros hőleadással
- távvezérlésű garázskapu
Leendő tulajdonosa az építkezés ideje alatt igény szerint alakíthatja ki a belső elrendezést, kiválaszthatja a hideg-meleg burkolatokat.
Infrastruktúrálisan kedvező elhelyezkedés.
Közelben boltok,iskola,óvoda ,buszmegálló.
A fürdő bejárata autóval 5 percnyire található.
CSOK plusz igénybe vehető.
A HIRDETÉSI ADATOK S AZ ALAPRAJZ TÁJÉKOZTATÓ JELLEGŰEK !
Amennyiben vásárláshoz hitelre is lenne szükséged van független hitel tanácsadónk aki ingyenesen tud Neked segítséget nyújtani a legjobb konstrukciók kiválasztásában és a folyamat lebonyolításában.
Irodánk kereső ügyfeleinknek teljes körű szolgáltatást nyújt, szakszerű tanácsadással, energetikai tanúsítvány elkészítésével, hitelügyintézéssel és profi ügyvédi segítséggel.
Fedezd fel a tökéletes otthont családod számára Hajdúszoboszlón, a csendes és barátságos kertvárosi környezetben!
Ez a modern, új építésű ház ideális választás lehet számodra, ha a kényelem és a minőség mellett döntesz.
A házban 3 tágas szoba és egy nagy nappali várja, hogy berendezd őket saját ízlésed szerint, a két fürdőszoba pedig garantálja, hogy soha ne kelljen várakozni a reggeli készülődés során.
A nappali tágas és világos, ideális helyszín családi összejövetelekhez vagy baráti találkozókhoz.
Ehhez a kertkapcsolatos ingatlanhoz tartozik még egy 8,41 nm-es terasz, ahol élvezheted a napsütést, és egy kis erkély is, amely tökéletes hely a reggeli kávézáshoz.
A környék ellátottsága kiváló, a közeli boltok, iskolák és óvodák mindössze pár perc sétára találhatóak.
A csendes utcák és a barátságos szomszédság ideális környezetet biztosítanak a gyermekek számára, akik biztonságosan játszhatnak a szabadban.
A helyi közlekedési lehetőségek is kedvezőek, így könnyedén elérheted a város többi részét, és a közeli nagyobb városok is gyorsan megközelíthetőek autóval vagy tömegközlekedéssel.
Ez a kertkapcsolatos lakás nem csupán egy ingatlan, hanem egy lehetőség arra, hogy egy igazán otthonos környezetet teremts családod számára.
A modern dizájn és a praktikus elrendezés mind hozzájárulnak ahhoz, hogy itt mindig jól érezd magad.
Ha kérdéseid lennének az ingatlannal vagy a vásárlási folyamattal kapcsolatban, ne habozz keresni!
Bizalommal állok rendelkezésedre, hogy segítsek megtalálni álmaid otthonát!
#hajdubiharvarmegye #hajduszoboszlo #projekt #ketszintes #befektetes #kertvarosi #családihaz #ujepitesű
Regisztrációs szám
U0048212
Az ingatlan adatai
Értékesités
eladó
Jogi státusz
új
Jelleg
ház
Építési mód
tégla
Méret
123,1 m²
Bruttó méret
123,1 m²
Telek méret
418 m²
Terasz / erkély mérete
9,3 m²
Fűtés
Gáz cirkó
Belmagasság
270 cm
Lakáson belüli szintszám
1
Tájolás
Észak-kelet
Panoráma
városi panoráma
Állapot
Kiváló
Homlokzat állapota
Kiváló
Környék
csendes, jó közlekedés, zöld
Építés éve
2026
Fürdőszobák száma
2
Garázs
Benne van az árban
Garázs férőhely
1
Víz
Van
Gáz
Van
Villany
Van
Csatorna
Van
Helyiségek
előszoba
3.68 m²
mosdó
2.33 m²
konyha
4.14 m²
ebédlő
10.94 m²
nappali
18.32 m²
közlekedő
1.94 m²
garázs
17.55 m²
terasz
8.41 m²
lépcsőház
4.59 m²
közlekedő
5.32 m²
szoba
8.99 m²
fürdőszoba
5.5 m²
szoba
8.33 m²
gardrób
3.42 m²
szoba
13.87 m²
wc
0.97 m²
loggia
3.9 m²
erkély
0.97 m²

Katonáné Boruzs Ildikó
Hitelszakértő