Eladó telek, T041083
Kecskemét, Hetényegyháza

11 900 000 Ft

32 000 €

  • 1 070m²
Kiemelt megbízás

FOR SALE: A plot of land suitable for the construction of an industrial building in a quiet environment in Kecskemét–Hetényegyháza.

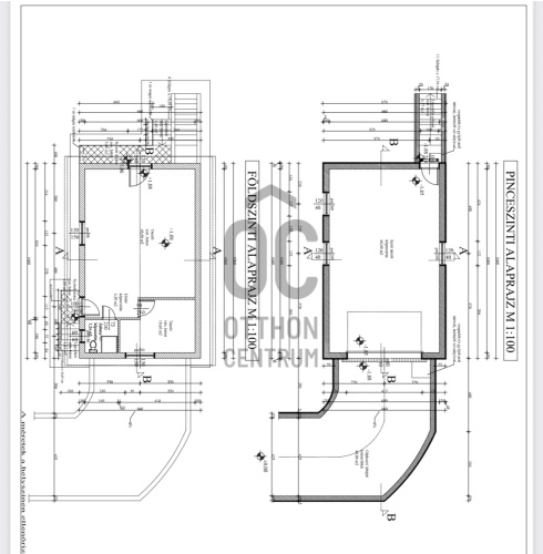
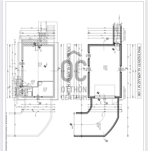
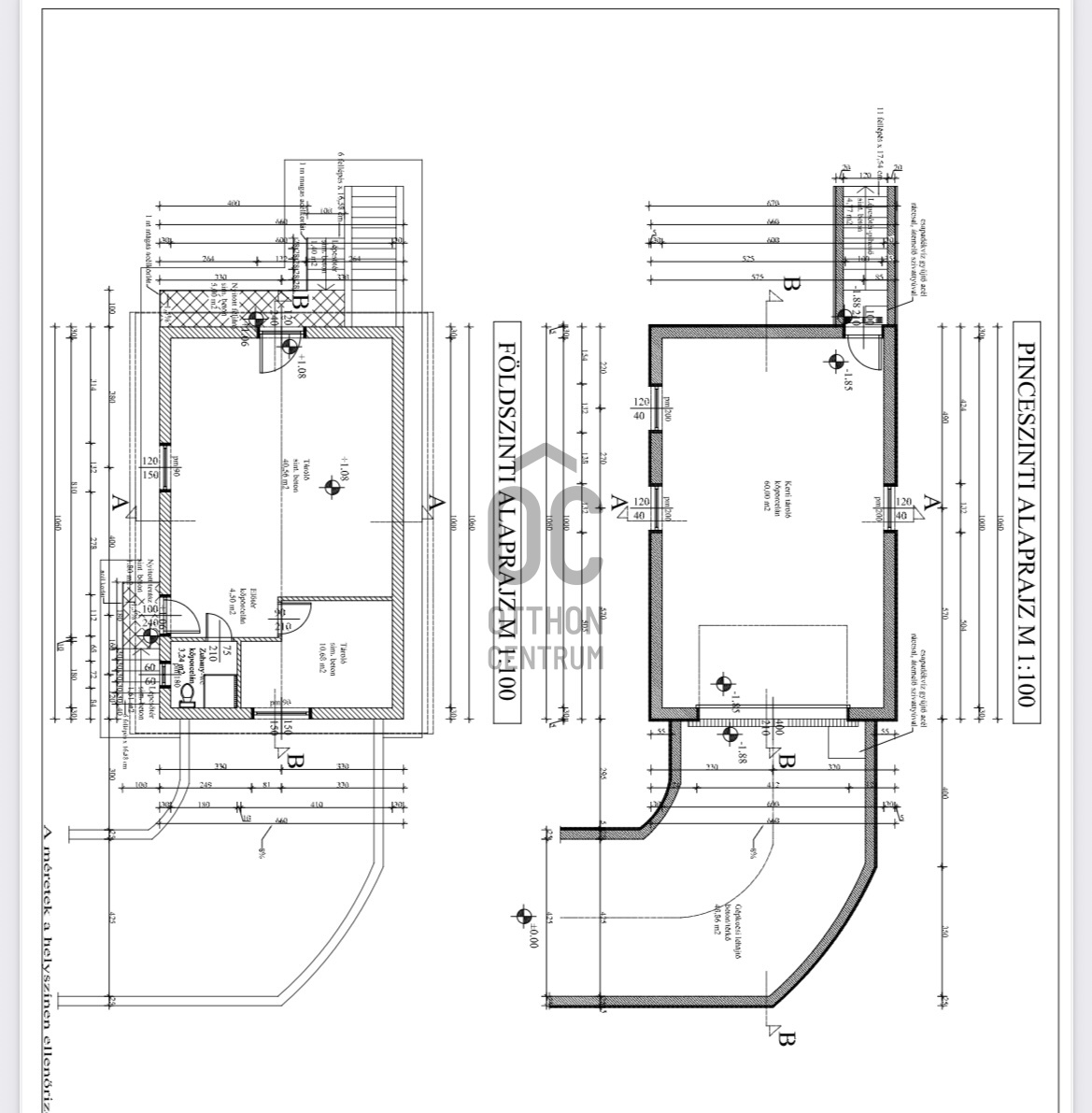
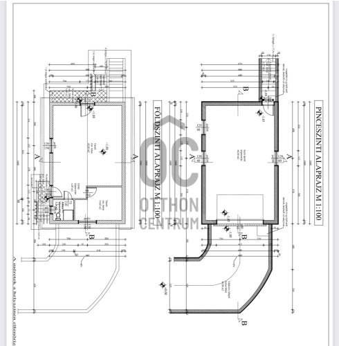
In a quiet, peaceful area of Kecskemét–Hetényegyháza, a 1070 m² plot of land is for sale, in undivided co-ownership, with an assigned house number and existing building permits for the construction of an economic building. Planned usable floor areas: - Basement: 60.00 m² - Ground floor: 58.98 m² Main features: - Quiet, peaceful environment - 1070 m² plot - Undivided co-ownership - Property with an assigned house number - Existing building permits - Economic building can be constructed - Complete planning documentation and technical description available upon request Recommended for anyone looking for a well-prepared, legally organized opportunity in the preferred area of Hetényegyháza. For more information, please feel free to contact us! Kecskemét, Hetényegyháza, plot, economic building, permit.

Regisztrációs szám

T041083

Az ingatlan adatai

Értékesités
eladó
Jelleg
telek
Típus
Építési telek
Övezet
lakóövezet
Telek méret
1 070 m²
Tájolás
Dél-nyugat
Környék
csendes, jó közlekedés, zöld
Gáz
Utcán
Villany
Van

 

Beépíthetőség
6%
Homlokzat magassága
5
Építhető ingatlan típusa
Gazdasági épület

Irodánk kínálatából - Kecskemét - Kisfaludy utca

for sale family house

Index image
data_sheet.details.realestate.section.main.otthonstart_flag.label
19

for sale panel apartment

Index image
data_sheet.details.realestate.section.main.otthonstart_flag.label
13

for sale farmhouse

Index image
data_sheet.details.realestate.section.main.otthonstart_flag.label
19