217 000 000 Ft
564 000 €
- 1 115m²
EXCLUSIVE PANORAMIC BUILDING PLOT IN THE GREEN HEART OF DISTRICT II/A
I am offering for sale a 1115 m² corner plot in the neighborhood of the Forest in Budapest II/A district
“This is not a plot. This is a decision for a calmer, more valuable life.”
WHY THIS PLOT IS A RARE OPPORTUNITY
•1115 m², panoramic corner plot in one of the most sought-after parts of the II/A district
•In the immediate vicinity of the Forest – guaranteed intimacy, birdsong, clean air
•Quiet, family-owned area, without through traffic
•Accessible from two streets (Rézsű utca – Határ út) → freedom of design
•Utilities: water, electricity, gas, sewer on the plot
•Asphalted road, tidy environment
The number of plots with such characteristics is not decreasing – they are running out.
BUILDING POSSIBILITIES – WHAT IS PLANNED IN ADVANCE
•Zone classification: Lke-3/SZ-3
•Up to 3-4 apartment condominiums can be built
•15% buildability, 0.4 floor area indicator
•75% green space – a real garden, no compromise
•6 m maximum building height
•Underground garage permitted
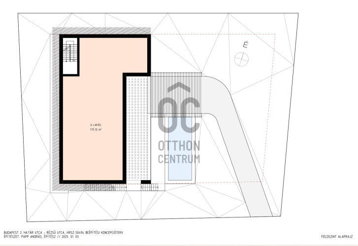
A completed concept plan prepared by a professional architect is available:
•Underground garage (with swimming pool, mechanical engineering)
•Ground floor + first floor + attic
•Modern, terraced, panoramic apartments
•3D mass models – you can already see what can be created here
You don’t start from scratch. Someone has already thought for you here.
THE ENVIRONMENT – WHY IT IS GOOD TO LIVE HERE
District II/A = green belt + prestige + value stability
•Forest, hilly environment, hiking trails nearby
•Clean air, low building density
•Quiet, safe, elite residential environment
Education and institutions:
•Several kindergartens and primary schools nearby
•Reputable international and private schools are easily accessible
•Child-friendly environment, real community
Services:
•Shopping opportunities, pharmacy
•Restaurants, cafes
•Sports and leisure opportunities
•Good transport, yet calm
IMAGINE THE FUTURE…
In the morning, you have coffee on the terrace.
A green panorama opens up through the glass surfaces of the living room.
The children grow up on a safe street.
It is quiet in the evening. Uncompromising silence – quality silence.
This is a place where you can not only live. You can live here.
WHO DO WE RECOMMEND?
✔ Families who:
•are looking for a life close to nature, yet in the city
•are planning for the long term
•value peace and quality
✔ Investors / developers who:
•are looking for a location that will last
•are thinking about a premium project with a small number of apartments
•would like to start with a ready-made concept
WHY NOW?
•Corner plots with this condition are very rare in the II/A district
•The value of plots with a forest and a panoramic view increases structurally
•The opportunity does not knock twice
This is not an advertisement - it is an invitation to make a better decision.
If you want to see it, not just imagine it, then this plot is waiting for you.
We are at your disposal with home loans tailored to your individual needs.
Our bank-independent Credit Center will compare the offers of all banks and credit institutions available in the country for you free of charge.
Our employees, with extensive professional experience and full CSOK PLUSZ and HOME START PROGRAM administration, are waiting for you at a pre-arranged time, even after normal working hours.
“This is not a plot. This is a decision for a calmer, more valuable life.”
WHY THIS PLOT IS A RARE OPPORTUNITY
•1115 m², panoramic corner plot in one of the most sought-after parts of the II/A district
•In the immediate vicinity of the Forest – guaranteed intimacy, birdsong, clean air
•Quiet, family-owned area, without through traffic
•Accessible from two streets (Rézsű utca – Határ út) → freedom of design
•Utilities: water, electricity, gas, sewer on the plot
•Asphalted road, tidy environment
The number of plots with such characteristics is not decreasing – they are running out.
BUILDING POSSIBILITIES – WHAT IS PLANNED IN ADVANCE
•Zone classification: Lke-3/SZ-3
•Up to 3-4 apartment condominiums can be built
•15% buildability, 0.4 floor area indicator
•75% green space – a real garden, no compromise
•6 m maximum building height
•Underground garage permitted
A completed concept plan prepared by a professional architect is available:
•Underground garage (with swimming pool, mechanical engineering)
•Ground floor + first floor + attic
•Modern, terraced, panoramic apartments
•3D mass models – you can already see what can be created here
You don’t start from scratch. Someone has already thought for you here.
THE ENVIRONMENT – WHY IT IS GOOD TO LIVE HERE
District II/A = green belt + prestige + value stability
•Forest, hilly environment, hiking trails nearby
•Clean air, low building density
•Quiet, safe, elite residential environment
Education and institutions:
•Several kindergartens and primary schools nearby
•Reputable international and private schools are easily accessible
•Child-friendly environment, real community
Services:
•Shopping opportunities, pharmacy
•Restaurants, cafes
•Sports and leisure opportunities
•Good transport, yet calm
IMAGINE THE FUTURE…
In the morning, you have coffee on the terrace.
A green panorama opens up through the glass surfaces of the living room.
The children grow up on a safe street.
It is quiet in the evening. Uncompromising silence – quality silence.
This is a place where you can not only live. You can live here.
WHO DO WE RECOMMEND?
✔ Families who:
•are looking for a life close to nature, yet in the city
•are planning for the long term
•value peace and quality
✔ Investors / developers who:
•are looking for a location that will last
•are thinking about a premium project with a small number of apartments
•would like to start with a ready-made concept
WHY NOW?
•Corner plots with this condition are very rare in the II/A district
•The value of plots with a forest and a panoramic view increases structurally
•The opportunity does not knock twice
This is not an advertisement - it is an invitation to make a better decision.
If you want to see it, not just imagine it, then this plot is waiting for you.
We are at your disposal with home loans tailored to your individual needs.
Our bank-independent Credit Center will compare the offers of all banks and credit institutions available in the country for you free of charge.
Our employees, with extensive professional experience and full CSOK PLUSZ and HOME START PROGRAM administration, are waiting for you at a pre-arranged time, even after normal working hours.
Regisztrációs szám
T041081
Az ingatlan adatai
Értékesités
eladó
Jelleg
telek
Típus
Építési telek
Övezet
lakóövezet
Telek méret
1 115 m²
Tájolás
Észak-kelet
Panoráma
Zöldre néző panoráma
Környék
csendes
Víz
Van
Gáz
Van
Villany
Van
Csatorna
Van
Telek lejtés
10-20% között
Beépíthetőség
15%
Homlokzat magassága
600
Építhető ingatlan típusa
Családi ház, Társasház 4 lakásig