Eladó telek, T040320
Kecskemét, Hetényegyháza

33 000 000 Ft

85 000 €

  • 5 755m²
Kiemelt megbízás

For sale is a 5755 sqm building plot in a wooded environment!

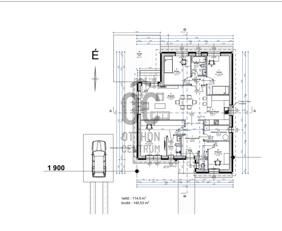
Building plot for sale in Kecskemét, Hetényegyházá, with ready plans and approved permits. Main features: - 5755 m² plot area (+2846 m² on the adjacent plot, totaling 8601 m²) - 5% buildability - Quiet, wooded environment - 800 m from the asphalt road - Sold with a drilled well - Has existing permits (valid for 4 years) - Complete planning documentation for a family house with 1 living room and 3 bedrooms - Gross area of 140.53 m² for the family house - Electricity in front of the plot - Gas in front of the plot For more information, please feel free to contact me!

Regisztrációs szám

T040320

Az ingatlan adatai

Értékesités
eladó
Jelleg
telek
Típus
Építési telek
Övezet
lakóövezet
Telek méret
5 755 m²
Tájolás
Észak-kelet
Panoráma
Zöldre néző panoráma
Környék
csendes, jó közlekedés, központi
Víz
Van
Gáz
Utcán
Villany
Utcán

 

Beépíthetőség
5%
Homlokzat magassága
5
Építhető ingatlan típusa
Családi ház

Irodánk kínálatából - Kecskemét - Kisfaludy utca

eladó lakás

Index image
Elérhető Otthon Start hitellel
12

eladó tanya

Index image
Elérhető Otthon Start hitellel
25

eladó családi ház

Index image
22

eladó tanya

Index image
Elérhető Otthon Start hitellel
22