Elérhető Otthon Start hitellel
Eladó újépítésű családi ház,
P4791-2-4B-FZ-004
Siófok, Fokihegy
87 000 000 Ft
228 000 €
- 71,2m²
- 4 szoba
- földszint
Siófok, Ezüstpart közelében - Egy új ház azoknak, akik nem szeretnek zajban élni.
Eladásra kínálunk egy új építésű, földszintes, önálló családi házat Siófokon, az Ezüstpart szabadstrandtól 1000 méterre.
Az ingatlan kulcsrakészen kerül átadásra, a kivitelezés minden részlete a hosszú távú minőségre és az alacsony üzemeltetési költségekre lett optimalizálva.
A 61–71 m² alapterületű házak átgondolt alaprajzzal készülnek:
Nappali–amerikai konyha, 2–3 hálószoba, fürdőszoba, külön WC, terasz.
Földszintes kialakítás, természetes térarányok, élhető méretek.
A szerkezet 30 cm-es Porotherm téglából épül, korszerű hőszigeteléssel, háromrétegű nyílászárókkal.
A fűtést és a használati melegvizet levegő–víz hőszivattyú biztosítja, padlófűtéssel.
A burkolatok és szaniterek meghatározott árkategórián belül választhatók.
Az ár tartalmazza a 3D kerítést, a tereprendezést és a felszíni gépkocsi-beállót.
A projektben összesen 12 önálló ház épül, külön bejárattal és saját kerítéssel.
A főbb építőanyagok már rendelkezésre állnak. Várható átadás: 2026. második negyedév.
A környezet csendes, zöld, nem a főút és nem a Balaton felőli oldalon található.
A Balaton 15 perc sétával elérhető, a mindennapi infrastruktúra néhány percre van.
Ez az ingatlan nem látványos ígéretekkel operál.
Egyszerűen jól lesz megépítve.
Tervdokumentáció és részletes műszaki tartalom kérhető.
Eladásra kínálunk egy új építésű, földszintes, önálló családi házat Siófokon, az Ezüstpart szabadstrandtól 1000 méterre.
Az ingatlan kulcsrakészen kerül átadásra, a kivitelezés minden részlete a hosszú távú minőségre és az alacsony üzemeltetési költségekre lett optimalizálva.
A 61–71 m² alapterületű házak átgondolt alaprajzzal készülnek:
Nappali–amerikai konyha, 2–3 hálószoba, fürdőszoba, külön WC, terasz.
Földszintes kialakítás, természetes térarányok, élhető méretek.
A szerkezet 30 cm-es Porotherm téglából épül, korszerű hőszigeteléssel, háromrétegű nyílászárókkal.
A fűtést és a használati melegvizet levegő–víz hőszivattyú biztosítja, padlófűtéssel.
A burkolatok és szaniterek meghatározott árkategórián belül választhatók.
Az ár tartalmazza a 3D kerítést, a tereprendezést és a felszíni gépkocsi-beállót.
A projektben összesen 12 önálló ház épül, külön bejárattal és saját kerítéssel.
A főbb építőanyagok már rendelkezésre állnak. Várható átadás: 2026. második negyedév.
A környezet csendes, zöld, nem a főút és nem a Balaton felőli oldalon található.
A Balaton 15 perc sétával elérhető, a mindennapi infrastruktúra néhány percre van.
Ez az ingatlan nem látványos ígéretekkel operál.
Egyszerűen jól lesz megépítve.
Tervdokumentáció és részletes műszaki tartalom kérhető.
Regisztrációs szám
P4791-2-4B-FZ-004
Az ingatlan adatai
Értékesités
eladó
Jogi státusz
új
Jelleg
ház
Építési mód
tégla
Méret
71,2 m²
Bruttó méret
84,1 m²
Telek méret
300 m²
Terasz / erkély mérete
12,9 m²
Kert méret
300 m²
Fűtés
values.realestate.futes.27
Belmagasság
280 cm
Tájolás
Nyugat
Állapot
Kiváló
Homlokzat állapota
Kiváló
Környék
csendes, jó közlekedés, zöld, központi
Építés éve
2026
Fürdőszobák száma
1
Társaház kert
igen
Garázs
Benne van az árban
Víz
Van
Gáz
Utcán
Villany
Van
Csatorna
Van
Vízpart távolsága
több mint 500 méterre
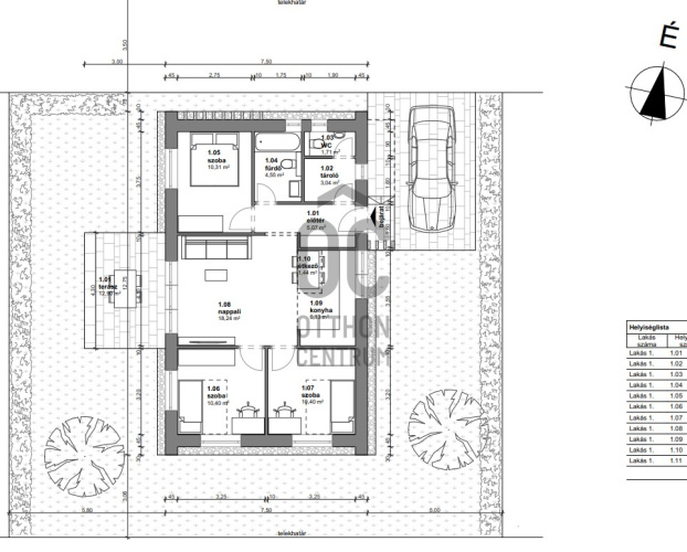
Helyiségek
terasz
12.9 m²
előszoba
5.07 m²
tároló
3.04 m²
wc-kézmosó
1.71 m²
fürdőszoba-wc
4.55 m²
hálószoba
10.31 m²
hálószoba
10.4 m²
hálószoba
10.4 m²
nappali
18.24 m²
konyha
6.13 m²
ebédlő
1.44 m²
Dienes László
Hitelszakértő