Elérhető Otthon Start hitellel
Eladó újépítésű családi ház,
P4778-1-05-NA-000
Nagykálló
123 268 000 Ft
324 000 €
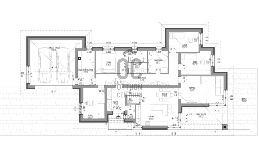
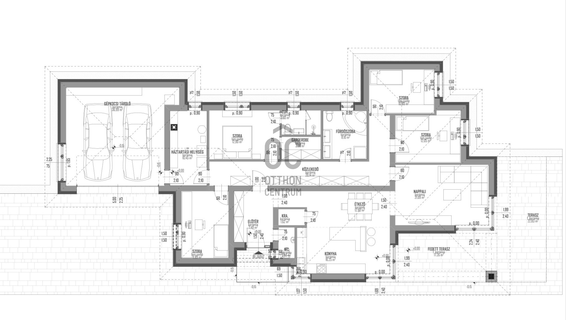
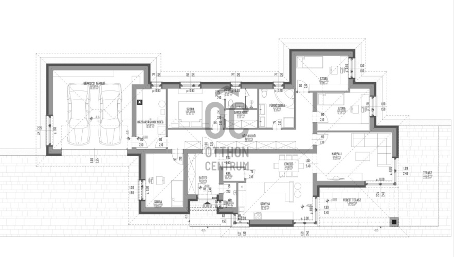
- 191,5m²
- 5 szoba
Kapós Liget Nagykálló – A jövő otthona már elérhető közelségben!
Fantasztikus lehetőség azon családok számára, akik nyugalmat keresnek közel Nyíregyházához és ragaszkodnak a modern tervekhez és a korszerű kivitelezésekhez!
A projekt házak terveit tűpontosan a mai igényeknek megfelelően készítették, és ezeken most még kedvére módosíthat, akár teljes újra tervezésre is van lehetőség!
A Kapós Liget kedvező m2 árai garantálják, hogy nem kell kompromisszumokat kötnie az elképzeléseiben.
Kapós Liget Nagykálló...
...ahol a modern életstílus találkozik a nyugalommal – újépítésű prémium házak!
Képzelje el, hogy minden napját egy olyan otthonban kezdi, ahol a csendes utcák nyugalma találkozik az Ön kényelmével. A ház, amelyet gondos tervezéssel, időtálló minőséggel és a legmodernebb technológiákkal alkotnak meg – és amely most, az Öné lehet.
Ez a 191.52 m²-es, nettó alapterületű, prémium kategóriás családi ház nem egyszerűen egy ingatlan. Egy életérzés. A tágas terek, a letisztult vonalak és a természetes fény harmóniája már az első pillanatban otthonosságot sugároz.
A négy szoba lehetőséget ad a nyugodt pihenésre, különleges privátszférára és inspiráló élettérre. A nagy, fedett terasz pedig nemcsak kényelmet, hanem valódi szabadságot biztosít – legyen szó esti borozásról vagy családi hétvégékről a kertben.
A ház szíve a technológia. Padló-, fal- és mennyezetfűtés, hővisszanyerős szellőztető rendszer, valamint okosotthon-megoldások, amelyekkel szinte minden funkció távolról irányítható. Itt a modern élet nem extra, hanem természetes.
A 15 cm-es grafitos hőszigetelés és a gondosan megválasztott anyagok egyszerre biztosítanak kiemelkedő energiahatékonyságot és kényelmet – évszaktól függetlenül.
Ez a ház azoknak készült, akik nem érik be az átlagossal. Akik valódi minőséget, időtálló értéket, békét és eleganciát keresnek.
Ha Ön is ilyen otthont szeretne teremteni – itt az alkalom, hogy megtegye az első lépést.
Átadás 2026-ban, a jelenlegi projekt módosítható, újra tervezhető.
✔ Földszintes építésű, különálló családi ház
✔ 191.52/231.61 nettó/bruttó m2
✔ Telek 720 m2
✔ 5 szoba
✔ Nagy fedett terasz + kiegészítő helyiségek a modern életvitel jegyében
✔ Kétállásos garázs
✔ Hőszivattyús fűtésrendszer
✔ Mennyezet és fal fűtés-hűtés rendszer
✔ Programozható szellőzőrendszer
✔ Számtalan távvezérelhető okosotthon funkció
✔ A +++ energiahatékonyság
A hirdetésben szereplő információk a megbízótól kapott adatok alapján készültek, pontosságukért felelősséget nem vállalunk!
Amennyiben vásárláshoz hitelre is szüksége van, független hitel tanácsadónk ingyenesen tud Önnek segítséget nyújtani a legjobb konstrukciók kiválasztásában és a folyamat lebonyolításában. Irodánk kereső ügyfeleinknek teljes körű szolgáltatást nyújt, szakszerű tanácsadással, energetikai tanúsítvány elkészítésével, hitelügyintézéssel és profi ügyvédi segítséggel. Abban az esetben ha az ingatlan felkeltette érdeklődését keressen bizalommal!
A projekt házak terveit tűpontosan a mai igényeknek megfelelően készítették, és ezeken most még kedvére módosíthat, akár teljes újra tervezésre is van lehetőség!
A Kapós Liget kedvező m2 árai garantálják, hogy nem kell kompromisszumokat kötnie az elképzeléseiben.
Kapós Liget Nagykálló...
...ahol a modern életstílus találkozik a nyugalommal – újépítésű prémium házak!
Képzelje el, hogy minden napját egy olyan otthonban kezdi, ahol a csendes utcák nyugalma találkozik az Ön kényelmével. A ház, amelyet gondos tervezéssel, időtálló minőséggel és a legmodernebb technológiákkal alkotnak meg – és amely most, az Öné lehet.
Ez a 191.52 m²-es, nettó alapterületű, prémium kategóriás családi ház nem egyszerűen egy ingatlan. Egy életérzés. A tágas terek, a letisztult vonalak és a természetes fény harmóniája már az első pillanatban otthonosságot sugároz.
A négy szoba lehetőséget ad a nyugodt pihenésre, különleges privátszférára és inspiráló élettérre. A nagy, fedett terasz pedig nemcsak kényelmet, hanem valódi szabadságot biztosít – legyen szó esti borozásról vagy családi hétvégékről a kertben.
A ház szíve a technológia. Padló-, fal- és mennyezetfűtés, hővisszanyerős szellőztető rendszer, valamint okosotthon-megoldások, amelyekkel szinte minden funkció távolról irányítható. Itt a modern élet nem extra, hanem természetes.
A 15 cm-es grafitos hőszigetelés és a gondosan megválasztott anyagok egyszerre biztosítanak kiemelkedő energiahatékonyságot és kényelmet – évszaktól függetlenül.
Ez a ház azoknak készült, akik nem érik be az átlagossal. Akik valódi minőséget, időtálló értéket, békét és eleganciát keresnek.
Ha Ön is ilyen otthont szeretne teremteni – itt az alkalom, hogy megtegye az első lépést.
Átadás 2026-ban, a jelenlegi projekt módosítható, újra tervezhető.
✔ Földszintes építésű, különálló családi ház
✔ 191.52/231.61 nettó/bruttó m2
✔ Telek 720 m2
✔ 5 szoba
✔ Nagy fedett terasz + kiegészítő helyiségek a modern életvitel jegyében
✔ Kétállásos garázs
✔ Hőszivattyús fűtésrendszer
✔ Mennyezet és fal fűtés-hűtés rendszer
✔ Programozható szellőzőrendszer
✔ Számtalan távvezérelhető okosotthon funkció
✔ A +++ energiahatékonyság
A hirdetésben szereplő információk a megbízótól kapott adatok alapján készültek, pontosságukért felelősséget nem vállalunk!
Amennyiben vásárláshoz hitelre is szüksége van, független hitel tanácsadónk ingyenesen tud Önnek segítséget nyújtani a legjobb konstrukciók kiválasztásában és a folyamat lebonyolításában. Irodánk kereső ügyfeleinknek teljes körű szolgáltatást nyújt, szakszerű tanácsadással, energetikai tanúsítvány elkészítésével, hitelügyintézéssel és profi ügyvédi segítséggel. Abban az esetben ha az ingatlan felkeltette érdeklődését keressen bizalommal!
Regisztrációs szám
P4778-1-05-NA-000
Az ingatlan adatai
Értékesités
eladó
Jogi státusz
új
Jelleg
ház
Építési mód
tégla
Méret
191,5 m²
Bruttó méret
231,6 m²
Telek méret
720 m²
Terasz / erkély mérete
40 m²
Fűtés
hőszivattyú
Belmagasság
270 cm
Tájolás
Észak-kelet
Állapot
Kiváló
Homlokzat állapota
Kiváló
Környék
csendes, zöld
Építés éve
2026
Fürdőszobák száma
2
Garázs
Benne van az árban
Garázs férőhely
2
Víz
Van
Gáz
Van
Villany
Van
Csatorna
Van
Helyiségek
szoba
12.9 m²
szoba
10.8 m²
szoba
12.05 m²
szoba
11.89 m²
nappali
21.09 m²
konyha
16.25 m²
ebédlő
12.9 m²
háztartási helyiség
10.45 m²
előszoba
7.49 m²
kamra
1.62 m²
gardrób
3.36 m²
zuhanyzó
3.6 m²
fürdőszoba-wc
8.1 m²
közlekedő
20.14 m²
terasz
22.83 m²
terasz
17.26 m²
garázs
36.99 m²
Czövek Zoltánné
Hitelszakértő