167 300 000 Ft
438 000 €
- 128,5m²
- 5 szoba
Mogyoródon szerkezetkész ikerházfél eladó – exkluzív, zárt villaparkban, portaszolgálattal
Elegáns, időtálló építészeti megoldások és nyugodt, zöld környezet várja leendő tulajdonosát ebben a prémium ikerházfélben. Az ingatlan szerkezetkész állapotban kerül értékesítésre, így a belső tereket és anyaghasználatot saját ízlésedre szabhatod – a minőségi alapok adottak.
Mogyoródon rendezett, zárt lakóparkban
-Dupla garázzsal
-5 szobás
-3 fürdőszobás
-Terasz: 5,74 nm
-Ház méret: 128,56 nm
-Telek méret: 685,36 nm
Főbb jellemzők:
-Prémium alumínium nyílászárók – nagy üvegfelületek, kiváló hő- és hangszigetelés
-Schlotterer motoros árnyékolók – kényelmes, modern fény- és hővédelem
-Zárt villapark portaszolgálattal – rendezett környezet, ellenőrzött bejutás
-Átgondolt ikerházi elrendezés – nincs egymásra néző ablak az ikerfelek között, maximális privát szféra
-Földalatti esővíz-tartályok – fenntartható és költséghatékony vízhasználat a kertben
-Kültéri medence – közösségi vagy saját pihenőtér (projekttől függően)
-Szerkezetkész állapotból adódó szabadon alakítható belső terek és burkolatok
-Mennyezeti fűtés–hűtés előkészítés – a csőhálózat már a födémbe van vezetve a huzatmentes, hatékony hőkomfortért
-Elektromos hálózat előkészítve – a teljes áramcsövezés elkészült; az áram jelenleg a telken rendelkezésre áll, a házba történő bekötés még nem történt meg (az új tulajdonos ütemezése szerint megoldható)
-Válaszfalak még mozgathatóak – a helyiségek elrendezése és méretezése rugalmasan, egyedi igény szerint alakítható
Választható otthonok:
A projektben négy különböző méretű és elrendezésű, de azonos felszereltségű ház közül választhatsz. Így minden élethelyzetre van ideális opció – a praktikusabb elrendezéstől a tágas családi megoldásig –, miközben a prémium műszaki tartalom minden házban egységes.
Amiért ez jó választás:
-Modern komfort és biztonság egy helyen
-Időtálló anyagok, energiatudatos megoldások
-Testreszabhatóság – a saját stílusodra formálhatod
-Csendes, rendezett lakókörnyezet Mogyoródon
Jöjjön el, nézze meg élőben, és válassza ki a kedvencét!
Foglaljon időpontot egy személyes bejárásra, mutatjuk az alaprajzokat és megbeszéljük, hogyan valósíthatjuk meg pont olyanra, amilyennek megálmodta.
Hívjon most vagy írjon üzenetet, és indulhat a saját, személyre szabott otthona története Mogyoródon!
Egyedi igényekre szabott lakáshitelekkel állunk rendelkezésére.
Bankfüggetlen Hitelcentrumunk az országban elérhető összes bank és hitelintézet ajánlatát versenyezteti az Ön számára díjmentesen.
Munkatársaink nagy szakmai tapasztalattal, teljes körű CSOK PLUSZ és OTTHON START PROGRAM ügyintézéssel várják Önt előre egyeztetett időpontban akár a normál munkaidő után is.
Mogyoródon rendezett, zárt lakóparkban
-Dupla garázzsal
-5 szobás
-3 fürdőszobás
-Terasz: 5,74 nm
-Ház méret: 128,56 nm
-Telek méret: 685,36 nm
Főbb jellemzők:
-Prémium alumínium nyílászárók – nagy üvegfelületek, kiváló hő- és hangszigetelés
-Schlotterer motoros árnyékolók – kényelmes, modern fény- és hővédelem
-Zárt villapark portaszolgálattal – rendezett környezet, ellenőrzött bejutás
-Átgondolt ikerházi elrendezés – nincs egymásra néző ablak az ikerfelek között, maximális privát szféra
-Földalatti esővíz-tartályok – fenntartható és költséghatékony vízhasználat a kertben
-Kültéri medence – közösségi vagy saját pihenőtér (projekttől függően)
-Szerkezetkész állapotból adódó szabadon alakítható belső terek és burkolatok
-Mennyezeti fűtés–hűtés előkészítés – a csőhálózat már a födémbe van vezetve a huzatmentes, hatékony hőkomfortért
-Elektromos hálózat előkészítve – a teljes áramcsövezés elkészült; az áram jelenleg a telken rendelkezésre áll, a házba történő bekötés még nem történt meg (az új tulajdonos ütemezése szerint megoldható)
-Válaszfalak még mozgathatóak – a helyiségek elrendezése és méretezése rugalmasan, egyedi igény szerint alakítható
Választható otthonok:
A projektben négy különböző méretű és elrendezésű, de azonos felszereltségű ház közül választhatsz. Így minden élethelyzetre van ideális opció – a praktikusabb elrendezéstől a tágas családi megoldásig –, miközben a prémium műszaki tartalom minden házban egységes.
Amiért ez jó választás:
-Modern komfort és biztonság egy helyen
-Időtálló anyagok, energiatudatos megoldások
-Testreszabhatóság – a saját stílusodra formálhatod
-Csendes, rendezett lakókörnyezet Mogyoródon
Jöjjön el, nézze meg élőben, és válassza ki a kedvencét!
Foglaljon időpontot egy személyes bejárásra, mutatjuk az alaprajzokat és megbeszéljük, hogyan valósíthatjuk meg pont olyanra, amilyennek megálmodta.
Hívjon most vagy írjon üzenetet, és indulhat a saját, személyre szabott otthona története Mogyoródon!
Egyedi igényekre szabott lakáshitelekkel állunk rendelkezésére.
Bankfüggetlen Hitelcentrumunk az országban elérhető összes bank és hitelintézet ajánlatát versenyezteti az Ön számára díjmentesen.
Munkatársaink nagy szakmai tapasztalattal, teljes körű CSOK PLUSZ és OTTHON START PROGRAM ügyintézéssel várják Önt előre egyeztetett időpontban akár a normál munkaidő után is.
Regisztrációs szám
P4757-1-0A-NA-002
Az ingatlan adatai
Értékesités
eladó
Jogi státusz
új
Jelleg
ház
Építési mód
ytong
Méret
128,5 m²
Bruttó méret
135,8 m²
Telek méret
685,3 m²
Terasz / erkély mérete
5,7 m²
Kert méret
400 m²
Fűtés
hőszivattyú
Belmagasság
300 cm
Lakáson belüli szintszám
2
Tájolás
Észak-nyugat
Panoráma
folyóra tóra néző panoráma
Állapot
Kiváló
Homlokzat állapota
Kiváló
Környék
csendes, zöld
Építés éve
2026
Fürdőszobák száma
3
Társaház kert
igen
Garázs
Benne van az árban
Garázs férőhely
2
Víz
Van
Csatorna
Van
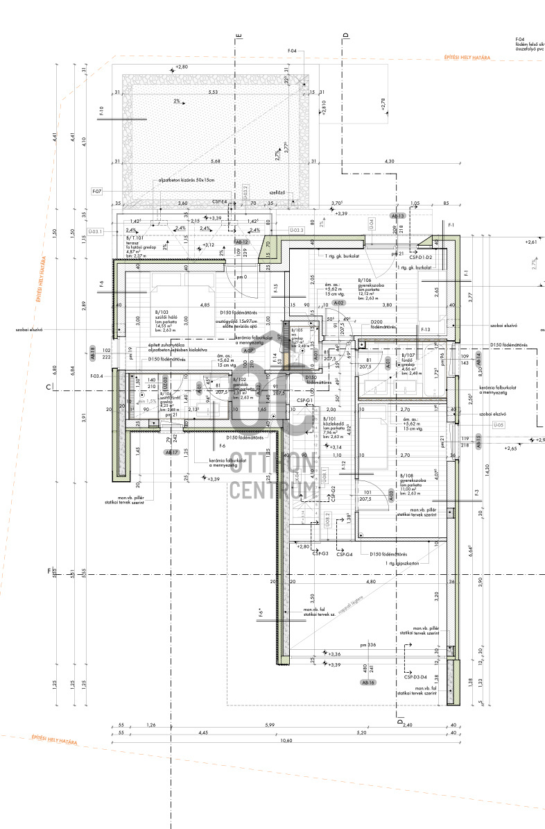
Helyiségek
előszoba
4.85 m²
kamra
1.49 m²
konyha
9.72 m²
wc
2.03 m²
nappali-étkező
33.09 m²
dolgozószoba
9.14 m²
gardrób
5.56 m²
fürdőszoba
2.82 m²
háztartási helyiség
7.52 m²
közlekedő
5.38 m²
fürdőszoba
3.93 m²
hálószoba
11.83 m²
wc
1.46 m²
hálószoba
11.67 m²
fürdőszoba
2.58 m²
gardrób
4.27 m²
hálószoba
11.22 m²
garázs
31.47 m²
terasz
5.74 m²
medencetér
31.54 m²