Eladó újépítésű lakás, P4753-1-0C-07-702
Budapest XI. kerület,

93 500 000 Ft

236 000 €

  • 44,3m²
  • 2 szoba
  • 7. emelet

Regisztrációs szám

P4753-1-0C-07-702

Az ingatlan adatai

Értékesités
eladó
Jogi státusz
új
Jelleg
lakás
Építési mód
tégla
Méret
44,3 m²
Bruttó méret
54,3 m²
Terasz / erkély mérete
9,9 m²
Fűtés
hőszivattyú
Belmagasság
270 cm
Tájolás
Kelet
Lépcsőház típusa
zárt lépcsőház
Állapot
Kiváló
Homlokzat állapota
Kiváló
Lépcsőház állapota
Kiváló
Környék
csendes, jó közlekedés, zöld, központi
Építés éve
2028
Fürdőszobák száma
1
Fekvés
kertre néző
Víz
Van
Villany
Van
Csatorna
Van
Lift
van

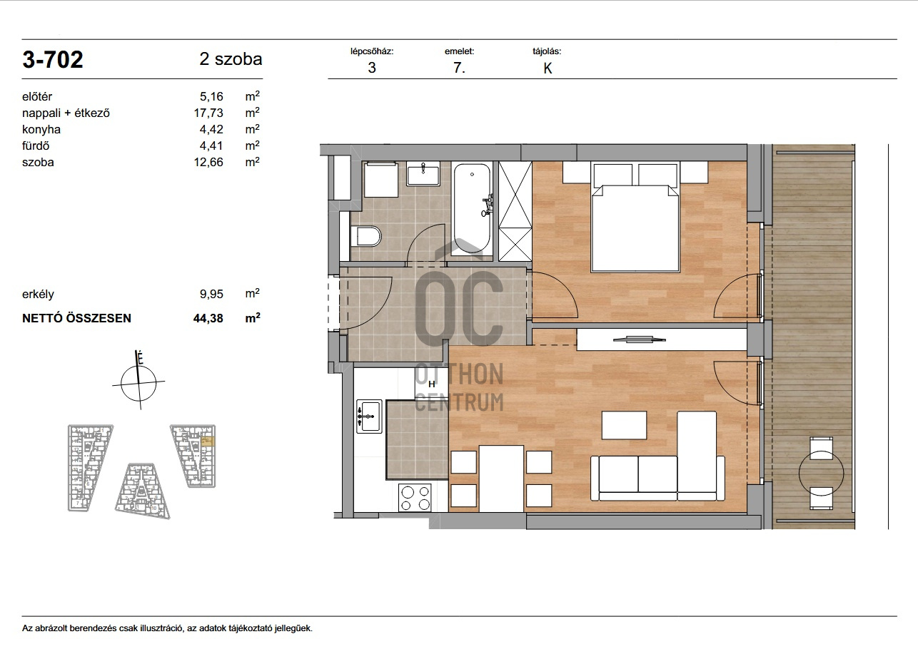
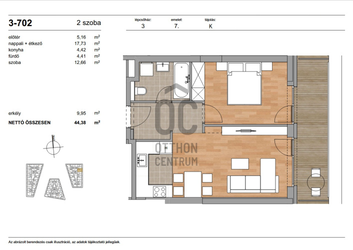
Helyiségek

előszoba
5.16 m²
nappali-étkező
17.73 m²
konyha
4.42 m²
fürdőszoba-wc
4.41 m²
szoba
12.66 m²
erkély
9.95 m²
Tóth Róbert
Tóth Róbert

Hitelszakértő

Irodánk kínálatából - III. kerület - WFC

eladó újépítésű lakás

Index image
26

eladó lakás

Index image
15

eladó lakás

Index image
23

eladó újépítésű ikerház

Index image
17

eladó újépítésű lakás

Index image
28

eladó lakás

Index image
18

kiadó lakás

Index image
36

eladó újépítésű lakás

Index image
18

eladó újépítésű lakás

Index image
18

eladó lakás

Index image
16