Elérhető Otthon Start hitellel
Eladó újépítésű ikerház,
P4743-1-0A-NA-001
Bocskaikert,
68 000 000 Ft
175 000 €
- 91m²
- 3 szoba


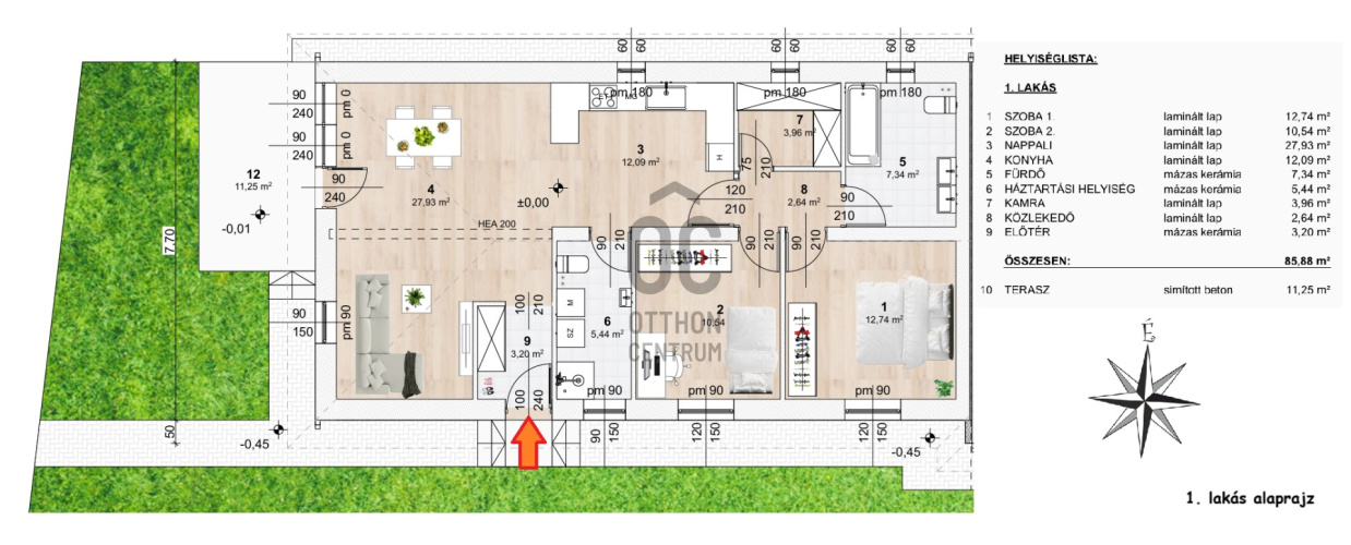
1. lakás 86 nm + 11 nm terasz:
- nappali - étkezővel, teraszkapcsolattal
- konyha
- kamra
- közlekedő
- 2 db hálószoba (11, 13 nm)
- 2 db fürdőszoba
- előszoba
- nappali - étkezővel, teraszkapcsolattal
- konyha
- kamra
- közlekedő
- 2 db hálószoba (11, 13 nm)
- 2 db fürdőszoba
- előszoba
Regisztrációs szám
P4743-1-0A-NA-001
Az ingatlan adatai
Értékesités
eladó
Jogi státusz
új
Jelleg
ház
Építési mód
tégla
Méret
91 m²
Bruttó méret
97 m²
Telek méret
730 m²
Terasz / erkély mérete
11 m²
Fűtés
hőszivattyú
Belmagasság
260 cm
Tájolás
Nyugat
Állapot
Kiváló
Homlokzat állapota
Kiváló
Környék
csendes, jó közlekedés
Építés éve
2026
Fürdőszobák száma
2
Víz
Van
Villany
Van
Csatorna
Van
Helyiségek
nappali-étkező
28 m²
konyha
12 m²
kamra
4 m²
szoba
13 m²
szoba
11 m²
fürdőszoba-wc
7 m²
fürdőszoba-wc
5 m²
közlekedő
3 m²
előszoba
3 m²
terasz
11 m²

Czellér András
Hitelszakértő