66 900 000 Ft
173 000 €
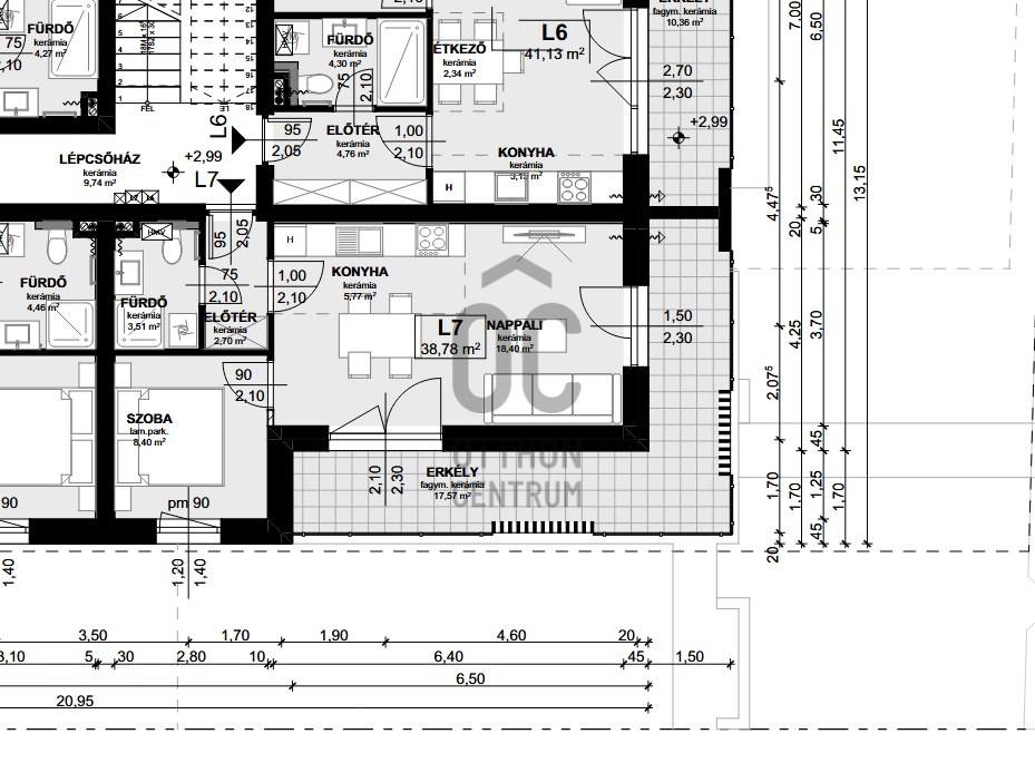
- 38,8m²
- 2 szoba
- 1. emelet






Regisztrációs szám
P4740-1-0A-01-007
Az ingatlan adatai
Értékesités
eladó
Jogi státusz
új
Jelleg
lakás
Építési mód
tégla
Méret
38,8 m²
Bruttó méret
47,5 m²
Terasz / erkély mérete
17,5 m²
Kert méret
100 m²
Fűtés
values.realestate.futes.27
Belmagasság
270 cm
Tájolás
Dél-nyugat
Panoráma
Zöldre néző panoráma
Lépcsőház típusa
zárt lépcsőház
Állapot
Kiváló
Homlokzat állapota
Kiváló
Lépcsőház állapota
Kiváló
Környék
csendes
Építés éve
2027
Fürdőszobák száma
1
Fekvés
kertre néző
Víz
Van
Villany
Van
Csatorna
Van
Kertkapcsolatos
igen
Tároló
Külön vásárolható
Vízpart távolsága
500 méterre
Helyiségek
nappali-konyha
28 m²
szoba
11 m²
fürdőszoba-wc
4 m²