103 896 450 Ft
268 000 €
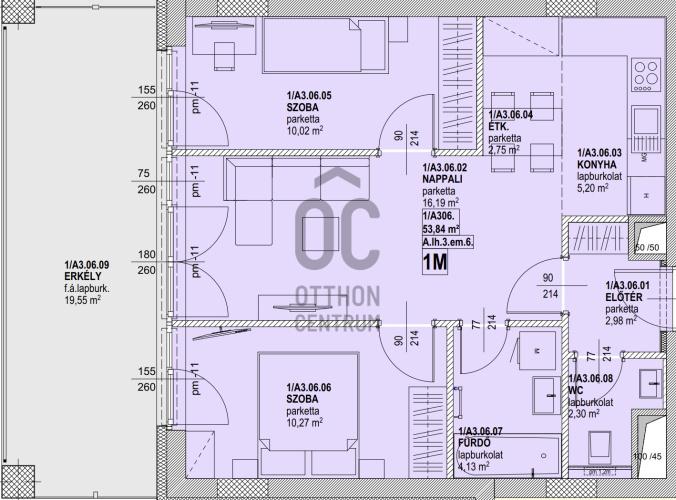
- 54,2m²
- 3 szoba
- 3. emelet

Regisztrációs szám
P4724-1-0A-03-306
Az ingatlan adatai
Értékesités
eladó
Jogi státusz
új
Jelleg
lakás
Építési mód
tégla
Méret
54,2 m²
Bruttó méret
63,9 m²
Terasz / erkély mérete
19,5 m²
Fűtés
hőszivattyú
Belmagasság
265 cm
Tájolás
Dél-nyugat
Lépcsőház típusa
zárt lépcsőház
Állapot
Kiváló
Homlokzat állapota
Kiváló
Lépcsőház állapota
Kiváló
Építés éve
2027
Fürdőszobák száma
1
Fekvés
udvari
Garázs
Külön vásárolható
Víz
Van
Villany
Van
Csatorna
Van
Lift
van
Tároló
Külön vásárolható
Helyiségek
nappali-konyha
21.4 m²
hálószoba
10.27 m²
hálószoba
10.02 m²
fürdőszoba
4.13 m²

Berkes-Jakus Kinga
Hitelszakértő