118 900 000 Ft
306 000 €
- 96,6m²
- 3 szoba
- földszint

Eladó prémium minőségű, 4 lakásos társasház, Hévíz
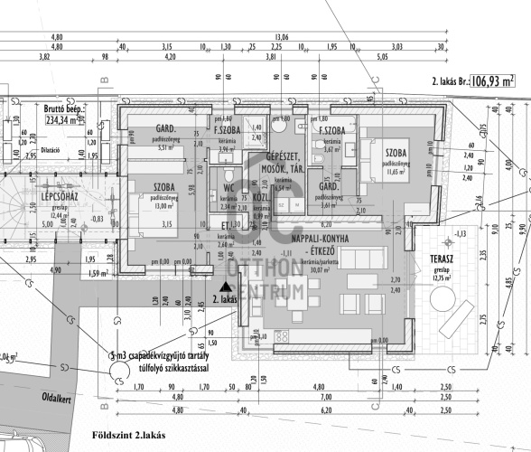
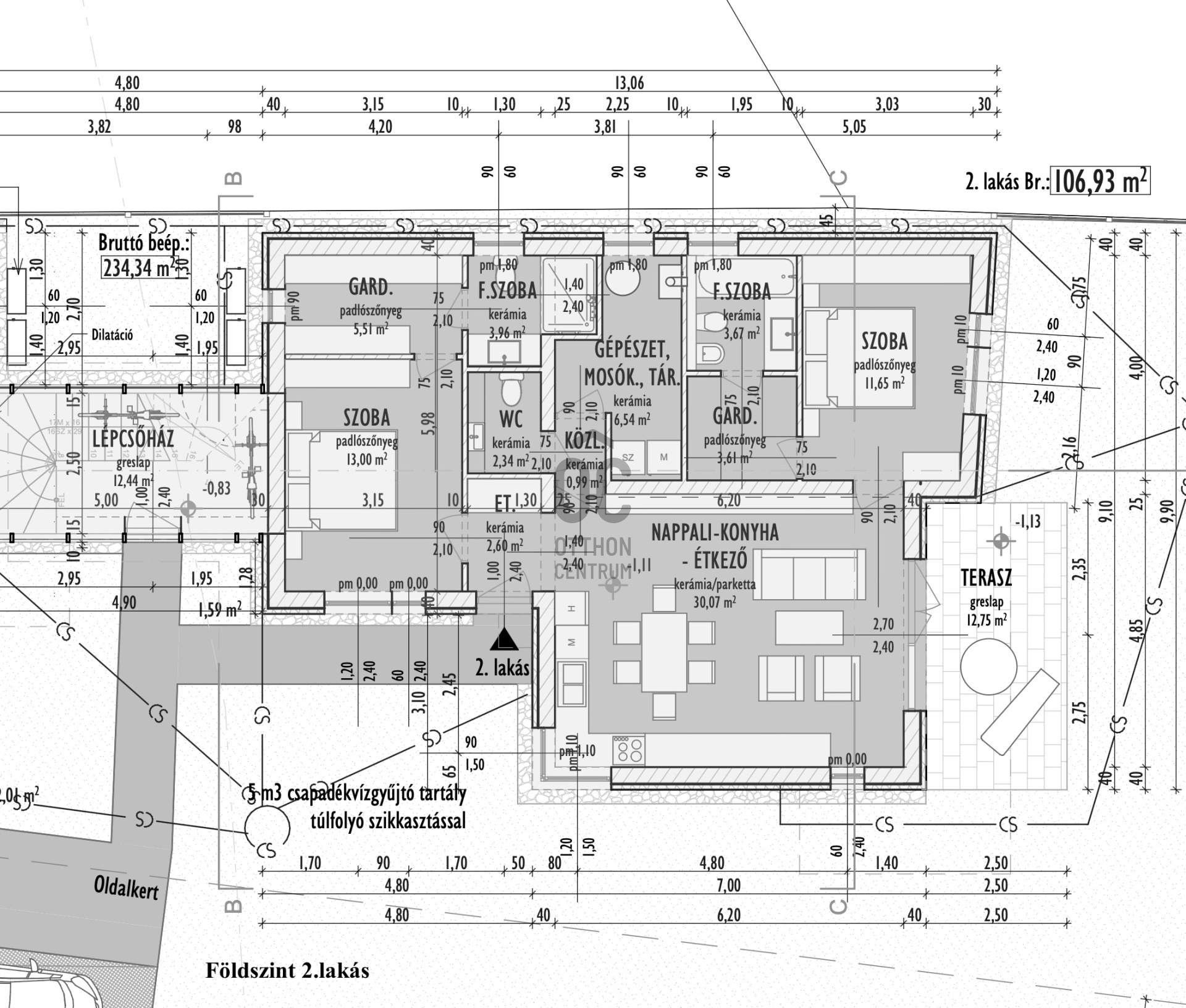
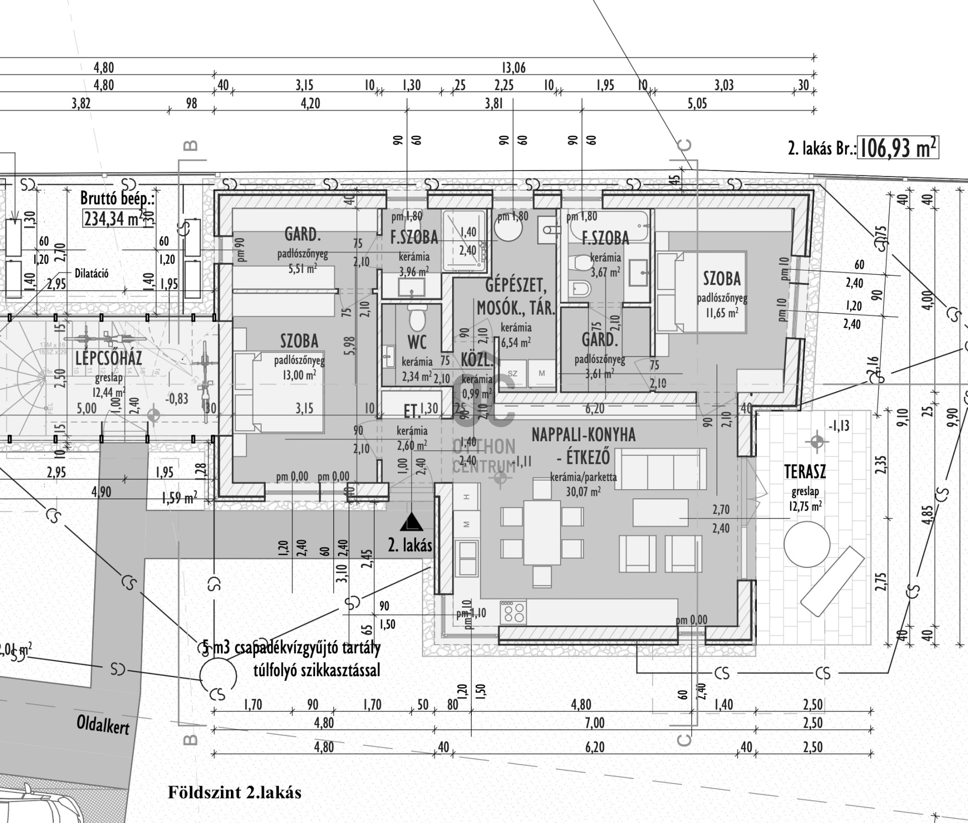
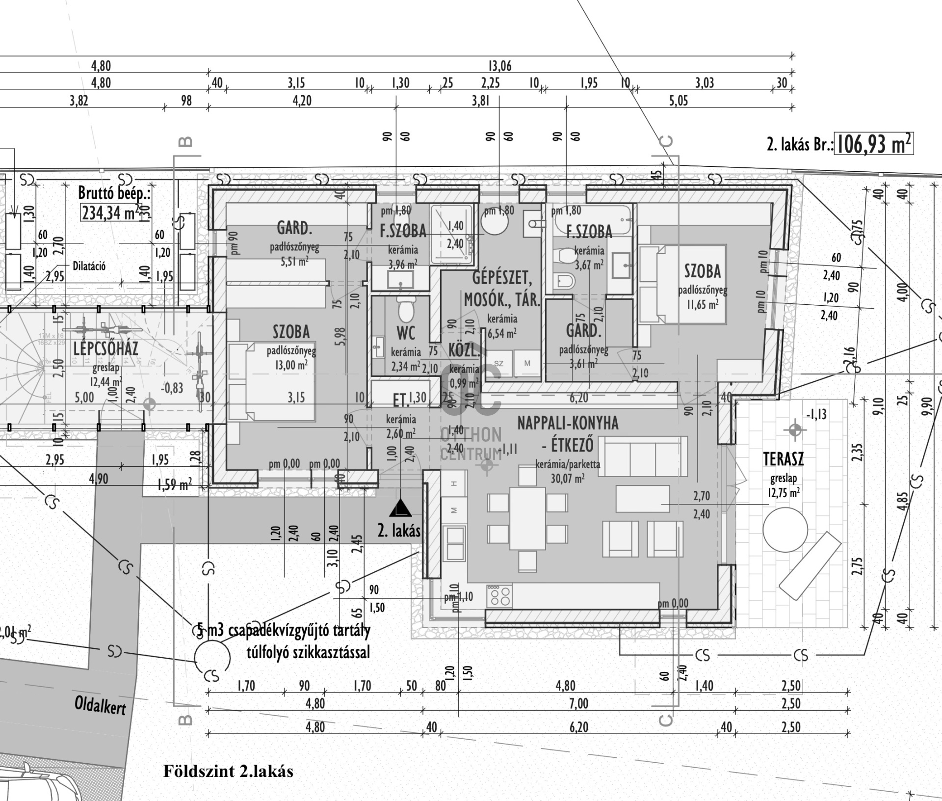
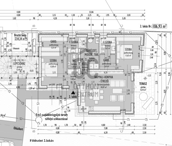
FÖLDSZINT 2-ES LAKÁS
- 150 m2 kertkapcsolat
- 83,94 m2 lakótér + 12,75 m2 terasz
- Helyiségek
előszoba : 2.6 m²
szoba: 13 m²
gardrób: 5.51 m²
fürdőszoba-wc : 3.96 m²
közlekedő: 0.99 m²
wc-kézmosó: 2.34 m²
mosókonyha: 6.54 m²
nappali-konyha: 30.07 m²
szoba: 11.65 m²
gardrób : 3.61 m²
fürdőszoba-wc : 3.67 m²
- 150 m2 kertkapcsolat
- 83,94 m2 lakótér + 12,75 m2 terasz
- Helyiségek
előszoba : 2.6 m²
szoba: 13 m²
gardrób: 5.51 m²
fürdőszoba-wc : 3.96 m²
közlekedő: 0.99 m²
wc-kézmosó: 2.34 m²
mosókonyha: 6.54 m²
nappali-konyha: 30.07 m²
szoba: 11.65 m²
gardrób : 3.61 m²
fürdőszoba-wc : 3.67 m²
Regisztrációs szám
P4703-1-0A-FZ-002
Az ingatlan adatai
Értékesités
eladó
Jogi státusz
új
Jelleg
lakás
Építési mód
tégla
Méret
96,6 m²
Bruttó méret
106,9 m²
Terasz / erkély mérete
12,7 m²
Fűtés
values.realestate.futes.27
Belmagasság
270 cm
Lakáson belüli szintszám
1
Tájolás
Dél-nyugat
Lépcsőház típusa
zárt lépcsőház
Állapot
Kiváló
Homlokzat állapota
Kiváló
Lépcsőház állapota
Kiváló
Építés éve
2025
Fürdőszobák száma
2
Fekvés
kertre néző
Víz
Van
Gáz
Utcán
Villany
Van
Csatorna
Van
Kertkapcsolatos
igen
Helyiségek
előszoba
2.6 m²
szoba
13 m²
gardrób
5.51 m²
fürdőszoba-wc
3.96 m²
közlekedő
0.99 m²
wc-kézmosó
2.34 m²
mosókonyha
6.54 m²
nappali-konyha
30.07 m²
szoba
11.65 m²
gardrób
3.61 m²
fürdőszoba-wc
3.67 m²
terasz
12.75 m²