80 526 000 Ft
208 000 €
- 50,7m²
- 2 szoba
- 1. emelet




Társasház a Belváros szívében
Debrecen abszolút Belvárosában, a Nagytemplomhoz közeli részén kerül kivitelezésre ez az egyedi tervezésű, 17 lakásos, liftes társasház.
Válasszon a piacon legkeresettebb méretű,még elérhető 35-51 nm-es, loggiás, nappali +1 vagy 2 szobás lakáskínálatból!
A 4 emeletes társasház két utcáról is megközelíthető, a lakások kiváló elrendezésűek.
Gépkocsi beállók ( 10 Mft/db) a földszinten és a -1 szinten találhatók.
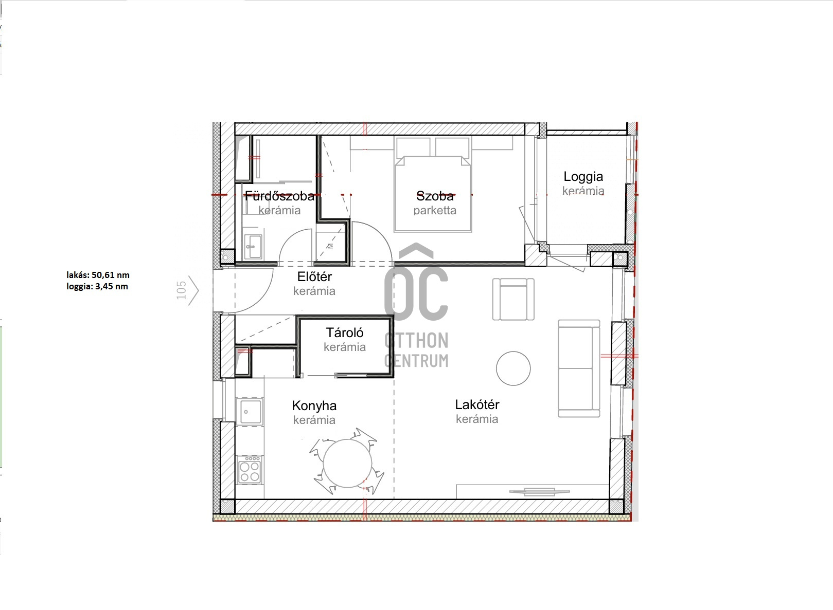
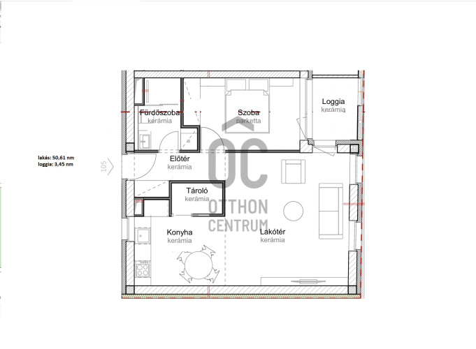
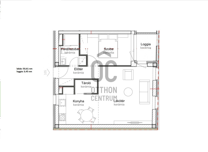
Ez az 1. emeleti lakás 50,74 nm-es, nappali-étkező-konyha +1 szobás, 3,68 nm-es loggiával. Nappali+ 2 szobássá alakítható.
Műszaki adatok:
- teherhordó falak Porotherm 30 N+F
- belső térelválasztó falak gipszkartonból
- hőszigetelése 15 cm THERMODAM rendszer, 1,5 cm nemes vakolattal
- házközponti hőszivattyús fűtés, minden helyiségben padlófűtés
- lakásonként egyedi hőmennyiség mérő
- hűtés: hőszivattyús rendszerrel, vagy AUX hőszivattyús 2,7 kw-os klímával
- műanyag nyílászárók 3 rétegű hőszigetelt üvegezéssel
- beépített elektromos, távirányítós redőnyök
- 90X200-as üvegfalú zuhanyózó
A belvárosban található ingatlan pár perc sétára van a Nagytemplomtól, a Piactól és a Bevásárló központoktól.
Válasszon a piacon legkeresettebb méretű,még elérhető 35-51 nm-es, loggiás, nappali +1 vagy 2 szobás lakáskínálatból!
A 4 emeletes társasház két utcáról is megközelíthető, a lakások kiváló elrendezésűek.
Gépkocsi beállók ( 10 Mft/db) a földszinten és a -1 szinten találhatók.
Ez az 1. emeleti lakás 50,74 nm-es, nappali-étkező-konyha +1 szobás, 3,68 nm-es loggiával. Nappali+ 2 szobássá alakítható.
Műszaki adatok:
- teherhordó falak Porotherm 30 N+F
- belső térelválasztó falak gipszkartonból
- hőszigetelése 15 cm THERMODAM rendszer, 1,5 cm nemes vakolattal
- házközponti hőszivattyús fűtés, minden helyiségben padlófűtés
- lakásonként egyedi hőmennyiség mérő
- hűtés: hőszivattyús rendszerrel, vagy AUX hőszivattyús 2,7 kw-os klímával
- műanyag nyílászárók 3 rétegű hőszigetelt üvegezéssel
- beépített elektromos, távirányítós redőnyök
- 90X200-as üvegfalú zuhanyózó
A belvárosban található ingatlan pár perc sétára van a Nagytemplomtól, a Piactól és a Bevásárló központoktól.
Regisztrációs szám
P4691-1-01-01-104
Az ingatlan adatai
Értékesités
eladó
Jogi státusz
új
Jelleg
lakás
Építési mód
tégla
Méret
50,7 m²
Bruttó méret
55 m²
Terasz / erkély mérete
3,6 m²
Fűtés
values.realestate.futes.27
Belmagasság
265 cm
Tájolás
Kelet
Lépcsőház típusa
függőfolyosó
Állapot
Kiváló
Homlokzat állapota
Kiváló
Lépcsőház állapota
Kiváló
Építés éve
2025
Fürdőszobák száma
1
Fekvés
utcai
Garázs
Külön vásárolható
Víz
Van
Villany
Van
Csatorna
Van
Lift
van
Helyiségek
nappali-étkező
21.43 m²
konyha
8.72 m²
szoba
10.37 m²
közlekedő
4.02 m²
fürdőszoba-wc
4.2 m²
tároló
2 m²

Czellér András
Hitelszakértő