142 084 492 Ft
366 000 €
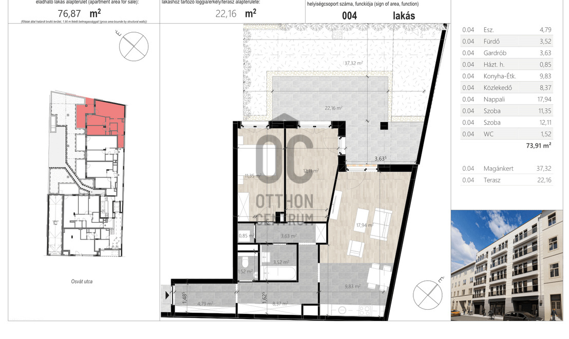
- 74m²
- 3 szoba
- földszint

Kiváló lokáció, értékálló befektetés!
Az ingatlan a földszinten található. Kertre néző. Különlegessége, hogy a lakáshoz tartozik egy 37 m2-es magánkert.
Regisztrációs szám
P4648-1-0A-FZ-004
Az ingatlan adatai
Értékesités
eladó
Jogi státusz
új
Jelleg
lakás
Építési mód
tégla
Méret
74 m²
Bruttó méret
87,1 m²
Terasz / erkély mérete
22 m²
Fűtés
hőszivattyú
Belmagasság
260 cm
Tájolás
Észak-nyugat
Lépcsőház típusa
zárt lépcsőház
Állapot
Kiváló
Homlokzat állapota
Kiváló
Lépcsőház állapota
Kiváló
Építés éve
2026
Fürdőszobák száma
1
Fekvés
kertre néző
Garázs
Külön vásárolható
Víz
Van
Villany
Van
Csatorna
Van
Lift
van
Kertkapcsolatos
igen
Helyiségek
nappali
0 m²
konyha-étkező
0 m²
előszoba
0 m²
gardrób
0 m²
háztartási helyiség
0 m²
közlekedő
0 m²
fürdőszoba
0 m²
wc-kézmosó
0 m²
hálószoba
0 m²
hálószoba
0 m²
terasz
0 m²

Ruczek Krisztina
Hitelszakértő