102 784 500 Ft
265 000 €
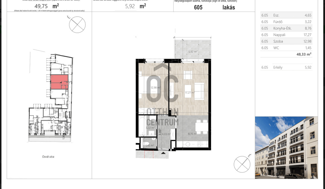
- 48m²
- 2 szoba
- 6. emelet

Kiváló lokáció, értékálló befektetés!
Az ingatlan a hatodik emeleten található. Kertre néző.
Regisztrációs szám
P4648-1-0A-06-005
Az ingatlan adatai
Értékesités
eladó
Jogi státusz
új
Jelleg
lakás
Építési mód
tégla
Méret
48 m²
Bruttó méret
52,7 m²
Terasz / erkély mérete
6 m²
Fűtés
hőszivattyú
Belmagasság
260 cm
Tájolás
Észak-nyugat
Lépcsőház típusa
zárt lépcsőház
Állapot
Kiváló
Homlokzat állapota
Kiváló
Lépcsőház állapota
Kiváló
Építés éve
2026
Fürdőszobák száma
1
Fekvés
kertre néző
Garázs
Külön vásárolható
Víz
Van
Villany
Van
Csatorna
Van
Lift
van
Helyiségek
nappali
0 m²
konyha-étkező
0 m²
előszoba
0 m²
hálószoba
0 m²
fürdőszoba
0 m²
wc-kézmosó
0 m²
erkély
0 m²

Ruczek Krisztina
Hitelszakértő