139 159 000 Ft
359 000 €
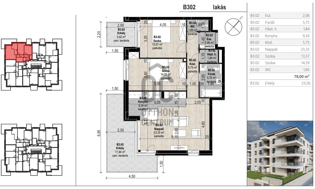
- 78m²
- 3 szoba
- 3. emelet
Igényes otthonok Zuglóban
Igényes otthonok Zuglóban
Zugló új városnegyedének központjában kimagasló műszaki felszereltséggel rendelkező lakások!
A társasház 2 épületből áll, 22 + 22 lakásból. Kis létszámának köszönhetően nagyon családias és kellemes. A lakásokhoz mélygarázsban elhelyezett tárolók és parkolóhelyek tartoznak.
- liftes társasház 3. emeletén 3 szobás ingatlan
- 78 nm alapterületű, 23,56 terasszal
- 3 szobás (amerikai konyhás nappali 33 nm, szobák 14,58 nm, szoba 13,57 nm)
- a tulajdonosok kényelmét biztosítja a háztartási helyiség vagy gardrób helyiség, valamint a 2 mellékhelyiség
- két terasszal rendelkezik (17,94 nm + 5,62 nm)
- fűtés, hűtés: levegős hőszivattyús rendszert használ, mennyezeti fűtés-hűtés kialakítással
- a lakás belső ajtókkal, burkolatokkal, szaniterekkel kerül átadásra
- gépkocsi beálló külön vásárolható
- 3 rétegű hőszigetelő üvegezéssel, vakolható rejtett redőnydobozzal, elektromos alumínium redőnnyel-, távirányítóval.
További információval, megtekintéssel kapcsolatban keressen bizalommal!
Zugló új városnegyedének központjában kimagasló műszaki felszereltséggel rendelkező lakások!
A társasház 2 épületből áll, 22 + 22 lakásból. Kis létszámának köszönhetően nagyon családias és kellemes. A lakásokhoz mélygarázsban elhelyezett tárolók és parkolóhelyek tartoznak.
- liftes társasház 3. emeletén 3 szobás ingatlan
- 78 nm alapterületű, 23,56 terasszal
- 3 szobás (amerikai konyhás nappali 33 nm, szobák 14,58 nm, szoba 13,57 nm)
- a tulajdonosok kényelmét biztosítja a háztartási helyiség vagy gardrób helyiség, valamint a 2 mellékhelyiség
- két terasszal rendelkezik (17,94 nm + 5,62 nm)
- fűtés, hűtés: levegős hőszivattyús rendszert használ, mennyezeti fűtés-hűtés kialakítással
- a lakás belső ajtókkal, burkolatokkal, szaniterekkel kerül átadásra
- gépkocsi beálló külön vásárolható
- 3 rétegű hőszigetelő üvegezéssel, vakolható rejtett redőnydobozzal, elektromos alumínium redőnnyel-, távirányítóval.
További információval, megtekintéssel kapcsolatban keressen bizalommal!
Regisztrációs szám
P4616-1-0B-03-302
Az ingatlan adatai
Értékesités
eladó
Jogi státusz
új
Jelleg
lakás
Építési mód
tégla
Méret
78 m²
Bruttó méret
89,7 m²
Terasz / erkély mérete
23,5 m²
Fűtés
hőszivattyú
Belmagasság
260 cm
Lakáson belüli szintszám
1
Tájolás
Dél
Lépcsőház típusa
zárt lépcsőház
Állapot
Kiváló
Homlokzat állapota
Kiváló
Lépcsőház állapota
Kiváló
Környék
csendes, jó közlekedés, zöld, központi
Építés éve
2024
Fürdőszobák száma
1
Fekvés
kertre néző
Társaház kert
igen
Garázs
Külön vásárolható
Víz
Van
Villany
Van
Csatorna
Van
Lift
van
Tároló
Önálló
Helyiségek
előszoba
2.06 m²
nappali-konyha
32.59 m²
szoba
14.59 m²
szoba
13.57 m²
közlekedő
5.75 m²
fürdőszoba-wc
5.75 m²
wc-kézmosó
1.85 m²
háztartási helyiség
1.84 m²
terasz
17.94 m²
terasz
5.62 m²
Berkes-Jakus Kinga
Hitelszakértő