Eladó lakás, P4562-1-01-02-207
Budapest VI. kerület, Külső VI.

125 244 000 Ft

325 000 €

  • 74,5m²
  • 3 szoba
  • 2. emelet

Купите квартиру своей мечты или инвестируйте в эту особенную недвижимость в VI районе Будапешта, где прекрасно сочетаются динамичность и комфорт центра города!

Ingatlan jellemzői:
- 3 szobás lakás
- 73,88m²
- Városi panorámás kilátás
- Minden szoba külön nyílik
- Az emeletek lifttel megközelíthetőek.

Regisztrációs szám

P4562-1-01-02-207

Az ingatlan adatai

Értékesités
eladó
Jogi státusz
használt
Jelleg
lakás
Építési mód
tégla
Méret
74,5 m²
Bruttó méret
74,5 m²
Fűtés
központi fűtés
Belmagasság
250 cm
Tájolás
Dél-kelet
Lépcsőház típusa
zárt lépcsőház
Állapot
Kiváló
Homlokzat állapota
Kiváló
Lépcsőház állapota
Kiváló
Építés éve
2024
Fürdőszobák száma
1
Fekvés
utcai
Víz
Van
Gáz
Van
Villany
Van
Csatorna
Van
Lift
van

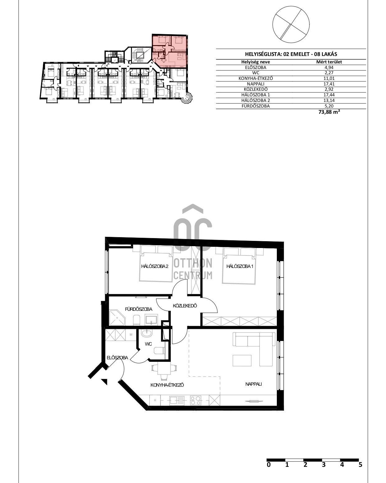
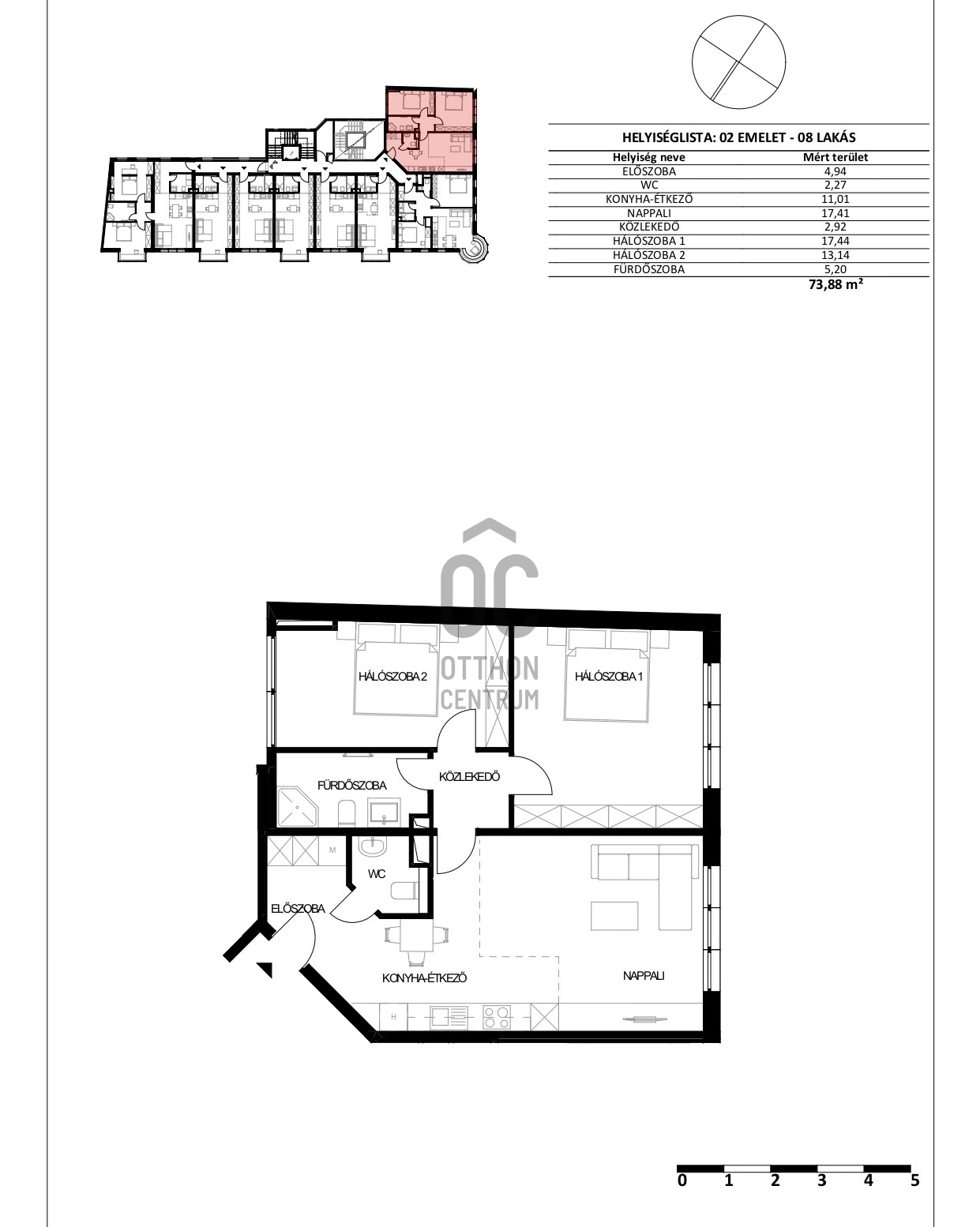
Helyiségek

előszoba
4.94 m²
wc-kézmosó
2.27 m²
konyha-étkező
11.01 m²
nappali
17.41 m²
közlekedő
2.92 m²
hálószoba
17.44 m²
hálószoba
13.14 m²
fürdőszoba
5.2 m²
Ruczek Krisztina
Ruczek Krisztina

Hitelszakértő

Irodánk kínálatából - V. kerület - Hild tér

for sale apartment

Index image
30

for sale apartment

Index image
12

for sale apartment

Index image
23

for sale apartment

Index image
34

for sale apartment

Index image
19

for sale apartment

Index image
data_sheet.details.realestate.section.main.otthonstart_flag.label
15

for sale apartment

Index image
32