Eladó lakás, P4562-1-01-01-106
Budapest VI. kerület, Külső VI.

101 371 200 Ft

263 000 €

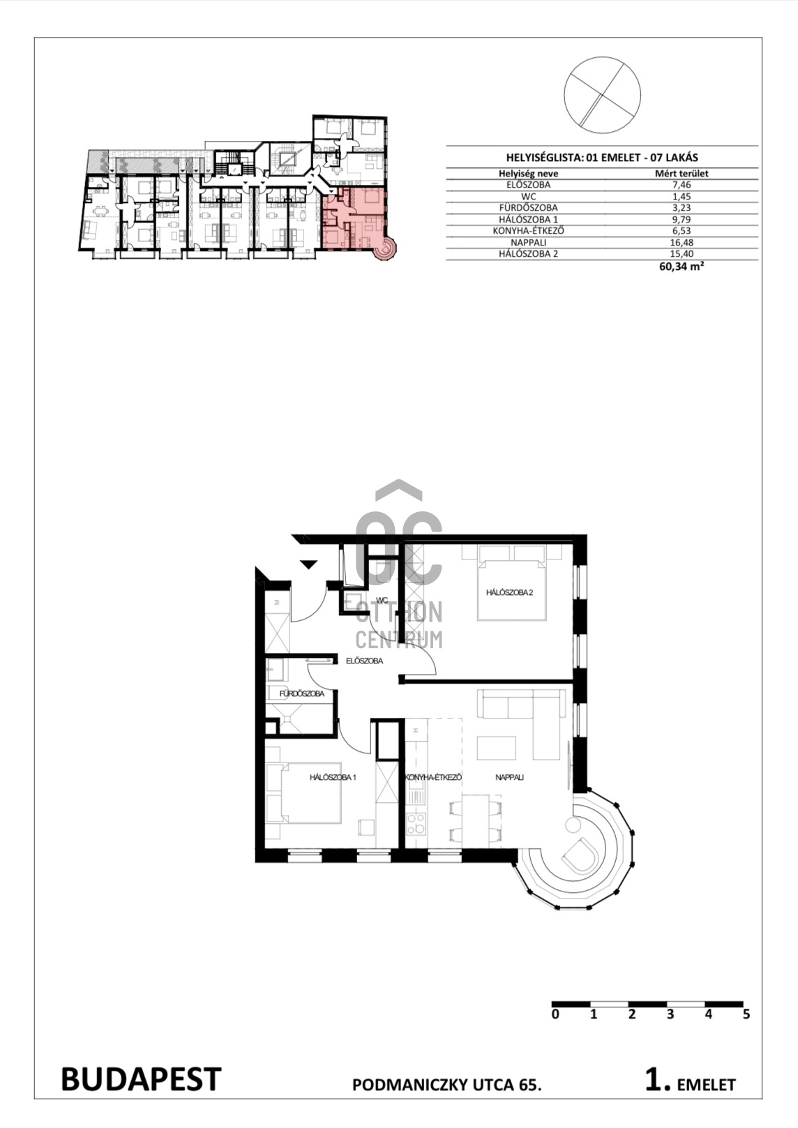
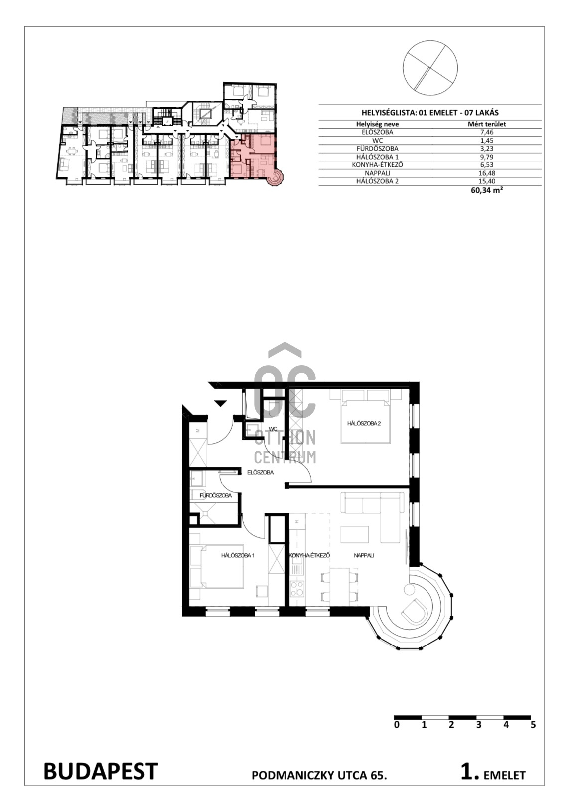
  • 60,3m²
  • 3 szoba
  • 1. emelet

Купите квартиру своей мечты или инвестируйте в эту особенную недвижимость в VI районе Будапешта, где прекрасно сочетаются динамичность и комфорт центра города!

Ingatlan jellemzői:
- 3 szobás lakás
- 60,34m²
- Bájos rizalit a nappaliban
- Városi panorámás kilátás

Regisztrációs szám

P4562-1-01-01-106

Az ingatlan adatai

Értékesités
eladó
Jogi státusz
használt
Jelleg
lakás
Építési mód
tégla
Méret
60,3 m²
Bruttó méret
60,3 m²
Fűtés
központi fűtés
Belmagasság
250 cm
Tájolás
Dél-kelet
Lépcsőház típusa
zárt lépcsőház
Állapot
Kiváló
Homlokzat állapota
Kiváló
Lépcsőház állapota
Kiváló
Építés éve
2025
Fürdőszobák száma
1
Fekvés
utcai
Víz
Van
Gáz
Van
Villany
Van
Csatorna
Van
Lift
van

Helyiségek

előszoba
7.47 m²
wc
1.45 m²
fürdőszoba-wc
3.57 m²
hálószoba
10.13 m²
konyha-étkező
6.53 m²
nappali
16.69 m²
hálószoba
15.58 m²
Ruczek Krisztina
Ruczek Krisztina

Hitelszakértő

Irodánk kínálatából - V. kerület - Hild tér

for sale apartment

Index image
30

for sale apartment

Index image
12

for sale apartment

Index image
23

for sale apartment

Index image
34

for sale apartment

Index image
19

for sale apartment

Index image
data_sheet.details.realestate.section.main.otthonstart_flag.label
15

for sale apartment

Index image
32