Elérhető Otthon Start hitellel
Eladó újépítésű lakás,
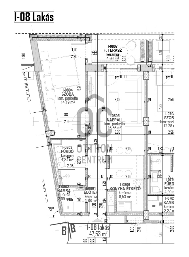
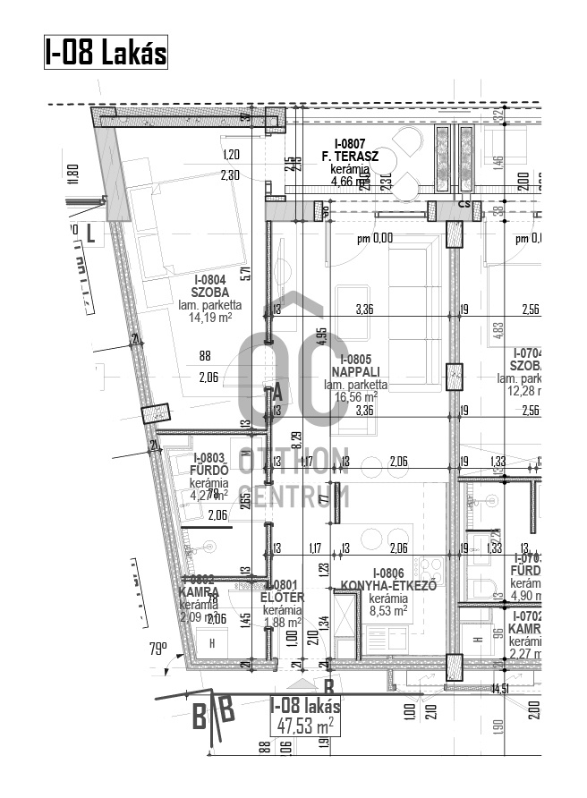
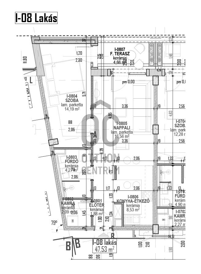
P4561-1-0A-01-008
Hajdúszoboszló, Fürdőnegyed
59 000 000 Ft
152 000 €
- 47,5m²
- 2 szoba
- 1. emelet














Hajdúszoboszlón prémium társasházi lakások eladók.
Ez az ingatlan hirdetés kifejezetten befektetők számára készült, akik olyan különleges lehetőséget keresnek, amely nemcsak lakóhelyet, hanem értékálló befektetést is jelent. Bemutatjuk neked ezt az új, első emeleti prémium kivitelezésű lakást, amely 47,53 nm alapterületű, és két tágas szobával rendelkezik. Az ingatlan ideális választás lehet akár saját otthonodnak, akár bérbeadásra szánt befektetésnek. A lakásban egy modern amerikai konyha található, amely a tágas nappalival egy légtérben helyezkedik el, így a közös pillanatok még élvezetesebbé válhatnak. A fürdőszoba egyedi tervezésű, és minden igényt kielégít, a terasz 4,66 nm-es, ami lehetőséget ad arra, hogy a szabadban is élvezhesd a napfényes pillanatokat. A lakás panorámás kilátása igazi különlegességet jelent, hogy a természet közelségét is élvezd. A fürdő közelsége miatt, ideális választás családok számára, de a befektetők is megtalálják a számításaikat. Az ingatlan környékén számos bolt, étterem és szórakozási lehetőség vár rád, ami még vonzóbbá teszi a lakóhelyet. A megújuló fűtésrendszer nemcsak környezetbarát megoldás, hanem hosszú távon jelentős költségmegtakarítást is biztosít. A kiváló minőségű anyagok és a prémium kivitelezés garantálja, hogy ez a lakás nemcsak otthon, hanem egy értékálló befektetés is lesz számodra. Ha felkeltette az érdeklődésedet ez az exkluzív ingatlan, ne habozz kérdezni! Szívesen válaszolok minden kérdésedre, és segítek, hogy megtaláld a számodra legmegfelelőbb megoldást. Az ingatlanpiac dinamikusan változik, és ez a lehetőség nem tart örökké. Bízz bennem, és tedd meg az első lépést a jövőd felé!
Regisztrációs szám
P4561-1-0A-01-008
Az ingatlan adatai
Értékesités
eladó
Jogi státusz
új
Jelleg
lakás
Építési mód
ytong
Méret
47,5 m²
Bruttó méret
50 m²
Terasz / erkély mérete
7,6 m²
Fűtés
megújuló
Belmagasság
270 cm
Lakáson belüli szintszám
4
Tájolás
Dél-kelet
Panoráma
városi panoráma
Lépcsőház típusa
zárt lépcsőház
Állapot
Kiváló
Homlokzat állapota
Kiváló
Lépcsőház állapota
Kiváló
Környék
jó közlekedés, zöld, központi
Építés éve
2024
Fürdőszobák száma
1
Fekvés
utcai
Garázs
Külön vásárolható
Víz
Van
Gáz
Van
Villany
Van
Csatorna
Van
Lift
van
Kertkapcsolatos
igen
Helyiségek
nappali
16.56 m²
konyha-étkező
8.53 m²
szoba
14.19 m²
fürdőszoba
4.27 m²

Katonáné Boruzs Ildikó
Hitelszakértő