Elérhető Otthon Start hitellel
Eladó újépítésű ikerház,
P4551-1-0A-FZ-002
Bocskaikert
87 000 000 Ft
224 000 €
- 104m²
- 4 szoba
- földszint





















Bocskaikert szívében 4X2 lakásos ikerház projekt épül, nappali + 3 szobás lakóegységekkel, saját telekrésszel!
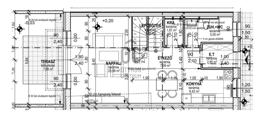
Bocskaikert legértékesebb részén, a központban épül 4X2 db ikerház, a legmodernebb műszaki követelményeknek megfelelően. Az ingatlanok nettó alapterülete 104-105 m2, nappali-amerikai konyha + 3 szobás kivitelben, ahol a földszinten zuhanyzós fürdőszoba és WC, míg az emeleten káddal szerelt fürdő és WC szolgálja a kényelmet. A kondenzációs kazán és a három rétegű hőszigetelt műanyag nyílászárók, kiegészítve a 15 cm-es hőszigeteléssel garantálják a minimális gázfogyasztást. A lakásonkénti 2 db hűtő-fűtő klíma minden évszakban kiválóan használható. A hidegburkolattal ellátott helyiségekben padlófűtés, a szobákban laminált parketta burkolat kerül beépítésre. A burkolatok, szaniterek, belső nyílászárók a kivitelezés bizonyos szakaszáig választhatók, a műszaki tartalomban szereplő árak szerint.
A kivitelezés folyamatos, használatba vételi engedély 2025. második negyedév végére várható.
A 8 lakóegység mindegyike más-más telekmérettel bír, ezért az árakban néhány millió forint eltérés van. A szélső ingatlanokhoz nagyobb telek tartozik, magasabb áron.
Az elhelyezkedés egyedi, mivel Bocskaikert legértékesebb területén épülnek a házak, ebből fakadóan értékállóak is.
Debrecen 10 perces autózással elérhető, akár a 4. számú főúton, akár az M35-ös felé vezető elkerülő úton (Józsa-BMW irányába), ezért minden debreceni célpont könnyen és gyorsan megközelíthető.
Hitelügyintézés bankfüggetlenül és díjtalanul irodánkban elérhető!
Részletes műszaki tartalommal, megtekintéssel kapcsolatban várjuk hívását a hét minden napján!
A kivitelezés folyamatos, használatba vételi engedély 2025. második negyedév végére várható.
A 8 lakóegység mindegyike más-más telekmérettel bír, ezért az árakban néhány millió forint eltérés van. A szélső ingatlanokhoz nagyobb telek tartozik, magasabb áron.
Az elhelyezkedés egyedi, mivel Bocskaikert legértékesebb területén épülnek a házak, ebből fakadóan értékállóak is.
Debrecen 10 perces autózással elérhető, akár a 4. számú főúton, akár az M35-ös felé vezető elkerülő úton (Józsa-BMW irányába), ezért minden debreceni célpont könnyen és gyorsan megközelíthető.
Hitelügyintézés bankfüggetlenül és díjtalanul irodánkban elérhető!
Részletes műszaki tartalommal, megtekintéssel kapcsolatban várjuk hívását a hét minden napján!
Regisztrációs szám
P4551-1-0A-FZ-002
Az ingatlan adatai
Értékesités
eladó
Jogi státusz
új
Jelleg
ház
Építési mód
tégla
Méret
104 m²
Bruttó méret
116 m²
Telek méret
158 m²
Terasz / erkély mérete
12 m²
Fűtés
Gáz cirkó
Belmagasság
270 cm
Lakáson belüli szintszám
2
Tájolás
Dél-nyugat
Állapot
Kiváló
Homlokzat állapota
Kiváló
Építés éve
2025
Fürdőszobák száma
2
Víz
Van
Gáz
Van
Villany
Van
Csatorna
Van
Helyiségek
előszoba
4 m²
konyha-étkező
15 m²
nappali
24 m²
fürdőszoba-wc
3 m²
lépcsőház
3 m²
kamra
2 m²
közlekedő
9 m²
fürdőszoba
6 m²
szoba
12 m²
szoba
10 m²
szoba
9 m²
erkély
6 m²
terasz
8 m²

Plébán László
Hitelszakértő