Eladó újépítésű lakás, P4544-1-01-04-007
Budapest VI. kerület, Belső VI.

170 200 000 Ft

446 000 €

  • 92m²
  • 4 szoba
  • 4. emelet

LUXUS TETŐTÉRI ÚJÉPÍTÉSŰ LAKÁSOK A BELVÁROSBAN

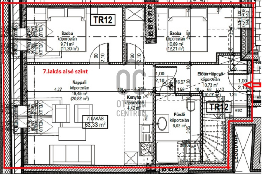
7. LAKÁS,:
KÉT SZINTES, UTCAI NÉZET, 92 NM NETTO ÉS 113 NM BRUTTO LAKÁS MÉRET
AMERIKAI KONYHÁS NAPPALI, 4 SZOBA + 10 NM-ES GALÉRIA, MELY AKÁR KIS NAPPALIKÉNT IS MŰKÖDHET, 2 FÜRDŐSZOBA, 9 NM-ES TETŐTERASZ,

Regisztrációs szám

P4544-1-01-04-007

Az ingatlan adatai

Értékesités
eladó
Jogi státusz
új
Jelleg
lakás
Építési mód
ytong
Méret
92 m²
Bruttó méret
113 m²
Terasz / erkély mérete
9 m²
Fűtés
hőszivattyú
Belmagasság
280 cm
Lakáson belüli szintszám
2
Tájolás
Dél-kelet
Lépcsőház típusa
függőfolyosó
Állapot
Kiváló
Homlokzat állapota
Kiváló
Lépcsőház állapota
Kiváló
Építés éve
2023
Fürdőszobák száma
2
Fekvés
utcai
Víz
Van
Villany
Van
Csatorna
Van
Lift
van

Helyiségek

nappali-konyha
24 m²
hálószoba
10 m²
hálószoba
11 m²
fürdőszoba-wc
6 m²
előszoba
10 m²
hálószoba
9 m²
galéria
10 m²
fürdőszoba-wc
4 m²
terasz
9 m²
Vitéz Kornél
Vitéz Kornél

Hitelszakértő

Irodánk kínálatából - XIII. kerület - Pozsonyi út

for sale commercial property

Index image
12

for sale commercial property

Index image
5

eladó lakás

Index image
15

eladó kereskedelmi ingatlan

Index image
5

kiadó lakás

Index image
17

eladó lakás

Index image
17