101 750 000 Ft
262 000 €
- 55m²
- 2 szoba
- 4. emelet





LUXUS TETŐTÉRI ÚJÉPÍTÉSŰ PROJEKTLAKÁSOK A BELVÁROSBAN
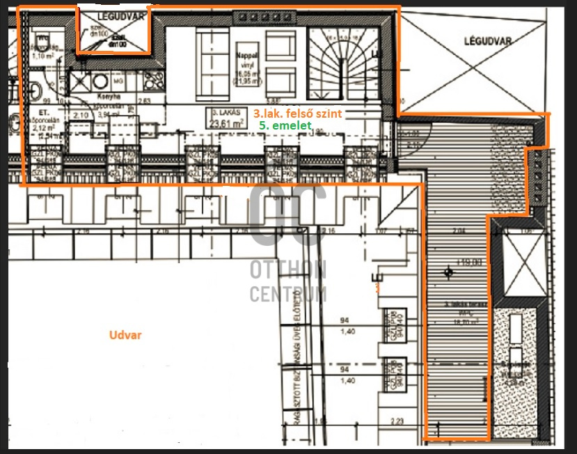
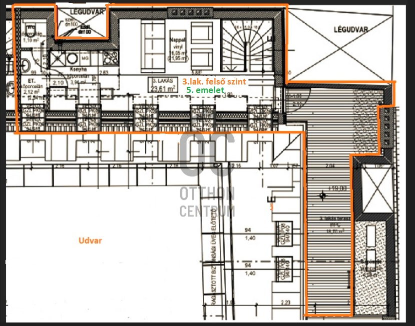
3. LAKÁS :
2 SZINTES, 2 SZOBÁS , 19 NM-ES TETŐTERASSZAL, 45 NM NETTO, 64 NM BRUTTO ALAPTERÜLETTEL
2 SZINTES, 2 SZOBÁS , 19 NM-ES TETŐTERASSZAL, 45 NM NETTO, 64 NM BRUTTO ALAPTERÜLETTEL
Regisztrációs szám
P4544-1-01-04-003
Az ingatlan adatai
Értékesités
eladó
Jogi státusz
új
Jelleg
lakás
Építési mód
ytong
Méret
55 m²
Bruttó méret
64 m²
Terasz / erkély mérete
19 m²
Fűtés
hőszivattyú
Belmagasság
280 cm
Lakáson belüli szintszám
2
Tájolás
Észak-kelet
Panoráma
városi panoráma
Lépcsőház típusa
függőfolyosó
Állapot
Kiváló
Homlokzat állapota
Kiváló
Lépcsőház állapota
Kiváló
Környék
csendes, jó közlekedés, központi
Építés éve
2023
Fürdőszobák száma
2
Fekvés
udvari
Víz
Van
Villany
Van
Csatorna
Van
Lift
van
Helyiségek
nappali-étkező
16 m²
hálószoba
11 m²
gardrób
2 m²
fürdőszoba-wc
4 m²
lépcsőház
4 m²
konyha
4 m²
mosdó
2 m²
wc
1 m²
tetőterasz
19 m²

Vitéz Kornél
Hitelszakértő