112 933 000 Ft
296 000 €
- 68,9m²
- 3 szoba
- 1. emelet
Luxuslakások a belváros szívében
Luxuslakások a belváros szívében
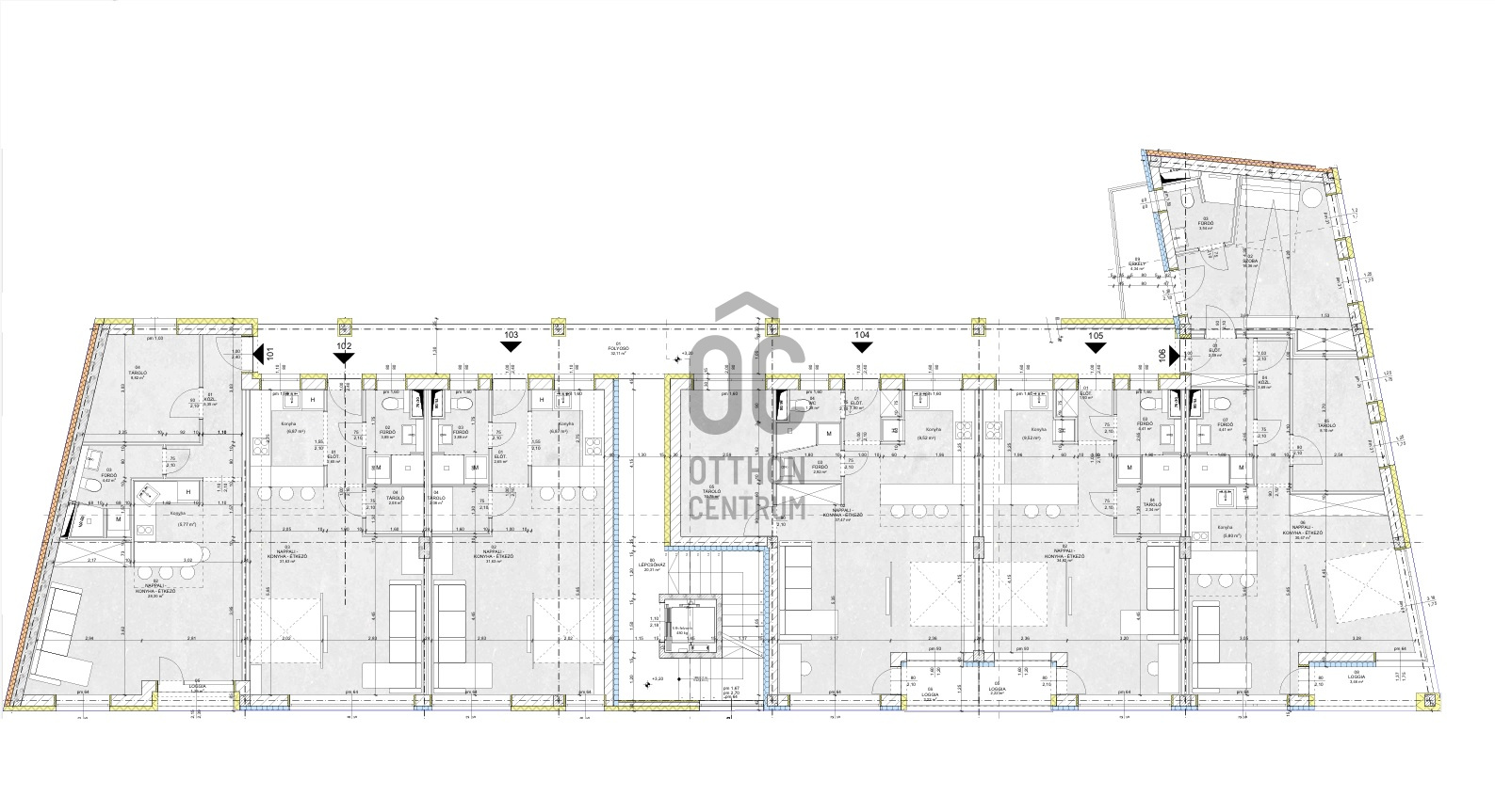
Debrecen, Belvárosának szívében a Nagytemplomhoz és a Kölcsey központhoz közel, magas műszaki tartalommal, új építésű 14 lakásos társasház épül.
Ez az 1. emeleti lakás 68,96 nm-es, nappali-étkező konyha +2 szobás, 2 fürdőszobás, 3,46 nm-es loggiával és 4,34 nm-es erkéllyel.
Jellemzők:
--3 rétegű üvegezésű nyílászárók
--hőszivattyús fűtés, minden helyiségben padlófűtés
--hütő-fűtő klíma: hőszivattyús rendszerű magasfali fan coil
--rejtett redőnytokos redőnyök
--Ercadó típusú beltéri ajtók
--zuhanyzóban és wc-ben mennyezetig ragasztott burkolat
--függesztett wc, 90X200-as üveg zuhanyfal
Az ingatlan pár perc sétára található a Nagytemplomtól, a Piactól és a Bevásárló központoktól és az 1-es és 2-es villamos megállójától.
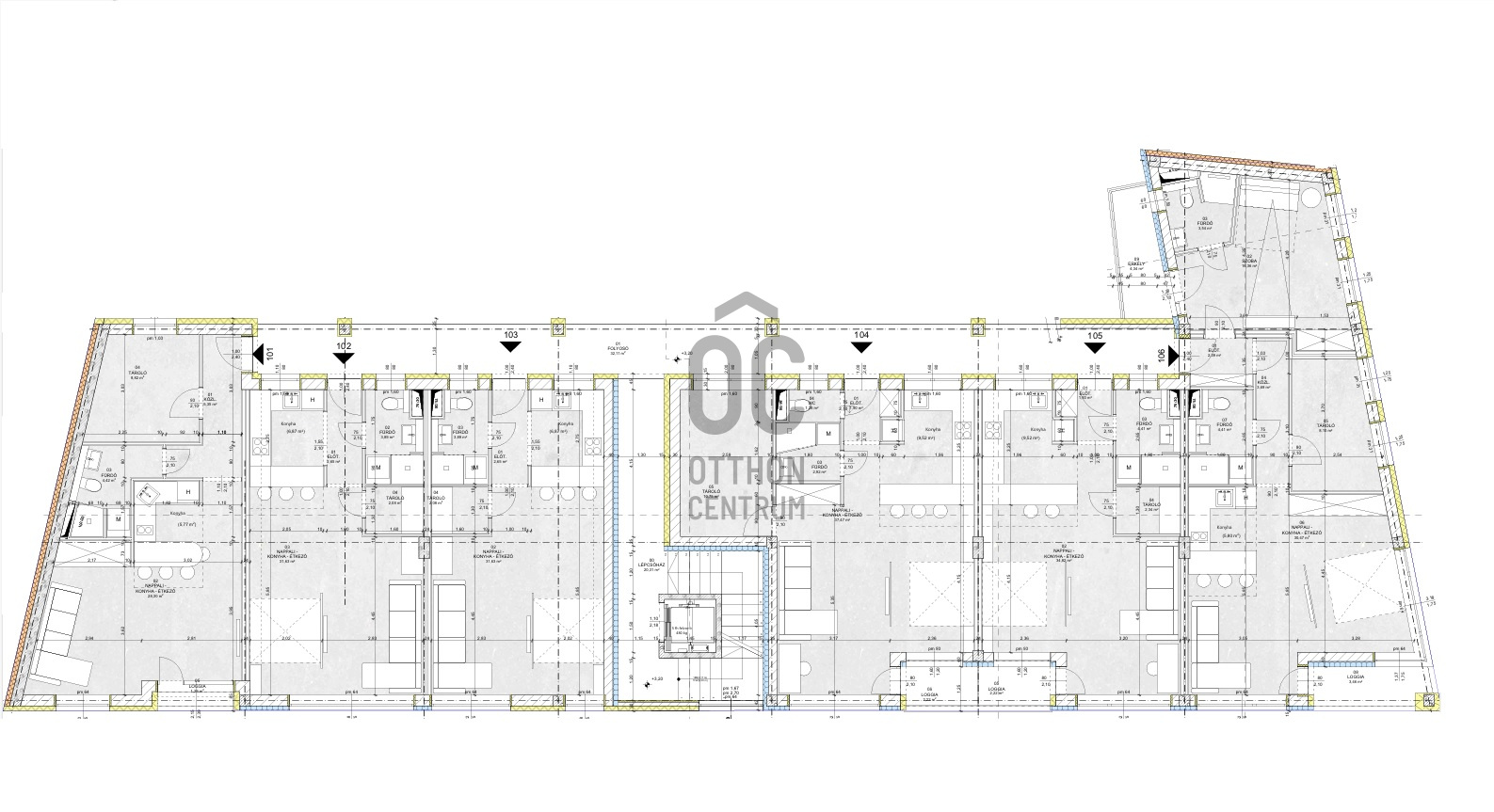
Debrecen, Belvárosának szívében a Nagytemplomhoz és a Kölcsey központhoz közel, magas műszaki tartalommal, új építésű 14 lakásos társasház épül.
Ez az 1. emeleti lakás 68,96 nm-es, nappali-étkező konyha +2 szobás, 2 fürdőszobás, 3,46 nm-es loggiával és 4,34 nm-es erkéllyel.
Jellemzők:
--3 rétegű üvegezésű nyílászárók
--hőszivattyús fűtés, minden helyiségben padlófűtés
--hütő-fűtő klíma: hőszivattyús rendszerű magasfali fan coil
--rejtett redőnytokos redőnyök
--Ercadó típusú beltéri ajtók
--zuhanyzóban és wc-ben mennyezetig ragasztott burkolat
--függesztett wc, 90X200-as üveg zuhanyfal
Az ingatlan pár perc sétára található a Nagytemplomtól, a Piactól és a Bevásárló központoktól és az 1-es és 2-es villamos megállójától.
Regisztrációs szám
P4465-1-01-01-106
Az ingatlan adatai
Értékesités
eladó
Jogi státusz
új
Jelleg
lakás
Építési mód
tégla
Méret
68,9 m²
Bruttó méret
77 m²
Terasz / erkély mérete
7,8 m²
Fűtés
hőszivattyú
Belmagasság
265 cm
Tájolás
Kelet
Lépcsőház típusa
zárt lépcsőház
Állapot
Kiváló
Homlokzat állapota
Kiváló
Lépcsőház állapota
Kiváló
Környék
jó közlekedés, központi
Építés éve
2027
Fürdőszobák száma
2
Fekvés
utcai
Garázs
Külön vásárolható
Víz
Van
Villany
Van
Csatorna
Van
Lift
van
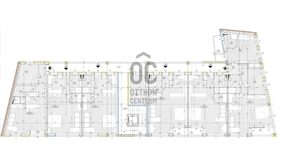
Helyiségek
nappali-étkező
24.67 m²
konyha
5.8 m²
szoba
16.81 m²
szoba
8.1 m²
fürdőszoba-wc
3.32 m²
fürdőszoba-wc
4.49 m²
előszoba
2.39 m²
közlekedő
3.69 m²
erkély
4.34 m²
loggia
3.46 m²
Czellér András
Hitelszakértő