Eladó újépítésű lakás, P4465-1-01-01-105
Debrecen, Belváros

69 099 000 Ft

183 000 €

  • 43,4m²
  • 1 szoba
  • 1. emelet

Luxuslakások a belváros szívében

Luxuslakások a belváros szívében
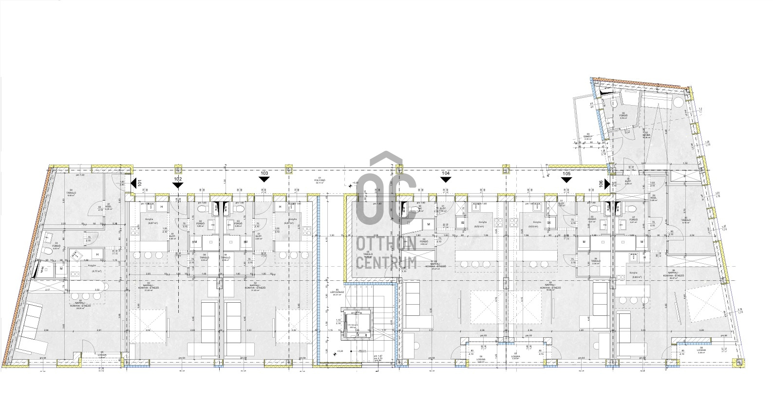
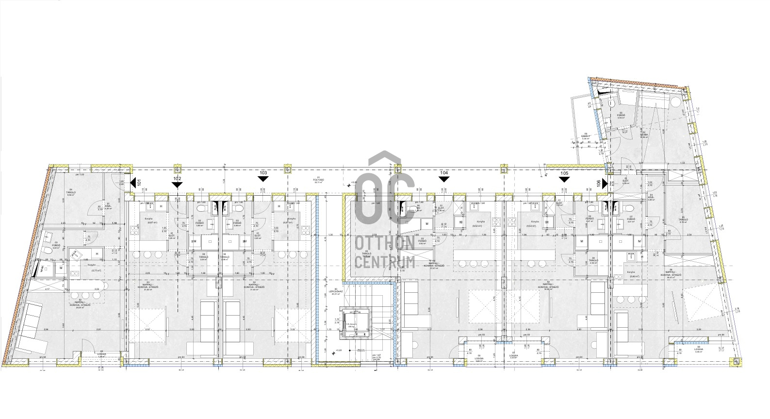
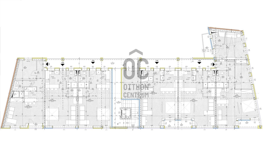
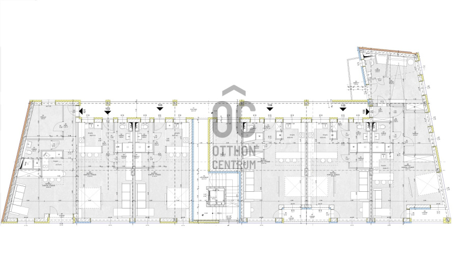
Debrecen, Belvárosának szívében a Nagytemplomhoz és a Kölcsey központhoz közel, magas műszaki tartalommal, új építésű 14 lakásos társasház épül.
Ez az 1. emeleti lakás 43,47 nm-es, nappali-étkező-konyhás, 2,22 nm-es loggiával.
Jellemzők:
--3 rétegű üvegezésű nyílászárók
--hőszivattyús fűtés, minden helyiségben padlófűtés
--hütő-fűtő klíma: hőszivattyús rendszerű magasfali fan coil
--rejtett redőnytokos redőnyök
--Ercadó típusú beltéri ajtók
--zuhanyzóban és wc-ben mennyezetig ragasztott burkolat
--függesztett wc, 90X200-as üveg zuhanyfal
Az ingatlan pár perc sétára található a Nagytemplomtól, a Piactól és a Bevásárló központoktól és az 1-es és 2-es villamos megállójától.

Regisztrációs szám

P4465-1-01-01-105

Az ingatlan adatai

Értékesités
eladó
Jogi státusz
új
Jelleg
lakás
Építési mód
tégla
Méret
43,4 m²
Bruttó méret
45,6 m²
Terasz / erkély mérete
2,2 m²
Fűtés
hőszivattyú
Belmagasság
265 cm
Tájolás
Kelet
Lépcsőház típusa
zárt lépcsőház
Állapot
Kiváló
Homlokzat állapota
Kiváló
Lépcsőház állapota
Kiváló
Környék
jó közlekedés, központi
Építés éve
2027
Fürdőszobák száma
1
Fekvés
utcai
Garázs
Külön vásárolható
Víz
Van
Villany
Van
Csatorna
Van
Lift
van

Helyiségek

nappali-étkező
25.3 m²
konyha
9.52 m²
előszoba
1.9 m²
fürdőszoba
4.29 m²
háztartási helyiség
2.34 m²
Czellér András
Czellér András

Hitelszakértő

Irodánk kínálatából - Debrecen - Csapó utca

for rent new construction apartment

Index image
13

for sale new construction family house

Index image
data_sheet.details.realestate.section.main.otthonstart_flag.label
14

for sale apartment

Index image
data_sheet.details.realestate.section.main.otthonstart_flag.label
7

for sale row house

Index image
data_sheet.details.realestate.section.main.otthonstart_flag.label
14

for sale family house

Index image
data_sheet.details.realestate.section.main.otthonstart_flag.label
12

for sale semi-detached house

Index image
data_sheet.details.realestate.section.main.otthonstart_flag.label
27

for sale row house

Index image
data_sheet.details.realestate.section.main.otthonstart_flag.label
19