Elérhető Otthon Start hitellel
Eladó újépítésű lakás,
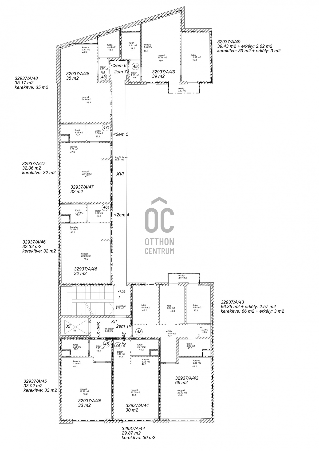
P4146-1-01-02-006
Budapest VII. kerület, Külső Erzsébetváros
52 750 000 Ft
136 000 €
- 35,1m²
- 1 szoba
- 2. emelet


ÚJ ÉPÍTÉSŰ ENERGIAHATÉKONY LAKÁSOK- VII. KERÜLET
A VII. kerület központi részén várja leendő tulajdonosait ez a 44+2 lakásos új építésű társasház.
A lakás:
- II. emeleti garzonlakás
- 35 nm
- nappali- konyha, előszoba, fürdőszoba elosztás
- K- i tájolás, udvari nézet
A lakás:
- II. emeleti garzonlakás
- 35 nm
- nappali- konyha, előszoba, fürdőszoba elosztás
- K- i tájolás, udvari nézet
Regisztrációs szám
P4146-1-01-02-006
Az ingatlan adatai
Értékesités
eladó
Jogi státusz
új
Jelleg
lakás
Építési mód
tégla
Méret
35,1 m²
Bruttó méret
35 m²
Fűtés
elektromos, infra
Belmagasság
300 cm
Lakáson belüli szintszám
1
Tájolás
Kelet
Lépcsőház típusa
függőfolyosó
Állapot
Kiváló
Homlokzat állapota
Kiváló
Lépcsőház állapota
Kiváló
Pince
Közös
Környék
jó közlekedés, központi
Építés éve
2022
Fürdőszobák száma
1
Fekvés
udvari
Társaház kert
igen
Garázs
Külön vásárolható
Víz
Van
Gáz
Utcán
Villany
Van
Csatorna
Van
Lift
van
Tároló
Külön vásárolható
Helyiségek
nappali-konyha
28.71 m²
előszoba
2.03 m²
fürdőszoba-wc
4.43 m²

Tóth Róbert
Hitelszakértő